logo elektroda
logo elektroda
X
logo elektroda
REKLAMA
REKLAMA
Adblock/uBlockOrigin/AdGuard mogą powodować znikanie niektórych postów z powodu nowej reguły.

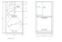
Budowa kolumn na Tonsil GDN 30/60/1

Ścibioor 29 03 Paź 2008 15:48 27293 82
REKLAMA
  • #1 5594775
    Ścibioor 29
    Poziom 17  
    Witam.
    Posiadam 2 głośniki Tonsil GDN 30/60/1 i planuje coś zbudować właśnie na nich. Proszę was o kilka dobrych rad tzn. jaką zastosować skrzynię zamkniętą czy Bass Reflex? Będę wdzięczny za pomoc.
    Pozdrawiam
  • REKLAMA
  • #2 5594985
    melisław
    Poziom 24  
    Jedyne do czego te głośniki się nadają to układ 3-drożny.
    Niestety nie zaprojektujesz sobie do tego zwrotnicy. Powiedz najpierw ile masz kasy, jaki pokój, jakie preferencje muzyczne, jaki wzmacniacz...
  • #3 5595048
    Ścibioor 29
    Poziom 17  
    Witam.
    Mój pokój to 20m2. Muzyka, którą słucham to najczęściej rock i techno. Co do wzmacniacza to będę budował coś samemu, aby się troszkę elektroniki poduczyć. Najprawdopodobnie bedzie to coś na układach scalonych LM3886. Spotkałem się z opiniami, że te głośniki to sie tylko do zamkniętej obudowy nadają lecz mój sąsiad ma je w Alton 110 i grają dobrze. Rozpisałem się ale to może pomoże w projektowaniu:)

    Dodano po 28 [minuty]:

    A może by coś dwudrożnego? No dodać np. Tonsil GDWT 12-19/150 lub coś w tym stylu.
  • #4 5595844
    melisław
    Poziom 24  
    A ile masz kasy? dla mnie najlepszym rozwiązaniem było by sprzedać te głośniki i zrobić jakiś normalny projekt... Tylko musisz określić się z kasą...
  • REKLAMA
  • Pomocny post
    #6 5630223
    kborowiec
    Poziom 18  
    Podobnie, jak Ty kombinuję jak tanim kosztem zbudować kolumnę na GDN 25/40/3 (parametry poza moca identyczne). Wymyśliłem, że wstawię ją do obudowy B-R (60-80 l) i połączę z wysokotonówką STX-a (zastanawiam się tylko czy z tubową czy kopułkową) ciętą przy 2 kHz ze spadkiem 12 lub 18 dB/okt (niskotonowy raczej tylko 12 dB/okt). Dzięki sporej efektywności powinna taka kolumna sporo hałasu narobić. W Altusach itp. taki głośnik był cięty przy 1,2 kHz, ale ze spadkiem 6 dB/okt, więc dużej różnicy być nie powinno, tym bardziej, że charakterystyka (na stronie Protonsilu) do tych 2 kHz w miarę równo dociąga.
  • #7 5644645
    Ścibioor 29
    Poziom 17  
    Witam.
    Twoja konstrukcja będzie miała podobny litrarz (!?!) i strojenie jak nieśmiertelne altony 110(których jestem właścicielem) lub altusy140. Ja gdzieś słyszałem że moje tonsile powinny pracowac tylko w obudowie zamknietej, lecz grały one w altusach a to juz obudowy BR. Moje głośniko szalały w altonach i robiły dużo chałasu:) Myśle żeby spróbować cos koło 50-60 litrów i na zamkniętej( tak mi programy policzyły) ale to luźne pomysły.

    A może takie coś:

    Dodano po 2 [minuty]:


    Pisanie postu pod postem nie jest mile widziane. Na przyszłość proszę używać opcji "zmień" i dopisać dalszy ciąg do już napisanego postu.
    Pisownia!
    (dj-MatyAS)
  • #8 5647592
    melisław
    Poziom 24  
    Nigdy tub do domu... A co do samych kolumn... Kwestia gustu :D Dla mnie paskudne...
  • #9 5788125
    tonny
    Poziom 12  
    Witam Wasnie tez posiadam takie gosniki 30/60/1 6ohm i czekam na wasze propozycje ! co do Objetosci i czy obudowa zamknieta lub BR..

    Dodano po 4 [minuty]:

    a moze cos takiego ...

    Dodano po 56 [sekundy]:

    Budowa kolumn na Tonsil GDN 30/60/1
  • #10 5788647
    Ścibioor 29
    Poziom 17  
    Ten projekt co pokaujesz to chyba niejest najlepszy pomysł. Ja zastanawiam sie nad czymś w rodzaju Altusów.
  • REKLAMA
  • #12 5790842
    Ścibioor 29
    Poziom 17  
    Dzieki mczeslaw. Nareszcie jddna konkretna odpowiedź na moje pytanie:) Długo czekałem, ale mam nadzieję, że sie opłacało.
  • REKLAMA
  • Pomocny post
    #14 5791432
    tonny
    Poziom 12  
    mczeslaw hmm mówisz 55l kurcze to juz nic nie wiem ,mi dzisiaj z obliczen wyszo 76l podstawiajac pod te wzory
    Qr=QTC/QTS
    Vr=Qr2-1
    Vb=Vas/Vr
    Fb=Qr*Fs

    na obudowe zamknieta.Ale mam jeszcze jedno pytanie przeciesz jak wloze gosnik GDN to ta objetosc sie zmniejszy!.Czy ta objetosc ma byc taka jak juz bedzie w kolumnie gosnik? .I ile zajmuje ten Glosnik ? 1litr...2litry?

    Dodano po 13 [minuty]:

    i tak samo jak dam glosnik sredniotonowy to przeciesz tez jakos sie pojemnosc zmniejszy
  • #15 5791766
    Ścibioor 29
    Poziom 17  
    Co do przetworników dam sobie rade. Mam już GDWT. Zwrotnice mam jakieś stare od altusów 110 więc troche posidze i je naprawię, odnowie i powinno być dobrze. A jak panowie sie dogadają co do tej objetości to chętnie posłucham jaka jest ta najlepsza objetość. Mi wychodziła w WinISD coś koło 60 litrów.
    Pozdrawiam.
  • #16 5791950
    Reymar.T
    Poziom 13  
    Nie chcę Cię martwić ale i tak nic z tego głośnika nie wydobędziesz sensownego.
    Ten tonsil to największy chłam w kategorii basu, nawet niektóre Alpahrd - y czytaj alpierdy są bardziej wskazane.
    Ten głośnik jest w modelu Altus 140 - zero basu w kategorii basu od 30 hz!!! Beznadzieja w dzisiejszych czasach.
  • Pomocny post
    #17 5792123
    tonny
    Poziom 12  
    Hmm mówisz chlam ,to ciekawe czemu tyle osob kupuje jeszcze altusy. A pozatym interesuje mnie-co wyzej pisalem- (Ale mam jeszcze jedno pytanie przeciesz jak wloze gosnik GDN to ta objetosc sie zmniejszy!.Czy ta objetosc ma byc taka jak juz bedzie w kolumnie gosnik? .I ile zajmuje ten Glosnik ? 1litr...2litry?)

    Dodano po 49 [sekundy]:

    jak najlepiej stroic ten glosnik??

    Dodano po 5 [minuty]:

    a co do Alpahrda to większego badziewia nie widzialem czy widziales zeby jakas Firma na tych przetwornikach robila kolumny BO ja nie ..... chyba ze kolesie niby tuby do samochodów ale i tak to produkt z biedronki chyba ze patrzą na wygląd glośnika :):D

    Dodano po 54 [sekundy]:

    Do zeczy ,nie odbiegajmy od tematu to czekam na waszą pomoc...
  • #18 5792767
    mczeslaw
    Poziom 36  
    Po odjęciu tyłu głośnika, po odjęciu wewnętrznej obudowy na śerdniotonowca, po odjęciu belek wzmacniających tych w poprzek i wzdłuż, wychodzi netto troche ponad 55 litrów.
    Wszystko jest uwzględnione.

    Tony - tam jak wół jest odgroda do średniotonowca wewnątrz kolumny na zielono.

    GDN30/60 wcale nie jest złym głośnikiem tylko nie powinien grać w obudowie BR.

    W 76 litrach też zagra ale będzie zmulony, w 55 litrach spisuje sie najlepiej ma piękny impuls, wiem bo to przerabiałem. A i mocowo b. dobrze sie spisze.

    Polecam jako pozostałe przetworniki GDM16/80 oraz GDWK9/120/12.
  • #19 5793266
    Ścibioor 29
    Poziom 17  
    Posiadam GDMa 16/80 w moich Altonach110 i przyznaje, że to głośnik wart uwagi:)
  • #20 5795593
    Reymar.T
    Poziom 13  
    Tak beznadziejnego basu jak z Altus 140 nie słyszałem w żadnych kolumnach szanujących sie firm. Tam nawet nie był strojenia tylko dwie 5 cm rurki z siateczką, padaczka a jak nie wierzysz to sobie policz.
  • #21 5796679
    mczeslaw
    Poziom 36  
    Zgadzam się. GDN 30/60/1nie był przeznaczony do obudowy typu jak Altus 140.
    Tam konstruktorom chodziło żeby dół dorównał efektywnością pozostałym głóśnikom. To się udało kosztem dość wysokiego klekoczącego basu.
    Te otwory to nawet nie były BR, a raczej otwory stratne które raczej miały zmniejszać zbyt wysoka dobroć głośnika w tej obudowie.
  • #22 5796853
    Ścibioor 29
    Poziom 17  
    Kolego zobaczy wyżej na projekt kolumny o której rozmawiamy bo ja tam żadnego bass refleksu nie widze. To ma byc podobne do altusów a nie identyczne! 55 litrów w zamknietej i tyle.
  • #23 5803138
    tonny
    Poziom 12  
    mczeslaw ... no i oto mi chodzilo DZIEKI .juz zrobilem jedna obudowe jest zamknieta wyszlo mi okolo 56l ale i tak GDN sam bedzie pracowal w tej zamknietej kolumnie,reszta glosników bedzie w osobnych obudowach.:) MCZESLAW a jak najlepiej stroic ten glosnik tonsila gdzie mu obciac pasmo?:?:
  • #24 5803722
    Ścibioor 29
    Poziom 17  
    Tonny jak zrobisz wszystko na gotowo to napsz jak ci to gra bo jestem bardzo ciekawy.
  • #25 5803925
    mczeslaw
    Poziom 36  
    Może być szeregowa cewka 2,1 do 2,4mH (6 dB/okt), może być droższe lepsze rozwiązanie cewka z grubego druciora 3,6mH i za nią równolegle do głośnika kondensator 50µF (12dB/okt.) i tu mamy cięcie około 400 Hz.
    Takie cięcie będzie wymagało do przenoszenia tonów średnich już potem głośnika GDM18/80, 16/80 nie przeniesie od 400 Hz w góre.
  • #26 5809884
    tonny
    Poziom 12  
    no i tak pierwsza proba! LEB mnie boli.....kuzwa a skrzynia cieszka jak djabli zrobilem ja z MDF 22mm!

    Dodano po 2 [minuty]:

    a kolega Ścibioor 29 zrobil juz cosik z tymi glosnikami?
  • #28 5810074
    tonny
    Poziom 12  
    mczeslaw znasz moze stronke gdzie mozna zakupic takie cewki ? zrobie ta z 3,6mH tylko przydala by mi sie twoja pomoc co do tej zwrotnicy sredniaka kupie tego GDM18/80 i masz moze gadulca?

    Dodano po 2 [minuty]:

    nie dawalem wiesz plyty sa 22mm! nie wystarcza?
  • #29 5810284
    Ścibioor 29
    Poziom 17  
    tonny napisał:
    no i tak pierwsza proba! LEB mnie boli.....kuzwa a skrzynia cieszka jak djabli zrobilem ja z MDF 22mm!

    Dodano po 2 [minuty]:

    a kolega Ścibioor 29 zrobil juz cosik z tymi glosnikami?


    Witam.

    No ja ostatnio zregenerowałem stare GDWT do mojej kolumny. Kupiłem przewody do zwrotnicy, klej i wkręty.Rozglądam się za średniotonowym głośnikiem i uchwytami estradowymi bo pudła będą ciężkie. Dzis zrobiłem zwrotnice 3-drożne. Niestety zwrotnica, którą zrobiłem jest przejściowa bo nie mam jeszcze kasy na nowe części a znalazłem stara zwrotnicę od ZgC-50-8-44 i z tych części zrobiłem bardzo prostą zwrotnicę. Płyty mam nadzieje dociąć w tym tygodniu i zacząć juz skręcać wszystko w całość. Co do pytania gdzie można kupić wyżej wymienioną cewkę to ja tez się dołączam do tego pytania.
  • #30 5810326
    tonny
    Poziom 12  
    no ja mam zamiar kupic te GDM18/80 tylko hmmm pasowalo by mi cos tak jak glosnik wysokotonowy tylko czy przeniesie pasmo od 400? :(
REKLAMA