logo elektroda
logo elektroda
X
logo elektroda
REKLAMA
REKLAMA
Adblock/uBlockOrigin/AdGuard mogą powodować znikanie niektórych postów z powodu nowej reguły.

Dobór Zwrotnicy, małe kolumienki do komputera.

lukaszkusnierz 26 Lut 2009 21:39 1704 10
REKLAMA
  • #1 6209579
    lukaszkusnierz
    Użytkownik obserwowany
    Witam. Postanowiłem złozyc sobie małe kolumienki do komputera na głosnikach: niskotonowy - GDN-22-200-8-SC i Wysokotonowy GDWK-10-200-8-PJ oczywiscie STX. Prosze o pomoc w doboze zwrotnicy interesuje mnie jakas gotowa do zakupienia. Myslalem o STX Zwrotnica 2D-12 ???

    Dodano po 24 [minuty]:

    Moze wystarczy tylko dac kondensator np. (3,3uf 63V) ze starej zwrotnicy a GDN-a puscic całym pasmem???


    Ogonki!
    Regulamin p.15
    Proszę poprawić.
    (dj-MatyAS)
  • REKLAMA
  • #2 6209877
    izbic
    Poziom 28  
    Po pierwsze to nie ma prawa dobrze zagrać w takim zestawieniu bo nisokotonowy jest za duży i będzie kulala średnica (będzie dziura w paśmie). Powiedz ile masz kasy, jaki pokój do nagłośnienia, a my postaramy sie coś dobrać :)
  • REKLAMA
  • #3 6209987
    lukaszkusnierz
    Użytkownik obserwowany
    kasu mało małoooo max 200zl a pudła to stare space 89 z wywalonymi przodami i myslalem z nich zrobic 2way i takie cos by mnie interesowało paczki sa obecnie złozone i ofornirowane i czekaja na dziury pod głosniki

    Dodano po 2 [minuty]:

    pokuj raczej pracownia... ma to słuzyc pod komputer wymiary to okolo 2x5 tak na oko ale cały zawalony kompami

    Dodano po 1 [minuty]:

    a dlaczego mowisz ze bedzie dziora w pasnie??? sa kolumny tonsila bardzo stare jakies nie pamietam modelu ale był tam GDN 20cm i kopulka jakas


    Ogonki!
    Regulamin p.15
    Proszę poprawić.
    (dj-MatyAS)
  • #4 6210829
    Arkadyo
    Poziom 31  
    Tak unitra miała kolumny 2 way na tonsilowskich 20 cm bodajże zg 30 ale to nie znaczy że kazda 20 zagra w 2 way - ten zestaw unitry nie grzeszył ani średnica ani basem - taka ogólnie nijaka konstrukcja. Stx którego przywołałeś będzie miał średnicy jeszcze mniej bo to klasyczny niskotonowy do łupania w okolicy 40 hz - jak nie chcesz wywalić kasy w błoto to zapomnij o nim w 2 way.
    Jak chcesz tanio 2 way z stx to proponuje gdn 17-140-8 sk plus gdwk 10-200-8 pj - nie ma do tego zwrotnicy z pomiarów ale do pj filtry znajdziesz bez problemu a od biedy tylko na filtrze z pj można pograć bo brak tego filtra odczujesz najszybciej a gdn bez filta może nawet wcale :) A jak uznasz że potrzeba gdn filtrowac to będziesz miał pole do popisu :)
  • #5 6211943
    lukaszkusnierz
    Użytkownik obserwowany
    ale czy ten gdn 17... bedzie pasowac do tej obudowy po space 89???
  • REKLAMA
  • #6 6212122
    mczeslaw
    Poziom 36  
    Co do objętości to tam będzie około25 dm3. Trochę za dużo, ale jak zależy ci na niskim monumentalnym brzmieniu, jednym słowem nie chcesz szaleć, to dostrajając BR o średnicy 6 cm i długość 13cm, na około 48 Hz, można się spodziewać nadzwyczaj dobrych rezultatów. F3 bowiem oscyluje w granicach 47 Hz z impulsem no - dostatecznym. Ale coś za coś.

    Zawsze można zmniejszyć w prosty sposób taką skrzynię do 18 dm3 i wtedy taką rurę dostrajamy na około 50 Hz (14,5 cm długości), i mamy przenoszenie basów lepsze od Space86 i nienaganny impuls.
  • REKLAMA
  • #7 6212144
    lukaszkusnierz
    Użytkownik obserwowany
    a gdyby dac te głosniki co pisalem na poczatku i do tego sredniego jakiegos???


    Ogonki!
    Regulamin p.15
    Proszę poprawić.
    (dj-MatyAS)
  • #8 6212156
    mczeslaw
    Poziom 36  
    A co , już masz te głośniki?

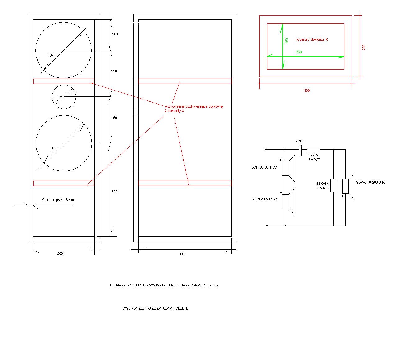
    Mam dla ciebie propozycje DIY, która budżetem wychodzi grubo poniżej 300 PLN za dwie kolumny i całkiem poprawnie gra.
    Dobór Zwrotnicy, małe kolumienki do komputera.
    Tania płyta 18 -stka - prosta konstrukcja, jeszcze prostsza zwrotnica.
  • #9 6212225
    lukaszkusnierz
    Użytkownik obserwowany
    wszysko ok ale ja nie mam czasu sie bawic w takie zeczy dlatego chce wykozystac te obudowy ze space ... wszystko mam do nich gotowe czekam tylko na jakies głosniki ktore w miare zagraja w nich. wycinam dziory wewalam głosniki i gra;p

    Dodano po 6 [minuty]:

    a takie zapytanie na stronie stx ten GDN 22... i GDN 17... maja bardzo ale to bardzo podobne wykresy czestotliwosci wiec dlazego przy zastosowaniu GDN22 bedzie dziora w pasmie???




    Ogonki!
    Regulamin p.15
    Proszę poprawić.
    (dj-MatyAS)
  • #10 6212296
    mczeslaw
    Poziom 36  
    No to fasuj do tego GDM-12-60-8-SC co proponowałeś + Zwrotnica 3D-6 i powinno jakoś grać, efektywnościowo głośniki dopasowane.
    Powinny się głośniki pomieścić. No ale w ty przypadku oczywiście obudowa zamknieta.
    Działaj :idea:
  • #11 6212357
    lukaszkusnierz
    Użytkownik obserwowany
    hymm ale jednak najpierw sprubuje bez sredniego jak pociagnie bo z tego co wiem to te kolumny graly bez sredniego " był w obudowie ale nie podpiety" i z GDN jakims ALPHARDEM i całkiem to szlo




    Regulamin p.15
    Proszę poprawić.
    (dj-MatyAS)
REKLAMA