logo elektroda
logo elektroda
X
logo elektroda
REKLAMA
REKLAMA
Adblock/uBlockOrigin/AdGuard mogą powodować znikanie niektórych postów z powodu nowej reguły.

Pomoc STX gdn 22 200 4 i gdwk 10 2508 akx

PythonZ 07 Mar 2009 19:36 2242 21
REKLAMA
  • #1 6249735
    PythonZ
    Poziom 10  
    Witam,

    Chcialbym zapytac co myslicie o kolumnach zrobionych na STX'ach : 2x gdn 22 200 4sc + Gdwk 10 250 8 Akx, wlasnie chce takie cos stworzyc. Ciecie zrobic mniej wiecej kolo 3Khz (gdn polaczyc w 8ohm) wtedy mamy mniej wiecej podobna ilosc Db tylko mam pytania co do obudowy, jak na razie 64ltr strojone na 50hz lub z mniejszym spl 88ltr przy 44hz (obliczalem w WINsd). Co do zwrotnic to wg moich obliczne maja byc dla gdn L = 1,12mH i C= 2,5 uF a dla gdnwk L = 0,6mH i C = 4,7 uF Jakies propozycje? Chcialbym wiedziec jakby zrobic lepiej itd :)

    Pozdro
  • REKLAMA
  • #2 6250183
    izbic
    Poziom 28  
    NIe nie nie po pierwsze ten STX 22 nie nadaje sie do 2 way bo nie bedzie z niego żadnej średnicy. Po 2 masz za dużą obudowę i to o wiele. Po 3 zwrotnica musi sie opierać na pomiarach, a nie na obliczeniach bo takie są zazwyczaj do niczego. Lepiej zrób jakiś sprawdzony projekt.
  • REKLAMA
  • #3 6250306
    PythonZ
    Poziom 10  
    Jak wiem gdn 22 do 3khz spokojnie dojdzie, co do obudowy to jest na 2x glosniki czyli odpowiednio na 1 wychodzi 2 razy mniejsza (32ltr lub 42ltr). A co do zwrotnic to niby na czym powinny sie opierac te pomiary??
  • #4 6250359
    izbic
    Poziom 28  
    Wiesz zazwyczaj parametry podane przez producenta odbiegają od tego co jest w rzeczywistości dlatego dobra zwrotnica powinna byc zrobiona na podstawie pomiarów, a nie w kalkulatorze.
  • REKLAMA
  • #5 6250428
    PythonZ
    Poziom 10  
    Mozliwie masz racje, tylko chodzi o to ze niemam mozliwosci dokonac takich pomiarow, aczkolwiek co tam mierzyc, jak jedna zmienna ktora jest to impedancja przy roznych czestotliwosciach (Fg podbieramy sami w moim wypadku 3Khz), co do sredniakow to nie bedzie wielkiej problemy wg mnie (nie jest to hi-end). A co do obudowy ze strojeniem? jak myslisz? I gdybys robil mniej wiecej za podobna kase 1wysoki + 2 nisko srednie z stx cobys polecil?
  • #6 6250470
    izbic
    Poziom 28  
    Po pierwsze robił bym coś do czego mam gotową zwrotnicę choćby 2x ARN 226+ARP 150 + ARV lub PJ tylko pogrzebać w zwrotnicy w przypadku PJ by było trzeba. W dziale DIY jest bodajże konstrukcja na 2x 22-120 STXa +ARP+ARV poszukaj.
  • #7 6250686
    mczeslaw
    Poziom 36  
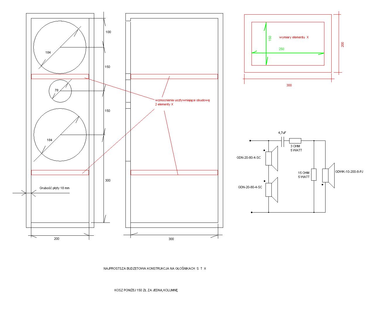
    Jedyny głośnik STX-a klasy 20 cm który się jeszcze nadaje do 2-way to GDN 20-80-4 SC puszczony pełnym pasmem w obudowie zamkniętej. Cena około 30 PLN.
    Robiłem na nich bardzo budżetową konstrukcje i szczerze powiem że efekt był nad wyraz dobry.
    Pomoc STX gdn 22 200 4 i gdwk 10 2508 akx

    22-200-4 aby spisał się w 2-way musiał by nie być zagrać w dość obciążającej go obudowie max 20 litrów w clozecie (tak jak dawno temy Tonsil robił 2-way ze swoich 20-stek, obudowy około18 dm3). No ale wtedy żegnajcie niskie zejścia. Przy optymalnych pojemnościach już przed 2000Hz się będzie wygłupiał. Wież mi, nikt źle ci tu nie radzi.
  • #8 6250926
    PythonZ
    Poziom 10  
    Niechodzi mnie ze ktos zle radzi czy dobrze, chodzi mnie ogólnie o naprawienie mnie na dobrą drogę :) a jak widzę wiele forumowiczów potrafi nie tylko "to i owo" ale coś więcej :) ciekawy nisko budzetowy projekt, trza sie zastanowic. bo chce cos w miare dzwiecznego zrobic 2-way za kazdą kolumnę (tylko glosniki, stx'a) cena do 150zl. i co myslicie o wysokotonowych z stx nowszej serii? moglbys cos wiecej powiedziec o dzwięku tych kolumn?
  • #9 6252666
    mczeslaw
    Poziom 36  
    Jak za 180 zł za komplet głośników to w tej cenie rewelacja. Oczywiście SPL przetwarzania na poziomie 86 dB, ale biorąc pod uwagę że do napędzenia głośników serii SC nie potrzeba dużych mocy, już 30-40 watowy wzmacniacz jest wystarczający do warunków domowych.
    Oczywiście mocniejszy wzmacniacz mile widziany.
    Co do brzmienia, po prostu gra całkiem poprawnie, nie ma podbarwień bo Fs głośników dość niski, bas jest szybki oczywiście nie schodzi poniżej 50 Hz ( F3 ), ale na 70 - 80Hz możemy już liczyć. Do muzy typu Dance, Rap, Hip-hop, a nawet z Rockiem sobie radziły. Prawda jest taka, im prostsza zwrotnica, tym mniejsze w związku z podziałem pasma niemiłe niespodzianki.
    Oczywiście pewna ch-ka liniowości częstotliwości w funkcji efektywności wyszła by daleka od ideału, ale zawsze powtarzam że nie słucha się wykresów tylko uchem.

    AKX to jużnie taka nowa seria, łośniki dobre ale za już trochę większe pieniądze masz Peerless HDS164 NOM i kopułka VifaDX25
  • #10 6265289
    frajcik
    Poziom 11  
    nierozumiem dlaczego negujecie ten pomysl, skoro charakterystyki nakladaja sie stosunkowo dobrze, spl tez pasuje do siebie, a biorac juz pod uwage ze konstrukcja ma byc budzetowa mysle ze nie ma co brac pod uwage - co juz wczesniej zostalo zasugerowane - budowy 3way na arn + arp + arv

    zalaczam wykresy z porowaniem charakterystyk, nie jest to zrobione idealnie ale przedstawia powierzchownie to co pokazaloby nalozenie ich w dobrym programie

    przy cieciu gdn'a wiadomo ze zrobi sie delikatny dolek w pasmie, jednak patrzac ze jest to budzetowka, oraz chocby to ze kazdy i tak kazdy przecietny sluchacz ustawia na korektorze "usmieszek" nie jest moim zdaniem mocnym argumentem

    https://obrazki.elektroda.pl/44_1236725413.jpg
  • #11 6265776
    mczeslaw
    Poziom 36  
    frajcik, teoretycznie to masz racje, ale co innego teoria, a co innego praktyka. Ch-ka jest sciągana sygnałem sinus, dla poszczególnych częstotliwości, (np: 800, 900, 1000, 1250,1500,1750,2000,2500,.........3000,3250,3500, itd Hz.) Czyli podczas pomiaru przy np: 2500Hz głośnik jest zasilany tylko i wyłącznie prądem o tej częstotliwości. I krok po kroku wykres wychodzi cacy.
    Inaczej sprawa wygląda jeżeli głośnik zaczyna pracować z całym pasmem akustycznym, czyli kiedy do jego cewki wchodzi jednocześnie i 250 i 800 i 1500 i 3000 Hz, jednym słowem cała gama częstotliwości. Wtedy okazuje się że powyżej 1000Hz, ch-ka tak jest poszarpana że podczas odsłuchu lepiej aby nie podawać do danego głośnika więcej niż 2000 Hz. Ale oczywiście podczas pomiarów sygnałem sinus przenosił ten sygnał.

    Jednym słowem co innego teoria, a co innego praktyka.
    Z 20-stek STX-a seria SC puszczona pełnym pasmem w miarę przyzwoicie się spisuje do około 4000 Hz, (praktyka). Ale potężnych basów z tego głośnika sie nie uzyska, chociaż gra całkiem poprawnie.
  • #12 6265832
    Arkadyo
    Poziom 31  
    Troche nie trafiony ten pomysł z 22 200 w 2 way. Daj sobie spokój z 8" na midbasa w nagłośnieniu domowym, poprostu szkoda kasy i roboty na mierny efekt. Lepiej dołozyć 7 złotych na sztukę i kupić 17-140-8sk i masz midbas z prawdziwego zdarzenia który zejscie ma podobne jak 22-200 i bedzie tylko ciupkę :) cichszy ale za to usłyszych przyjemną średnicę. Może i jeden i drugi nie ma pierscieni faradaja i srednica powalac nie bedzie ale z 17 napewnio bedzie fajniejsza niz z tej 22
  • REKLAMA
  • #13 6266718
    frajcik
    Poziom 11  
    wszystko to co piszesz to swieta prawda, jestem podobnego zdania i pisalbym tak samo jak ty, do mometu gdy uslyszalem taka konstrukcje, a mianowicie gdwk 9/80 + gdn 22/120/8 ss (byly to bodajze zgc30, tyle ze na basie ten stx) i bylem bardzo milo zaskoczony. Brzmienie nie bylo idealne ale mysle, ze jesli chodzi o budzetowa konstrukcje to dawala spokojnei rade

    byc moze byla to zasluga tego ze gdwk byl tylko za kondem, przez co schodzil stosunkowo nisko z charką
  • #14 6266774
    mczeslaw
    Poziom 36  
    Zgadzam się i tu pozwól że siebie zacytuję z tegoż samego tematu:
    Cytat:
    22-200-4 aby spisał się w 2-way musiał by nie być zagrać w dość obciążającej go obudowie max 20 litrów w clozecie (tak jak dawno temy Tonsil robił 2-way ze swoich 20-stek, obudowy około18 dm3). No ale wtedy żegnajcie niskie zejścia. Przy optymalnych pojemnościach już przed 2000Hz się będzie wygłupiał. Wież mi, nikt źle ci tu nie radzi.
  • #15 6267879
    frajcik
    Poziom 11  
    no to mamy lekka sprzecznosc bo wlasnie tamta konstrukcja zaskoczyla mnie znakomitym zejsciem ;) byc moze stx lepiej pracuje w takiej obudowie jak tonsil
  • #16 6268666
    mczeslaw
    Poziom 36  
    W około 18 litrach bas był mógł być szybki i dość poprawny gdyż oryginalni GDN tonsila miał Fs około 45 Hz, a STX 22, około 34-37 Hz, ale one lepiej grają w większych obudowach. I nie mówię że bas był kiepski, ale nisko to na pewno nie schodził. Jak to ma grać w 2-wayu to tylko w małej obudowie.
  • #17 6270170
    PythonZ
    Poziom 10  
    Ale gdyby byly glosniki takie jak w/w i w obudowie br, to jakbyscie to zrobili (chodzi mi o wymiary i zwrotnice). Pomijmy fakty czy 22 zagra na wyzszych czy nie. Moze w przyszlosci da sie przerobic (albo od nowa zrobic, zalezy jak z kasa bedzie) 3way i wtedy jakis midbasik dolaczy, chociaz trudno by bylo znalezc odpowiedni Spl (okolo 94db). Tylko jest maly problem w dany moment stx neposiada gdwk akx'a (poprawka, juz sa :) ). A tak na ogol, srednie zazwyczaj sa przyciszane przez equalaizer, a ze to nie sa monitorki, to srednie tony brzmiec "wyraziscie" niemusza. Tak samo jak powiedzenie "chary nie graja" dziala teraz w 2 strony. Podsumuwujac, potrzebne mnie parametry zwrotnic (w/w mam policzone, ale moze ktos lepiej mi doradzi).
  • #18 6270365
    Arkadyo
    Poziom 31  
    frajcik napisał:
    i pisalbym tak samo jak ty, do mometu gdy uslyszalem taka konstrukcje, a mianowicie gdwk 9/80 + gdn 22/120/8 ss (byly to bodajze zgc30, tyle ze na basie ten stx) i bylem bardzo milo zaskoczony. Brzmienie nie bylo idealne ale mysle, ze jesli chodzi o budzetowa konstrukcje to dawala spokojnei rade

    Tez słyszałem taki układ - miałem w domu 22-120-8sc i pakowany był w co tylko popadło, równiez do zg30 które wtedy walało mi sie po piwnicy. Także, wiem o czym piszesz i napisze to wielkmi literami, TA 22 TO QPA W 2 WAY. Poprostu nie słyszałeś nic poprawnie grającego i stąd te opowiesci o equalizerze. Dobry zestaw nie wymaga inngerencji suwadeł na eq. Rób jak chcesz ale ta 22 w clozed bedzie miała mniej basu niz zaproponowana przezemnie 17 w br - Fs maja prawie identyczny a na efektywności różni je tylko 2 db - nawet tej różnicy nie usłyszyć ale.. rób jak chcesz.
    Cytat:
    byc moze byla to zasluga tego ze gdwk byl tylko za kondem, przez co schodzil stosunkowo nisko z charką

    Z tego co pamiętam to oryginalnie w tych kolumnach był na filtrze II rzędu ale zdarzyło mi sie go (gdwk9/80) próbowac na filtrze I rzędu i wniosek jest taki sam jak dla większości kopułek w 2 way - kopułka zaczęła grac ostro i nieprzyjemnie - może nie sypała piachem ale jakbym chciał takiego grania to bym zamontował jakąś tubkę i dołączyłbym do licznego na tym forum miłosników jazgotu z altusów.
  • #19 6272418
    frajcik
    Poziom 11  
    Arkadyo napisał:
    Poprostu nie słyszałeś nic poprawnie grającego i stąd te opowiesci o equalizerze.


    to tylko twoja opinia, a co slyszalem a czego nie jest ci wiadome i raczej nigdy nie bedzie, takze sa to puste slowa

    napisz ze nigdy nie uzywasz equalizera/korektora, a na wzmacniaczu masz wszystkie regulacje na 0 badz sluchasz na direct'cie, wtedy sie z toba zgodze

    kazde kolumny maja swoja barwe dzwieku, a te "gadzety" wlasnie sa po to, by dostosowac owa barwe do swoich upodoban, gdy ta nie odpowiada twojemu gustu w 100%, ja z doswiadczenia wiem ze wiekszosc osob przycisza troche srednice a tu poprostu tego robic nie bedzie musiala, co innego gdyby miala byc dziura - dziury nie bedzie, tylko lekki dolek
  • #21 6285343
    PythonZ
    Poziom 10  
    A tak wracajac do tematu, postanowilem jednak zrobic 2x22 + akx. budowa zeszla do 60ltr strojone na 44hz (do 2x) Tylko pytanie co do zwrotki? dalby ktos rady policzyc (ewentualnie sprawdzic czy dobrze mialem poprzednio napisane).
  • #22 6288160
    Arkadyo
    Poziom 31  
    Dla gdn'ów wogóle nie dawałbym filtra bo bez pomiarów to i tak będzie zgadywanka a poza tym Fc filtra w 2 way byłoby tak blisko rezonansów, że i tak ich by nie odfiltowało a tylko straciłbyś na efektywności a chyba to masz na uwadze budując takie coś, także daj sobie spokój z filtrami dla gdn a tylko zobacz w projektach zwrotnic z pomiarów jak filtrują akx i skopiuj taki filter. Filtry które podałeś w pierwszym linku są liczone z założeniem, że głośnik ma liniową charakterystykę impedancji :D.
    Poza tym do takiego czegoś raczej dałbym kopułkę pj a nie akx bo tej chyba troszkę szkoda. A różnicą decybela, czy nawet dwóch na efektywności bym się nie przejmował bo jest nie do usłyszenia a w takim układzie średnica będzie mocno w tyle także góry za bardzo nie ma co wypuszczać.
REKLAMA