logo elektroda
logo elektroda
X
logo elektroda
REKLAMA
REKLAMA
Adblock/uBlockOrigin/AdGuard mogą powodować znikanie niektórych postów z powodu nowej reguły.

2 drożna czy 3 drożna?? Pierwsze DIY po kosztach

maciej113 25 Wrz 2009 23:12 2315 10
REKLAMA
  • #1 7058239
    maciej113
    Poziom 14  
    Witam, Postanowiłem zrobić kolumny i przestać katować uszy starymi głośnikami komputerowymi. Wzmacniacz dostałem od znajomego jest to schneider o mocy 2x100W do tego jest korektor graficzny. Słucham hip-hopu i czasem jakieś szybsze kawałki ale rzadko. Co za tym idzie niskie zejście jest wskazane. Mój pokoik ma jakieś 10m może mniej (za to wysoki na 3,5m), nie zależy mi na jakiejś super głośności bo mieszkam w bloku i nie bedę mógł szaleć zbyt często na full regulatorze.
    Mam dylemat, czy kupić ciut lepsze głośniki i zrobić 2 drożne kolumny, czy może troche taniej i dołożyć średniotonowca.

    z niskotonowych wymyśliłem sobie GDN-22-200-4-SC albo GDN-20-80-4-SC
    i do tego wysokotonowy GDWK-10-200-8-PJ i GDWK-10-250-8-AK

    Czy lepiej wziąć te tańsze basy i droższe soprany czy odwrotnie?
    Budżet to około 150zł na przetworniki.

    Co wybrać?? Może jednak 3 drożna??
  • REKLAMA
  • #3 7058443
    maciej113
    Poziom 14  
    Czytałem te tematy, w żadnym nie ma głośników które podałem ani opinii na ich temat. Również nikt nie napisał czy w takim zestawieniu lepiej 2 czy 3 drożną zrobić
  • REKLAMA
  • #5 7059015
    maciej113
    Poziom 14  
    mczeslaw ciągle powielasz jeden schemat, w innych tematach też go podajesz ja jednak wole zastosować jeden niskotonowy, bo jest taniej, mniej to będzie mocy potrzebować do napędzenia, a za wiele na tym nie stracę bo w tym co podałeś dBSPL 85,1445 a w gdn 22 jest 92dB
  • #6 7059716
    mczeslaw
    Poziom 36  
    GDN 22 do 2-way nie podejdzie. A lepszej konstrukcji za taką kase nie zrobisz. Sam pisałeś że budżet jest priorytetem.
    Do 3-way na 22-200-4 trzeba już GDM-a 12-60-8 i oczywiście np. PJ-kę.
    A za komplet zwrotnic trzeba będzie zapłacić ponad 100 PLN.

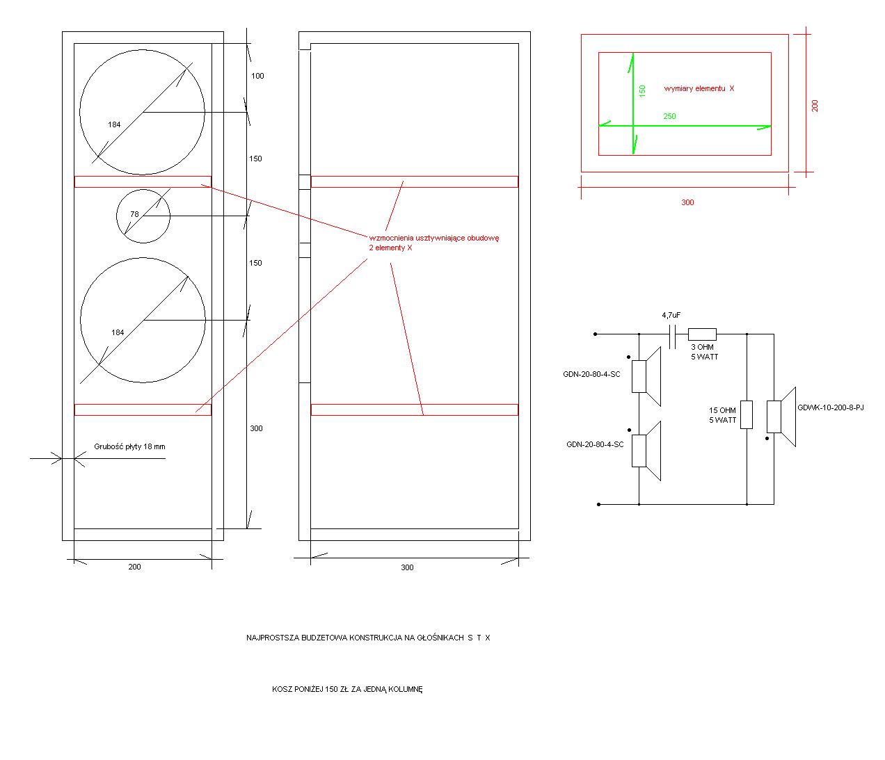
    W zespole na GDN 20-80-4 2szt. + PJ-ka w zasadzie zwrotnica kosztuje 0 PLN, a cały ma SPL 88 dB.
    Także rozumiesz sam o co chodzi.

    Jednakże GDN 22-200-4 jest przetwornikiem aspirującym do obudowy BR, i z pewnością zagra lepiej niż 20-80-4 w clozecie, i co do twoich preferencji muzycznyich jego niższe zejście powinno bardziej Cię zadowolić, ale wiedz, że będzie to mniej odporna kolumna na forsowanie i przestery od tej konstrukcji powielanej przeze mnie mimo że pisze na tym głośniku 200 i ma duży SPL. :idea:
  • REKLAMA
  • #7 7060717
    maciej113
    Poziom 14  
    Tak mi teraz przyszło na myśl że może zrobić 2 drożną ale na jednym głośniku niskotonowym i do tego jakiś subwoofer??
  • Pomocny post
    #8 7060942
    Tomq
    Poziom 38  
    Cytat:
    Tak mi teraz przyszło na myśl że może zrobić 2 drożną ale na jednym głośniku niskotonowym i do tego jakiś subwoofer??

    Kolega zdaje sobie sprawę, że to wyszłoby 2 x drożej niż początkowo założył? To już lepiej zrobić porządne stereo na jednym midwooferze i wysokotonówce, np na Visaton W170 + Visaton g20sc.

    Zawsze w tej samej cenie lepiej kupić dwa porządne głośniki niż 3 słabsze.
    Ewentualnie zrobić polecaną w jednym z linków które podrzuciłem konstrukcje https://www.elektroda.pl/rtvforum/topic1433845.html jak będzie brakować basu w takich warunkach jakie posiałeś w pierwszym poście to ja zwątpię....


    https://www.elektroda.pl/rtvforum/topic578103.html - po to podałem linki do innych tematów żebyś mógł sobie poprzeglądać konstrukcje do których się odwoływałem. Z takim budżetem dużo się nie wymyśli.
    Cytat:

    w żadnym [temacie] nie ma głośników które podałem ani opinii na ich temat. Również nikt nie napisał czy w takim zestawieniu lepiej 2 czy 3 drożną zrobić


    https://www.elektroda.pl/rtvforum/topic1430961.html#7038137#7038137 - nie jest tu napisane że do konstrukcji 2 drożnej nie nadają się głośniki powyżej 20 cm?
    Czy GDN 22-200-4 SC to wyjątek?

    Moim zdaniem masz do wyboru:
    STX GDN 17 + PJ
    ARN 150 + PJ
    2 x ARn 150 + Pj (ale ten zestaw nie brzmi najlepiej, bo nie ma do niego dobrego schematu zwrotnicy), więc jeśli mają być 2 ARNy to lepiej dołożyć do wysokotonówki i wziąć Visatona sc10n zamiast J
    2 xSTX GDn 20-80-4 + PJ wg projektu kolegi wyżej.
    2 X Tonsil GDN 13/40/2 + GDWK 10/80/7 - ale tu trzeba by dobrze szukać głośników by zmieścić się w cenie. Normalna cena tych GDNów nie jest zachęcająca, ael czasem na Allegro trafi się jakaś okazja.


    Poza tym jak zawsze, polecam lekturę https://www.elektroda.pl/rtvforum/forum99.html oraz http://diyaudio.pl/viewforum.php?f=5i poszukanie czegoś jeszcze na własną rękę.
  • REKLAMA
  • #11 7064195
    maciej113
    Poziom 14  
    Po tak dobrych radach i licnych odpowiedziach za które dziękuję, zdecyduje się chyba na STX GDN 17 + PJ i. Po ukończeniu konstrukcji i odsłuchaniu wszystkiego zdecyduję czy bas jest zadowalający, jeśli nie to zrobie jakiś mały subwoofer. Kolumny chce mieć już, a subek nie jest potrzebny żeby sprzęt zaczął grać. Dziękuję za dobre rady i przepraszam że tak uporczywie pytałem ale to z chęci doedukowania się i wybrania najlepszeo rozwiązania.
REKLAMA