logo elektroda
logo elektroda
X
logo elektroda
REKLAMA
REKLAMA
Adblock/uBlockOrigin/AdGuard mogą powodować znikanie niektórych postów z powodu nowej reguły.

Opel astra II wycieraczki

kawonczyk2312 07 Lis 2009 23:55 11845 18
REKLAMA
  • #1 7229847
    kawonczyk2312
    Poziom 10  
    wie ktos moze jak naprawic silniczek od wycieraczek w Astrze II? nie działaja na pierwszym przełaczeniu a 2 i 3 działa.. Słyszałem ze to silniczki padaja ale czy mozna je naprawic?
  • REKLAMA
  • #2 7229884
    inot
    Poziom 35  
    To może być wina przekaźnika "interwalu".
  • #3 7229930
    kawonczyk2312
    Poziom 10  
    jak on wyglada i gdzie jest? Mozna to naprawic?
  • REKLAMA
  • #5 7229993
    Konto nie istnieje
    Konto nie istnieje  
  • REKLAMA
  • #6 7230012
    inot
    Poziom 35  
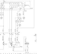
    Jak na wyżej zamieszczonym obrazku widać, przekaźnik ten jest odpowiedzialny także za pracę wycieraczek w położeniu 1 (niem. "Stufe1").
  • #7 7230022
    kawonczyk2312
    Poziom 10  
    przekaznik jest dobry bo sprawdzałem na innym aucie i działal...
  • #8 7230102
    Konto nie istnieje
    Konto nie istnieje  
  • REKLAMA
  • #9 7232310
    inot
    Poziom 35  
    Jeszcze raz dla jasności.
    Przełącznik wycieraczek w pozycji 2 (wolno) i 3 (szybko) dostarcza napięcie bezpośrednio do silniczka. Pozycja 1 przeznaczona do pracy przerywanej (Intervall) dostarcza to napięcie nie bezpośrednio,tylko za pośrednictwem przekaźnika.
    Ten natomiast jest sterowany z modułu ("Multitimer").
    Jeżeli w pozycji 1 nie działa to albo uszkodzony przekaźnik, albo sam przełącznik albo moduł.
    Możesz dokonać takiego doświadczenia.
    Wyjąć przekaźnik i za pomocą przewodu zewrzeć ze sobą kontakty 87 i 2.
    Jeżeli teraz przy pozycji 1 silnik pracuje, oznacza to że moduł jest zepsuty .
  • #10 7232457
    Konto nie istnieje
    Konto nie istnieje  
  • #11 7232708
    inot
    Poziom 35  
    Nie chcę się sprzeciwiać ale jeżeli szczotki są zapieczone to dlaczego nie ma problemu w pozycji 2 i 3 ?
  • #12 7232970
    Konto nie istnieje
    Konto nie istnieje  
  • #13 7233067
    inot
    Poziom 35  
    Według mojego schematu przerywanie realizowane jest na pracy wolnej za pomocą przekaźnika. Alle to model po roku 2001.
    Opel astra II wycieraczki
  • #14 7233094
    Konto nie istnieje
    Konto nie istnieje  
  • #15 7451097
    marcinekmm
    Poziom 12  
    Witajcie,

    U mnie jest podobna sytuacja; na I biegu wycieraczki powracając nie ustawiają się w dolnym położeniu tylko innym zasłaniając przednią szybę. Reagują na zmywacza szyb. Jedyny problem to taki, że stan spoczynku nie jest w najniższym połozeniu ale gdzieś o 30stopni w górę...

    Przekażnik do wymiany czy silniczek?

    Pzdr
    Marcin
  • #16 7451107
    Konto nie istnieje
    Konto nie istnieje  
  • #17 7451305
    marcinekmm
    Poziom 12  
    Może jednak ktoś wie; przełącznik IMHO nie ma tu nic do rzeczy. Pierwszy raz mam z tym problemem do czynienia stąd może laickie pytanie, ale zanim rozbiorę coś czego nigdy nie miałem w łapkach wolę zapytać.
  • #18 7451664
    Konto nie istnieje
    Konto nie istnieje  
  • #19 7451812
    marcinekmm
    Poziom 12  
    Sorki, źle zrozumiałem pojęcie przełącznika. Masz rację; ja niestety muszę zajrzeć do środka i wtedy się okaże co strzeliło; bez zajrzenia do środka się nie obędzie...
REKLAMA