logo elektroda
logo elektroda
X
logo elektroda
REKLAMA
REKLAMA
Adblock/uBlockOrigin/AdGuard mogą powodować znikanie niektórych postów z powodu nowej reguły.

Głośnik Hi-Sound WF-1211 8Ohm-Jakie parametry?

MIroslavv1 10 Sty 2010 14:57 2148 5
REKLAMA
  • #1 7514598
    MIroslavv1
    Poziom 12  
    Witam tak jak w temacie napisałem posiadam dwa takie głośniki kupione parę lat wstecz i nie znam ich parametrów może ktoś coś wie o nich i podzieli się informacjami.
  • REKLAMA
  • #2 7514726
    mczeslaw
    Poziom 36  
    Ratuje Cię tylko i wyłącznie samodzielny pomiar parametrów TS, jeśli wiem o czym mówię, no i po co one są :idea:.
    Ale najbezpieczniej było by 45-50 dm3 o obudowie zamkniętej i to w połowie wypełnioną materiałem dźwiękochłonnym, gdyż takie głośniki z bardzo niższej półki zazwyczaj mają wysoką dobroć.
    To bez jakichkolwiek pomiarów.
  • REKLAMA
  • #3 7515306
    MIroslavv1
    Poziom 12  
    Co rozumiesz pod pojęciem wysoka dobroć? Ta obudowa 45-50 dm3 to mam rozumieć jako proponowana pojemność kolumny bo jeśli tak to bardzo mała będzie jak na 30cm głośnik.
  • REKLAMA
  • #4 7515966
    mczeslaw
    Poziom 36  
    Dobroć całkowita to jeden z parametrów TS, oznaczany jako Qts.
    50 litrów dla kolumny typu closet to wcale nie mało.
    Głośnik Hi-Sound WF-1211 8Ohm-Jakie parametry?
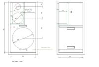
    To jest projekt pod głośnik klasy 30cm, który nie kwalifikuje się do obudowy typu BR, tylko do zamkniętej. Objętość Vc-55 dm3
  • REKLAMA
  • #5 7520159
    MIroslavv1
    Poziom 12  
    Ta kolumienka to całkiem zgrabna czy to z jakiegoś oryginalnego zestawu?Czy w roli głośnika średniotonowego można by zastosować coś z tej seri głośników?
  • #6 7520389
    mczeslaw
    Poziom 36  
    To jest mój projekt pod 30-sto centymetrowy głośnik Tonsila GDN30/60/1, który najlepiej gra w obudowie zamkniętej 55 litrów.
    Do tego był zamontowany głośnik klasy 16- cm, średniotonowy GDM16/80 też Tonsila i wysokotonowa kopułka Tonsil GDWK9/120.
    Są podane wymiary otworów, tak że sam widzisz co możesz tam wepchać.
    Głośnik średniotonowy i wysokotonowy jest odgrodzony od komory niskotonowej.
    Tak że jak widzisz 50- 55 litrów to wcale nie taka mała kolumna.
REKLAMA