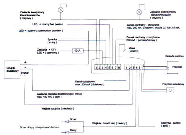
Witam szanownych forumowiczów. Ostatnio nabyłem alarm FRODO, miał być tani i mieć w miarę dobre możliwości, ale do rzeczy . Podłączyłem wszystko jak trzeba, dodatkowo oczywiście podłączyłem zielony kabelek przez diodę do brązowo-białego (a wcześniej do brązowo-żółtego) przewodu . Efekt jest taki, że alarm po uzbrojeniu i odczekaniu około 25sek. uaktywnia się, jak przy np. otworzeniu drzwii. Rozłączyłem wszystkie czujniki drzwiowe (oprócz tego w klapie) i nadal alarm się sam uaktywnia.Powiedzcie proszę, gdzie dokładnie podłączyc zielony (ten do czujników drzwiowych) mam z tym trochę problem. Będę bardzo wdzięczny za pomoc..
