logo elektroda
logo elektroda
X
logo elektroda
REKLAMA
REKLAMA
Adblock/uBlockOrigin/AdGuard mogą powodować znikanie niektórych postów z powodu nowej reguły.

Świeci ABS , Audi A6, 1,9 TDI 130KM, 2000r. ...

tomek1tomek1 08 Wrz 2011 10:52 6735 10
REKLAMA
  • #1 9906437
    tomek1tomek1
    Poziom 9  
    Witam kupiłem Audi A6 i świeci w nim ABS na panelu a na komputerze pokładowym świeci wykrzyknik w kółku i z nawiasami. Byłem u mechanika i nie umiał się podłączyć przez laptopa pod ABS.

    Co mogę sprawdzić czy wszędzie dochodzi napięcie?
    Jak sprawdzić czy sterownik ABS jest sprawny i czy dochodzi do niego napięcie.

    Wymieniałem ostatnio osłonę przgubu i zauważyłem ze przewody z tego koła z ABS są całe ze smaru, może tam tkwi problem?

    Proszę o pomoc.
  • REKLAMA
  • #2 9906671
    andrzej20001
    Poziom 43  
    Diagnostyka najpierw
  • REKLAMA
  • #3 9906722
    fuelinyourblood
    Poziom 35  
    Wypnij wtyczke z ABSu i na zapłonie sprawdz zasilanie i mase oraz linie k. Brak komunikacji swiadczy o braku zasilania, uwalonym sterze od ABSu, lub lichym sprzecie diagnostycznym. Na szybko, ale nie jest to fachowe, mozna reka wyczuc czy klikaja przekazniki w sterowniku jak załaczasz zapłon.
  • #4 9906788
    wojtekryba
    Poziom 32  
    Dla mnie jedno,uwalony czujnik przy demontażu przegubu.
  • #5 9906794
    tomek1tomek1
    Poziom 9  
    A jak sprawdzic zasilanie i linie k? mozna jakis opis wtyczki?
  • REKLAMA
  • #6 9906973
    trans-serwis
    Poziom 39  
    Potrzebujesz warsztatu a nie forum. Diagnostyka do zrobienia ale w warsztacie, nie w stodole u kumpla z fejsem.
  • #7 9909236
    tomek1tomek1
    Poziom 9  
    Byłem u mechanika co ma sprzet. I nie umiał połączyć sie do ABS-u. Ma ktoś opis wtyczki serownika ABS? Chciałbym przynajmniej zmierzyc czy dochodzi napięcie do niej.
  • REKLAMA
  • #8 9909621
    trans-serwis
    Poziom 39  
    Nie byłeś u mechanika, gdybyś był u mechanika zlecając naprawę nie byłbyś na tym forum z pytaniami bo już miałbyś naprawione.
  • #9 9910980
    fuelinyourblood
    Poziom 35  
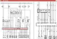
    Masz tu z ESP. Nie wiem co masz dokladnie bo nie podałes.



    Świeci ABS , Audi A6, 1,9 TDI 130KM, 2000r. ...
  • #10 9912684
    tomek1tomek1
    Poziom 9  
    Mam tylko abs. byłem dzis w innym warsztacie na diagnostyce i też nie umiał sie połączyć z abs. nie byłem zlecić naprawy tylko sprawdzić błąd. Jak sprawdzić zasilanie do sterownika abs? i Jak sprawdzić czy sterownik jest sprawny
  • #11 9912690
    Pawel wawa
    VIP Zasłużony dla elektroda
    To jednak powinieneś zlecić naprawę. Zero wiedzy a grzebiesz przy hamulcach!
    Masz na schemacie wszystko a jeśli nie potrafisz odczytać....
    Zamykam.
REKLAMA