logo elektroda
logo elektroda
X
logo elektroda
REKLAMA
REKLAMA
Adblock/uBlockOrigin/AdGuard mogą powodować znikanie niektórych postów z powodu nowej reguły.

brak zasilania na pompie paliwa Renault Scenik

zdziber 08 Lis 2011 11:56 6788 10
REKLAMA
  • #1 10115762
    zdziber
    Poziom 11  
    Witam -potrzebuję pomocy w ustaleniu braku zasilania na pompie paliwa Scenik 1.9 dci 2004r . Sprawdziłem przekażniki i bezpieczniki w komorze silnika i pod deską rozdzielczą są ok. podpięcie komputerem nie pokazuje błedu . potrzebuję pomocy w ustaleniu przebiego tego zasilania w samochodzie . Ewentualnie może ktoś miał taki problem i gdzies ulega uszkodzeniu przewód zasilający.
    zdziber
  • REKLAMA
  • #2 10115982
    marcpol
    Poziom 20  
    Sprawdź miernikiem lub żarówką zasilanie na przekaźnik i sterowanie.
  • REKLAMA
  • #3 10116251
    fuelinyourblood
    Poziom 35  
    Mówimy o tej pompie z przodu na podwoziu? Nie raz wystarczało ja potraktowac i wszystko było ok.
  • REKLAMA
  • #4 10118759
    zdziber
    Poziom 11  
    mówimy o pompie w zbiorniku, sprawdziłem włącznik bezwładnościowy, przekaźniki po wyjęciu .Po włączeniu zapłonu załącza się przekaźnik drugi od góry ten mały . Nie mam rozpiski tych przekaźników i może ktoś poratuje schematem posiadam inny schemat ale nie od tego modelu i akurat zasilanie paliwa nie jest tak poprowadzone.
    Zdziber
  • #5 10118978
    fuelinyourblood
    Poziom 35  
    Patrze na schemat i patrze, a pompy nie widze stary. looknij do zbiornika czy ty tam masz pompe? Popatrz ile tam ci wchodzi kabelków i sprawdź grubość i kolory?
  • #6 10119128
    zdziber
    Poziom 11  
    Do zbiornika dochodzą 4 przewody: 2 grubsze (biały - zasilanie i czarny - masa). Były też wersje właśnie bez pompy w zbiornikach.
    Zdziber
  • Pomocny post
    #7 10119212
    fuelinyourblood
    Poziom 35  
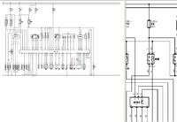
    Przekaznik jest przedziale silnikowym w skrzynce z innymi. Sprawdź według schematu co masz, a czego nie? Jak zewrzesz grubsze piny to pompa pracuje? Masz tu schemat:



    brak zasilania na pompie paliwa Renault Scenik
  • REKLAMA
  • #8 10119379
    zdziber
    Poziom 11  
    dzięki zobaczę z tym schematem ale też zwierałem wszystkie przewody przekaźników nie (sterowania) i też brak reakcji. Masz może rospis tych przekaźników który to dokładnie jet ten K20 na moim mam inne rozpiski literowe A,B.C
  • #9 10119387
    fuelinyourblood
    Poziom 35  
    Mały, na dole, pierwszy z prawej.
  • #10 10119475
    zdziber
    Poziom 11  
    sprawdziłem nie mam przejścia od pompy do przekaźnika czy może masz jak ten przewód idzie gdzie złącza dzięki za pomoc , może masz symbol silnika oznaczenie do tego schematu co przesłałeś to poszukam może coś znajdę.
    zdziber
  • #11 10125051
    zdziber
    Poziom 11  
    dzięki za pomoc schemat jest ok.
    mała skucha w tym samochodzie ktoś grzebał i są założone dwie pompy a ta w zbiorniku jest odłączona. ta druga zewnętrzna się zatarła
    TEMAT ZAMYKAM
REKLAMA