logo elektroda
logo elektroda
X
logo elektroda
REKLAMA
REKLAMA
Adblock/uBlockOrigin/AdGuard mogą powodować znikanie niektórych postów z powodu nowej reguły.

Wtyk kabla sygnału ECU opel vectra

piotrek8602 11 Sty 2012 19:22 4885 7
REKLAMA
  • #1 10382584
    piotrek8602
    Poziom 9  
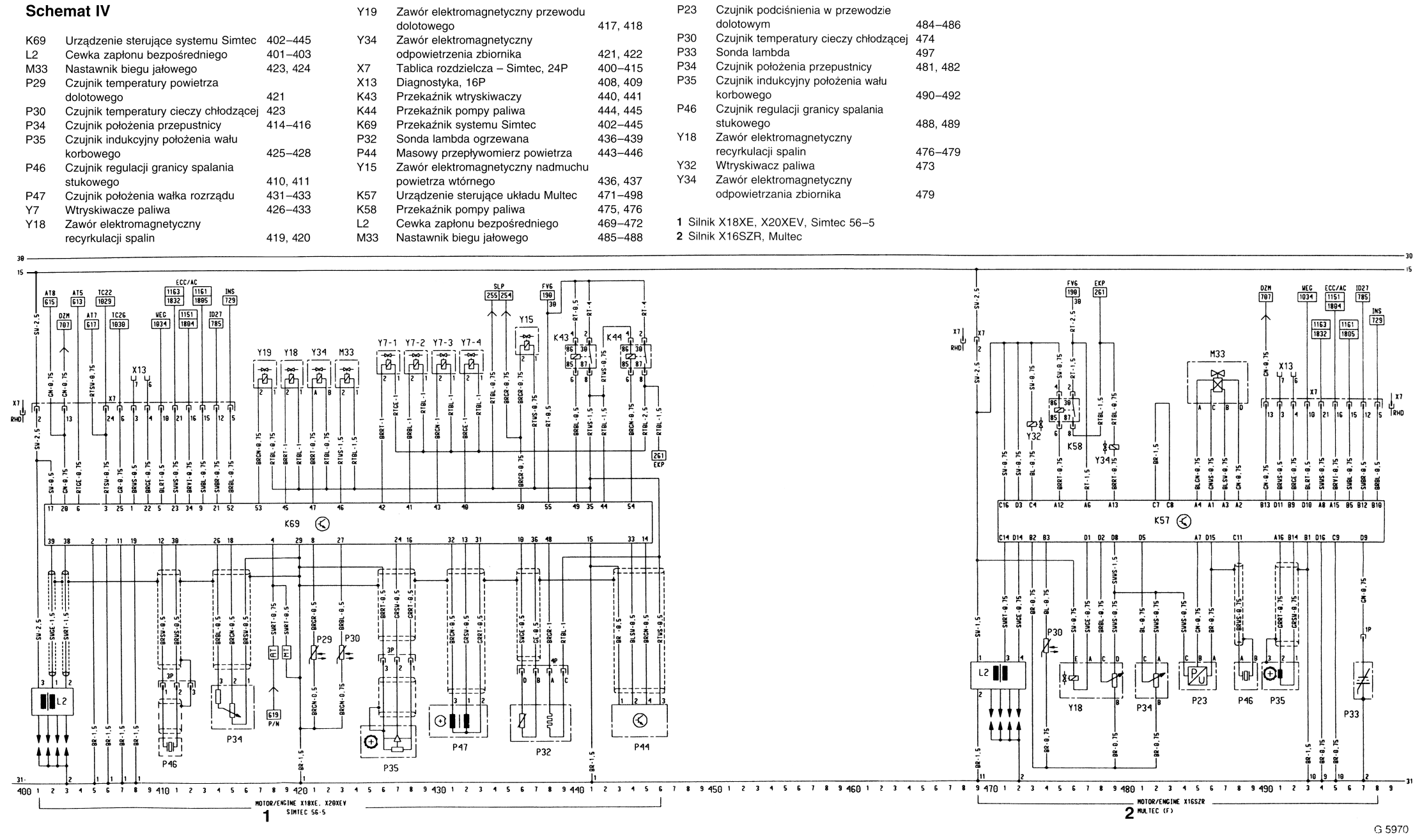
    Czy ktoś może mi podpowiedzieć gdzie znajduje się ten wtyk sygnału ECU w oplu Vectra B? Czy to jest pin w złączu diagnostycznym 6? Potrzebuję dlatego gdyż chciałem podłączyć oscyloskop i porównać sygnał z czujnika tlenu i pisze żeby podłączyć do wtyku sygnału ECU a masę do uziemienia D9. Z góry bym dziękował za odpowiedz.
  • REKLAMA
  • #2 10382737
    milejow
    Poziom 43  
    Dokładne dane o aucie, tu wróżki nie grasują (choć się trafiają magicy podobni do wróżek)
  • REKLAMA
  • #3 10382842
    piotrek8602
    Poziom 9  
    Opel Vectra B 1.6 X16SZR 55kW 1997r
  • REKLAMA
  • #4 10383171
    s.q
    Poziom 21  
    Witaj, jeżeli chodzi o gniazdo komputera, prawa strona na podszybiu pod gumowym fartuchem (4 nakrętki) Pozdrawiam.
  • #5 10383246
    piotrek8602
    Poziom 9  
    A czy ktoś mógłby mi powiedzieć pod który pin tam się podczepić? Czy to jest pin nr 6? A masę sondy pod wtyk uziemienia D9?
  • #6 10383831
    milejow
    Poziom 43  
    Jednopunkt i sonda bez grzałki? Pin 27B i masa
  • REKLAMA
  • #7 10383960
    ociz
    VIP Zasłużony dla elektroda
    D9 to masz właśnie sondę, a masa z silnika czyli np B1 przy ECU.
    Wtyk kabla sygnału ECU opel vectra
  • #8 10385713
    piotrek8602
    Poziom 9  
    Dziękuję za taką podpowiedz i zamykam już ten temat.
REKLAMA