logo elektroda
logo elektroda
X
logo elektroda
REKLAMA
REKLAMA
Adblock/uBlockOrigin/AdGuard mogą powodować znikanie niektórych postów z powodu nowej reguły.

Octavia alh dziwne błędy [masy ???]

rosa9 20 Sty 2012 09:52 9444 25
REKLAMA
  • #1 10422379
    rosa9
    Poziom 11  
    Witam , może ktoś z Was miał taki przypadek Octavia 1 1,9 tdi alh 90KM 2004r błędy;
    18027 obwód przekażnika świec żarowych [przerwa lub zwarcie do masy]
    17946 przekażnik rozłączający silnik [przerwa lub zwarcie do masy]
    17957 zawór sterujący ciśnienie doładowania [przerwa lub zwarcie do masy]
    czasami tryb awaryjny ,czasami czek, błędy wyskakują równocześnie ???
  • REKLAMA
  • #2 10422428
    Marcin_ca1
    Poziom 22  
    Sprawdź bezpieczniki te przy sterowniku, pod maską.
  • #3 10422557
    fuelinyourblood
    Poziom 35  
    Raczej przekaznik główny lub jego obwód. Ale bezpieczniki tez bym sprawdził.
  • #4 10422848
    rosa9
    Poziom 11  
    Przekażnik był wymieniony .
  • REKLAMA
  • #5 10422885
    Pawel wawa
    VIP Zasłużony dla elektroda
    Co dziwnego jest w tych błędach? Zwyczajny brak zasilania w/w podzespołów. Schemat i kontrolka w rękę i ogarniesz w kilka minut.
  • #6 10422940
    bart.auto
    Poziom 21  
    Jest to wina braku zasilania lub przerwy w okablowaniu

    Moderowany przez Pawel wawa:

    Zarobiłeś właśnie drugie ostrzeżenie za udzielenie nic nie wnoszącej do dyskusji porady. Na tym forum, pisanie dla samego pisania, nie będzie tolerowane. Radzę dobrze pomyśleć przed wysłaniem kolejnego postu. 3.1.11. (10.2, 10.7, 12) Publikowanie wpisów nie zawierających merytorycznej treści, zawierających szkodliwe porady, porady nie będące próbą rozwiązania problemu oraz publikowanie identycznych wpisów następujących po sobie lub powtarzających informacje ujęte w toku dyskusji.

  • REKLAMA
  • #7 10423087
    rosa9
    Poziom 11  
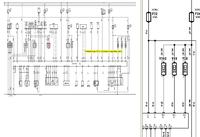
    Ok sprawdzę zasilania , może ktoś podesłać schemat elektryczny [ALH]
  • REKLAMA
  • #8 10426524
    fuelinyourblood
    Poziom 35  
    ALH prosze

    Octavia alh dziwne błędy [masy ???]
  • #9 10428534
    rosa9
    Poziom 11  
    Przekażniki 469 i 100 ciepłe ,zasilanie na śrubie [fi8] 30a- dziwnie lużna śruba a nakrętka trzyma mocno
  • #10 10430914
    Pawel wawa
    VIP Zasłużony dla elektroda
    To pomiar pod obciążeniem.
  • #11 10431383
    rosa9
    Poziom 11  
    Znalazłem chwilę i pomierzyłem
    Pomiar pod obciążeniem; z bezpiecznika 34 do elektrozaworów ok
    Pomiar pod obciążeniem; ze sterującego elektrozaworu do wtyczki komputera ok
    Pomiar pod obciążeniem; z bezpiecznika 32 do wtyczki komputera 1 i 2 pin ok [był założony bezpiecznik 30A???]
  • #12 10431668
    Pawel wawa
    VIP Zasłużony dla elektroda
    Możesz napisać, jak to pomierzyłeś?
  • #13 10431696
    rosa9
    Poziom 11  
    Wypiąłem komputer pomiędzy pin a wypięty bezpiecznik żarówka 55wat tak samo z zasilaniem elektrozaworów {po kilkanaście sekund nie wiem jak długo można }
  • #14 10431763
    Pawel wawa
    VIP Zasłużony dla elektroda
    Kolego, sprawdziłeś w ten sposób ciągłość obwodu, i bardzo dobrze. Należało, przy okazji sprawdzić przywieranie do masy i plusa (chociaż w Twoim przypadku to nie jest konieczne). Nam teraz chodzi o pomiar napięcia i sprawdzenie gdzie jest a gdzie nie. Więc nic nie odpinaj a żarówkę podłącz z jednej strony do masy a drugim przewodem sprawdzaj zasilania główne.
  • #15 10432035
    rosa9
    Poziom 11  
    Kolego Pawle pod przekażnikami są przewody główne które wszystkie mają napięcia [tylko 87F\DIESEL bez napięcia to chyba świece?]
  • #16 10450775
    rosa9
    Poziom 11  
    Błędy pojawiają się nadal tylko mała zmiana;
    18027 obwód przekażnika świec żarowych [przerwa lub zwarcie do masy]
    17946 przekażnik rozłączający silnik [przerwa lub zwarcie do masy]
    19561 silnik klapki zmiany długości /geometrii kolektora dolotowego
    16485 czujnik masowego lub objętościowego przepływu powietrza poza zakresem
  • #17 10454204
    fuelinyourblood
    Poziom 35  
    Sprawdziłes według schematu który ci podałem?
    Masz błedy odnosnie zasilania, wszystko łaczy przekaznik główny lub masa.
  • #18 10942678
    rosa9
    Poziom 11  
    Wymieniłem obydwa elektrozawory i zero błędów , jeden z nich w trakcie pracy robił zwarcie a oporność miały idealną [dziwne???]
  • #19 13039634
    rosa9
    Poziom 11  
    Sterownik robił zwarcie ,wymiana sterownika silnika i po kłopocie
  • #21 13041101
    rosa9
    Poziom 11  
    Sterownik w 100% ,dwa lata jeżdziłem z błędami ,podmieniałem wszystkie elementy i żadnej zmiany, tydzień dobrze, tydzień żle , sterownik raagował na temperature czym zimniej tym lepiej ,jeden z elementów sterownika robił zwarcie do masy.
  • #22 13062181
    tomek27911
    Poziom 2  
    Witam.
    Mam ten sam problem w mojej octavii z 2005r 1.9 tdi oznaczenie silnika alh i chciałbym zapytac czy musi byc identyczny sterownik co stary czy moze byc np od golfa IV?
  • #23 13062205
    rosa9
    Poziom 11  
    Trzeba kupić sterownik o tym samym numerze np u mnie 038906012HA . ja mam skodę a kupiłem od seata toledo
  • #24 13062269
    tomek27911
    Poziom 2  
    ja w swojej octavi mam taki sterownik, podje nr 038 906 012 H a od golfa IV 99rok mam prawie taki sam identyczny nr tylko ze jest 012 M, niewiecie panowie czy to bedzie do mojej octavi?
  • #25 13062275
    rosa9
    Poziom 11  
    Trzeba szukać tego samego numeru niestety
  • #26 13062305
    tomek27911
    Poziom 2  
    Ok z góry dzięki
REKLAMA