logo elektroda
logo elektroda
X
logo elektroda
REKLAMA
REKLAMA
Adblock/uBlockOrigin/AdGuard mogą powodować znikanie niektórych postów z powodu nowej reguły.

VW Polo 2002 Pali bezpiecznik elektrycznego obwodu spalinowego (37)

piorunpl 27 Lut 2012 18:38 16582 12
REKLAMA
  • #1 10607036
    piorunpl
    Poziom 9  
    Witam, posiadam VW Polo 1.2, 2002 rocznik. Po przyjeździe z Niemiec (po drodze brak większych problemów poza tym, że zapaliła się lampka sygnalizacyjna spalin, a 50 km od domu zaświeciła się na pomarańczowo kontrolka oleju, po uzupełnieniu oleju lampka nie zgasła). Następnego dnia po przekręceniu stacyjki (jeszcze przed odpaleniem) lampka oleju już nie świeci, natomiast pali się bezpiecznik elektrycznego obwodu spalin, nr 37. Rozrusznik działa, ale nie odpala samochodu. Wymieniony bezpiecznik jest o właściwej wartości, po kilku próbach wymiany każdy bezpiecznik jest spalony. W czym tkwi problem?

    Proszę o pomoc,
    pozdrawiam,
    Piotr
  • REKLAMA
  • #2 10607081
    Albus
    Poziom 21  
    Kontrolka poziomu oleju gaśnie, jeśli uzupełnisz olej, maska będzie jeszcze otwarta a zapłon będzie włączony. Odczytaj błędy vagiem.
  • REKLAMA
  • #3 10607175
    fuelinyourblood
    Poziom 35  
    Napisz jaki masz kod silnika. Bezpiecznik 37 to miedzy innymi obwód grzania sond lambda. Moze masz przewod przytopiony do wydechu?
  • REKLAMA
  • #4 10607374
    piorunpl
    Poziom 9  
    Albus napisał:
    Kontrolka poziomu oleju gaśnie, jeśli uzupełnisz olej, maska będzie jeszcze otwarta a zapłon będzie włączony. Odczytaj błędy vagiem.


    Niestety nie mam takiej możliwości :(

    fuelinyourblood napisał:

    Napisz jaki masz kod silnika. Bezpiecznik 37 to miedzy innymi obwód grzania sond lambda. Moze masz przewod przytopiony do wydechu?


    Kod silnika to 9N.
  • #5 10607393
    Albus
    Poziom 21  
    To nie jest kod silnika, kod silnika jest 3-literowy, znajdziesz go na wlepce w bagażniku "Engine code".
  • REKLAMA
  • #6 10607455
    kubas10
    Poziom 25  
    Albus napisał:
    To nie jest kod silnika, kod silnika jest 3-literowy, znajdziesz go na wlepce w bagażniku "Engine code".
    Albo na obudowie rozrządu
  • #7 10607733
    piorunpl
    Poziom 9  
    Niestety dziś już do auta nie zajrzę, ale w dokumentacji znalazłem taki numer: WVWZZZ9NZ3D018767, może się przyda :)
  • #8 10611460
    piorunpl
    Poziom 9  
    Kod silnika to AZQ, ale nie jestem pewien do pierwszej literki, jest slabo widoczna.
  • #9 10611629
    fuelinyourblood
    Poziom 35  
    Dziwne bo 37 odpowiedzialny jest za cewki, a 9 za grzanie sond.
  • #10 10611642
    piorunpl
    Poziom 9  
    Na 100% numer 37, po trzykrotnej próbie, trzy razy paliło bezpiecznik nr 37. :(

    Dodano po 29 [minuty]:

    VW Polo 2002 Pali bezpiecznik elektrycznego obwodu spalinowego (37)

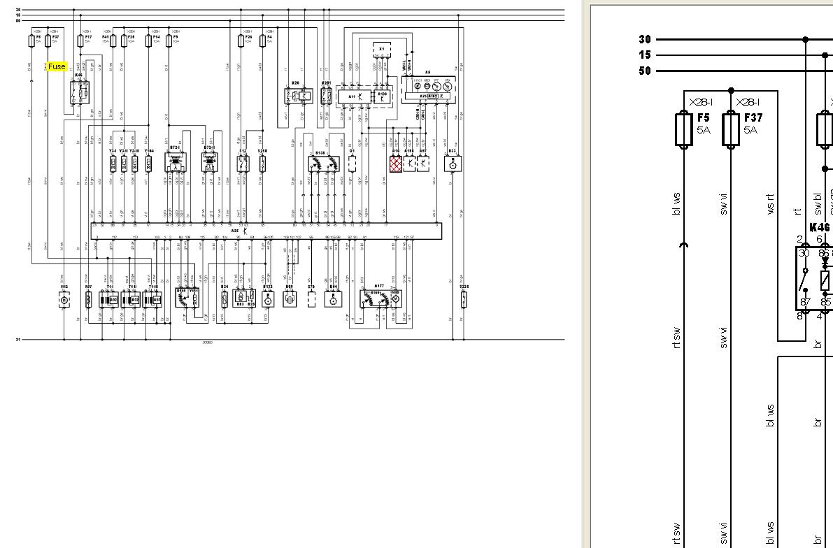
    Na obrazku zaznaczony jest symbol tego bezpiecznika, który natychmiast po przekręceniu stacyjki na 1 poziom pali się (wyraźnie widać iskrę).
  • #11 10612098
    kubas10
    Poziom 25  
    No to powypinaj wtyczki od cewek i wtedy zobacz czy pali bezpiecznik ale w twoim wypadku jest zwarcie na instalacji (+12V do masy) w okolicy podszybia...
  • #12 10612427
    piorunpl
    Poziom 9  
    Dzięki, jutro sprawdzę. A może jeszcze wypiąć sondę Lambda? A jak to nie da nic to może pompę paliwa?
  • #13 10612552
    fuelinyourblood
    Poziom 35  
    Wypnij bezpiecznik, wsadx zarówke. Szukaj zwarcia. Zarówka swieci jasno - Masz zwarcie. Ciemno - brak zwarcia.

    VW Polo 2002 Pali bezpiecznik elektrycznego obwodu spalinowego (37)
REKLAMA