logo elektroda
logo elektroda
X
logo elektroda
REKLAMA
REKLAMA
Adblock/uBlockOrigin/AdGuard mogą powodować znikanie niektórych postów z powodu nowej reguły.

Scenic II - Radio/licznik, brak wtyczek, potrzebny schemat

cojac1 30 Gru 2012 00:46 13608 10
REKLAMA
  • #1 11714453
    cojac1
    Poziom 12  
    Witam. Potrzebuję schemat audio (licznik - radio, żółta wtyczka) do Scenica II rok 2004 lub pinout licznika 15pin. Mam takiego sprowadzonego na warsztacie, tylko ktoś wcześniej wymontował radio z wtyczkami. Radio mam dostarczone TunerList. Proszę o pomoc. Pozdrawiam
  • REKLAMA
  • #2 11714734
    Strumien swiadomosci swia
    Poziom 43  
    Na stronie studio24 są schematy.
    Ale nie ma sie co bawić tylko dokup kabelek radio- display, podchodzi od megany laguny scenica ,clio 2.
  • REKLAMA
  • #3 11715286
    cojac1
    Poziom 12  
    Tylko póki co nie mogę się dostać na studio24 i nie ma to jak samemu to zlutować ;-). W sumie dokładny pinout licznika rozwiązałby problem, wiadomo. To co naszukałem do teraz nie rozwiązuje problemu, niestety.
  • REKLAMA
  • #4 11715307
    SZYMON BYDGOSZCZ
    Poziom 38  
    Strumien swiadomosci swia napisał:
    Na stronie studio24 są schematy.
    Ale nie ma sie co bawić tylko dokup kabelek radio- display, podchodzi od megany laguny scenica ,clio 2.


    Nie wprowadzaj w błąd !

    Megane , clio , laguna ma wyświetlacz osobno a scenic ma w liczniku !

    Jakie było radio w tym scenicu ?

    Na 100 % tuner list ?

    Bo mogła być navi carminat beckera i wtedy jest inny licznik - nie zadziała z tuner listem.

    Jeśli był tuner list do do żółtej kostki mini-iso jest 5 przewodów jeśli była navi to jest jeszcze czarna wtyczka 18 pin.
  • REKLAMA
  • #6 11722860
    cojac1
    Poziom 12  
    Tak, właśnie taki. Szara i czerwona wtyczka 15pin, 2 i 3 pin wolny
  • #7 11731844
    cojac1
    Poziom 12  
    Uprzejmie ponawiam :|
  • #8 11732088
    milejow
    Poziom 43  
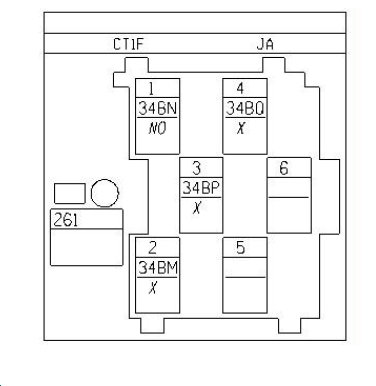
    Szara wtyczka:
    Scenic II - Radio/licznik, brak wtyczek, potrzebny schemat
    Scenic II - Radio/licznik, brak wtyczek, potrzebny schemat

    Czerwona:
    Scenic II - Radio/licznik, brak wtyczek, potrzebny schemat

    Czerwona (model z navi:
    Scenic II - Radio/licznik, brak wtyczek, potrzebny schemat
  • #9 11734457
    cojac1
    Poziom 12  
    Masz może jeszcze przyporządkowanie do pinów w radiu?
  • Pomocny post
    #10 11737722
    milejow
    Poziom 43  
    Scenic II - Radio/licznik, brak wtyczek, potrzebny schemat Scenic II - Radio/licznik, brak wtyczek, potrzebny schemat Scenic II - Radio/licznik, brak wtyczek, potrzebny schemat Scenic II - Radio/licznik, brak wtyczek, potrzebny schemat Scenic II - Radio/licznik, brak wtyczek, potrzebny schemat Scenic II - Radio/licznik, brak wtyczek, potrzebny schemat Scenic II - Radio/licznik, brak wtyczek, potrzebny schemat Scenic II - Radio/licznik, brak wtyczek, potrzebny schemat
  • #11 11745664
    cojac1
    Poziom 12  
    Dzięki Kolego. Pozdrawiam, zamykam.
REKLAMA