logo elektroda
logo elektroda
X
logo elektroda
REKLAMA
REKLAMA
Adblock/uBlockOrigin/AdGuard mogą powodować znikanie niektórych postów z powodu nowej reguły.

Logitech z2300 - Optymalne ustawienie subwoofera w pokoju 5x5m dla lepszego basu

kamas2232 20 Lut 2014 15:03 1791 5
REKLAMA
  • #1 13325181
    kamas2232
    Poziom 2  
    Jak powinienem ustawić subwoofer aby wydobyć bardzo niskie dźwięki? pokój 5x5m. Postawiłem go w rogu obok biurka ma wolną przestrzen 1x1 wokół siebie, obok stoi regał, ale niestety słychac tylko takie dudnienie. Bass schodzi najniżej w przeciwległym rogu pokoju. Z góry dziekuje za pomoc :)
  • REKLAMA
  • #2 13326274
    KOCUREK1970
    Specjalista Sieci, Internet
    kamas2232 napisał:
    Jak powinienem ustawić subwoofer aby wydobyć bardzo niskie dźwięki? pokój 5x5m.

    Jedyna odpowiedz, jaka przychodzi mi do głowy, to wszędzie.....,
    Tylko, że:
    kamas2232 napisał:
    pokój 5x5m. Postawiłem go w rogu obok biurka ma wolną przestrzen 1x1 wokół siebie, obok stoi regał

    Jest tak wyczerpującą informacją, że trudno na to odpowiedzieć inaczej.
    Ja bardzo lubię truskawki!....
    Rozrysuj co jak wygląda, gdzie stoi, jak masz pokój umeblowany, a dopiero potem można coś myśleć.
  • REKLAMA
  • #3 13329544
    kamas2232
    Poziom 2  
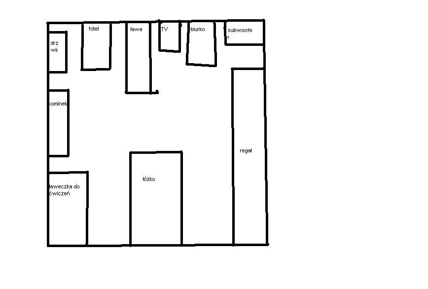
    Logitech z2300 - Optymalne ustawienie subwoofera w pokoju 5x5m dla lepszego basu tak to wygląda mniej więcej :)
  • REKLAMA
  • #4 13345527
    =N3UTR0N=
    Poziom 11  
    Hej. To nie ma sensu abyś pytał i nie mówię tego złośliwie. Można się tutaj mądrzyć i doktoryzować ale to jest zbyt rozbudowany temat aby ktokolwiek ( nawet mistrz świata ) podał Ci przez internet współrzędne dla subwoofera. Musisz to ogarnąć metodą prób i błędów.

    Spróbuj postawić pod ławą a ty przesuwaj się siedząc na krześle bliżej narożnika. Jeszcze można postawić między drzwiami a kominkiem ale to już będzie pewnie kłopotliwe.
  • REKLAMA
  • #5 13347084
    Latynos2010
    Poziom 10  
    a pod biurkiem ci się nie zmieści i postaw przy którymś brzegu nie na środku u zobacz czy coś da , ja tak zrobiłem jak miałem blaupunkt-a pod wzmacniacz podpięty i dużo lepiej jak gdzieś indziej stał
  • #6 13358661
    Rozjechany_Króliczek
    Poziom 23  
    Dudniący bas będzie od 20-40hz
    ciepły i miękki od 70 w górę do 100.
    Głośnik masz z boku więc obróciłbym go w stronę ściany jak chcesz żeby był bardziej głęboki , z kolei na pokój jak ma być miękki.
REKLAMA