logo elektroda
logo elektroda
X
logo elektroda
REKLAMA
REKLAMA
Adblock/uBlockOrigin/AdGuard mogą powodować znikanie niektórych postów z powodu nowej reguły.

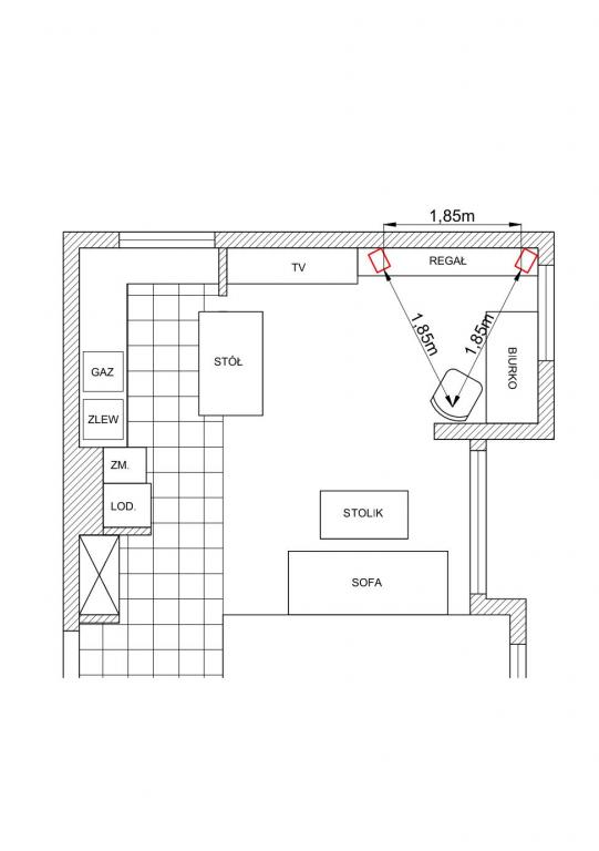
Jak optymalnie ustawić Yamaha A-520 i Hans Deutsch 304S w nowym mieszkaniu?

witeck 11 Kwi 2014 11:15 1554 3
REKLAMA
  • #1 13498025
    witeck
    Poziom 10  
    Witam,
    Przeprowadziłem się do nowego mieszkania i próbuję ustawić swój zestaw stereo. Jako, że najwięcej czasu spędzam przy biurku, tam też będzie mój główny punkt odsłuchu. Na rysunku zaznaczyłem proponowane ustawienie kolumn głośnikowych.
    Sprzęt, którym dysponuje to:
    - wzmacniacz Yamaha A-520
    - kolumny podstawkowe Hans Deustch 304S
    Kolumny są ustawione w trójkącie równoramiennym, głośnik niskotonowy znajduje się na wysokości uszu.
    W poprzednim mieszkaniu kolumny były ustawione bardzo przypadkowo, złączone razem, na wysokości kolan i dość daleko od miejsca odsłuchu. W porównaniu z tamtym ustawieniem odbiór muzyki jest teraz zupełnie inny. Przede wszystkim pojawiło się dużo basu (wzmacniacz jest ustawiony na zero, nie ma żadnych ustawień tonów), słychać teraz dużą przestrzeń. Na razie ciężko mi się przyzwyczaić do odsłuchu. Na pewno muszę słuchać dużo ciszej niż przy poprzednim ustawieniu bo słucha się wtedy niekomfortowo.
    Przede wszystkim proszę o ocenę zaproponowanego ustawienia. Czy kolumny nie znajdują się zbyt blisko miejsca odsłuchu? Czy jest jakaś zasada dotycząca minimalnej odległości od kolumn? Proszę ewentualnie zaproponować inne ustawienie sprzętu.
  • REKLAMA
  • #2 13498932
    igor1516
    Poziom 23  
    Tak na pewno nie, bo dźwięk i tak będziesz miał na 1 ucho, więc co to za stereo ? W załączniku masz ,,Rysunek "
  • REKLAMA
  • #3 13498987
    witeck
    Poziom 10  
    Siedzę zazwyczaj bokiem do biurka i twarzą skierowaną do ściany, gdzie są ustawione kolumienki - tak jest mi po prostu najwygodniej, więc dźwięk dociera tak samo do każdego ucha.
    igor1516 - nie widzę żadnego załącznika.
  • #4 13500570
    Herethic
    Poziom 29  
    witeck napisał:
    Czy jest jakaś zasada dotycząca minimalnej odległości od kolumn?
    http://www.acoustic.ua/forms/calculator1.en.html
    Jak widzisz, niestety nie na wiele Ci się to przyda... :(

    witeck napisał:
    Na pewno muszę słuchać dużo ciszej niż przy poprzednim ustawieniu bo słucha się wtedy niekomfortowo.

    Zakładając, że chcesz pozostać przy sprzęcie który posiadasz:

    Zwróć uwagę, że ta Yamaszka ma regulowany "Loudness" - ścisz go i wzmocnij "Volume".

    Te "monitory" odizoluj od półki regału.
    Np. grubą podkładką z twardego filcu, nóżkami z twardej gumy,
    a i choćby starymi podkładkami pod myszkę komputerową...
    Zmniejszysz w ten sposób trochę "rezonans" regału na którym stoją.
    witeck napisał:
    (...) głośnik niskotonowy znajduje się na wysokości uszu.
    Teoretycznie lepiej jest, żeby w tej pozycji był wysokotonowy.
    Sprawdź jednak, które ustawienie Ci bardziej pasuje.
    Spójrz na konstrukcję starego materaca sprężynowego.
    Nie, nie zwariowałem. W analogiczny (nie dosłowny) sposób zrób tym monitorom
    "ekrany akustyczne" z boku i z tyłu (na regale):

    Pierwsza warstwa od strony mebli to przezroczysta folia samoprzylepna - koszt około 6zł/m2.
    Powinna byc o około 5-10mm szersza i wyższa od "ekranu". Zabezpieczy mebel przed uszkodzeniem - bitumika ma swoje wady.
    Druga warstwa to mata filcowa z warstwą bitumiczną. Również samoprzylepna. Typowe "mute-car-audio"
    (nazwy nie pamietam, wygłuszałem tym kiedyś Cinqecento - jest tania i całkiem przyzwoita) - koszt rzędu 30-50zł/m2.
    "Wygugluj". Grubość około centymetra (może trochę mniej)... Kolejna warstwa to kawałek gąbki tapicerskiej - wystarczy przykleić.

    Zmniejszysz w ten sposób "rezonans" regału na którym stoją i częściowo oczywiście - podbicie basu.
    Dobrze, jeśli regał stoi na kawałku grubej wykładziny i nie styka sie ze ścianą.

    Kolejny krok: Jak optymalnie ustawić Yamaha A-520 i Hans Deutsch 304S w nowym mieszkaniu?

    Różowa i czerwona linia to oparte na podobnej zasadzie wytłumienie niższych i średnich częstotliwości.
    Postaraj sie o użycie grubszych materiałów - może to być np.kawałek "Shaggy"
    podklejony pianką. Impowizuj tak, żeby połaczyć efekt z estetyką.

    Jeśli te zabiegi dadzą Twoim zdaniem za mały efekt, pomyśl o zmianie "monitorów".
    Może warto zwrócić uwagę na "Paradigmy" - firma słynie z nieco suchego dźwięku,
    z dynamicznym, ale niezbyt niskim basem. Możliwe więc, że midwoofery mogłyby więc być nawet tej
    samej wielkości.

    Powodzenia! :spoko:

    ______________________________________________________________________
    Kliknięcie "pomógł" przy pomocnych postach to podziękowanie za poświęcony czas. :)
REKLAMA