logo elektroda
logo elektroda
X
logo elektroda
REKLAMA
REKLAMA
Adblock/uBlockOrigin/AdGuard mogą powodować znikanie niektórych postów z powodu nowej reguły.

Sprinter 308D '95 - Bezpiecznik nr 10 pali się przy włączaniu świateł

tomekk95 22 Maj 2014 19:53 8361 12
REKLAMA
  • #1 13625720
    tomekk95
    Poziom 9  
    Witam chciałbym zapytać jaka może być przyczyna palenia się bezpiecznika nr10 odpowiada on za podświtlenie zegarów. Sprawa wygląda tak w momencie włączenia świateł zegary śą podświtlane przez 1 sekunde po tym czasie pali się bezpiecznik i klapa. Wyeliminowałem zwarcie w lampach przednich odpiołem wtyczki i to samo, wypiołem też zegary i dalej sie pali.
    w momencie włączenia świateł na nowym bezpieczniku przygasa wyświetlacz kilometrów chociaż jest on podpięty po inny bezpiecznik, jeszcze oprócz tego włączenie świateł przeciwmgielnych powoduje palenia sie prawej żarówki świateł mijania. Jest to Sprinter 308D 95rok z paką (nie kaczka tylko już ten nowszy)
    jeśli koś ma jakiś pomysł lub schemat to bardzo proszę o odp
    z góry dziękuje
  • REKLAMA
  • #2 13626642
    emeryt2
    Poziom 42  
    Czy stało się to samoistnie czy po wymianie radia lub majstrowaniu przy nim?
  • #3 13627070
    Gerri
    Spec od Mercedesów
    Otwórz tylne drzwi i zobacz czy wtedy spali.
  • #4 13627450
    tomekk95
    Poziom 9  
    dokładnie niewiem bo niedawno nabyłem ten samochód i już tak było ale przy radiu widziałem ze jakieś przewody były poucinane
  • REKLAMA
  • #5 13627650
    Gerri
    Spec od Mercedesów
    No tak. Nie wierzy mi. OK, twoja sprawa. :)
  • #6 13627834
    tomekk95
    Poziom 9  
    otwarcie drzwi i odpięcie wtyczki od pokręteł nadmuchu też nic nie dało
    jeszcze sprawdze lampke oświetlenia tablicy jak to nie pomoże to chyba będe zmuszony wiązke pruć

    Dodano po 1 [godziny] 28 [minuty]:

    ma może koś schemat instalacji do tego modelu jak tak to bardzo proszę
  • Pomocny post
    #7 13628060
    januszx3
    Poziom 31  
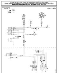
    Sprawdź, czy Twój "bezpiecznik nr 10", odpowiada temu (bezp. 10) na poniższym schemacie:
    Sprinter 308D '95 - Bezpiecznik nr 10 pali się przy włączaniu świateł

    Sprinter 308D '95 - Bezpiecznik nr 10 pali się przy włączaniu świateł
    Może zamiast palić bezpieczniki warto kontynuować diagnostykę z żarówką (np. świateł głównych + oprawka+przewody) podłączoną do gniazda "10", w miejsce bezpiecznika. Usunięcie zwarcia (żarówka zgaśnie, lub przygaśnie), przy tak skromnej wiedzy o ewentualnych przeróbkach w instalacji, jest utrudnione.
  • Pomocny post
    #8 13628074
    Gerri
    Spec od Mercedesów
    tomekk95 napisał:
    otwarcie drzwi i odpięcie wtyczki od pokręteł nadmuchu też nic nie dało

    Chciałbym, żebyś mnie dobrze zrozumiał. Chodzi o otwarcie tylnych drzwi, na których wisi tablica rejestracyjna. Jak otworzysz te drzwi, to zauważysz mniej/więcej w środku wysokości kołeczki stykowe które przekazują prąd z nadwozia na drzwi (do oświetlenia tablicy rejestracyjnej) Jeżeli jest to bus, to są jeszcze styki do grzanej szyby. Tak więc jak otworzysz te drzwi, to nastąpi przerwanie dopływu prądu do lampek tablicy. Jeżeli w lampkach jest problem, to przy otwartych drzwiach bezpiecznik przestanie się przepalać.
    Jaka jest natomiast usterka z lampkami? Jak wyjmiesz którąkolwiek, to zauważysz, że lampka ma dwa styki do podłaczenia konektorków zasilających (co jest oczywiście oczywiste). Zwróć jednak uwagę, że jeden ze styków lampki jest połączony z taką metalową blaszką sprężystą która utrzymuje lampkę w otworze drzwi. TEN STYK MUSI BYĆ POŁĄCZONY Z MINUSEM (MASĄ)! Jeżeli na ten styk będzie podłączony plus, to dopóki sprężysta blaszka będzie stykać z nadwoziem poprzez lakier drzwi, to lampka będzie działać. Z czasem jednak lakier się przeciera, blaszka dotyka do gołego metalu i zwarcie gotowe. A przewody zamienić bardzo łatwo (tym bardziej, że auto ma już swoje lata) Można je zamienić bezpośrednio na lampce, na stykach od strony drzwi i na stykach na słupku nadwozia. Oryginalnie na przewodzie brązowym powinien być minus, a na szarym ze szlaczkiem - plus. Rozpisałem się tak dlatego, bo ta usterka jest chyba w 90% powdem wywalania bezpiecznika deski rozdzielczej - zarówno w Sprinterze pierwszej generacji, jak i w pierwszym CDI.
  • REKLAMA
  • #9 13628546
    tomekk95
    Poziom 9  
    dziękuje wam za odpowiedzi tylko to jest sprinter z paką, po drugie sprawdzałem na żaróce, a po trzecie odciołem przewód z wiązki który idzie to tylnej lampy i okazało sie że gdzieś na nim jest zwarcie bo w lampi jest ok
  • #10 13629109
    Gerri
    Spec od Mercedesów
    tomekk95 napisał:
    tylko to jest sprinter z paką

    Ha ha. No to sobie popisałem. Ale nic - będzie dla potomnych :)
  • #11 13629219
    emeryt2
    Poziom 42  
    Gdzie odciąłeś ten przewód , przy lampie , czy przy skrzynce bezpieczników?
    Jeżeli to pierwsze , masz przywarcie nie wiadomo gdzie.
    Pytałem o radio , bo trafia się często nieprawidłowe podłączenia jego zasilania ( minus) pod przewód PLUS podświetlania zegarów i wtedy bije ten bezpiecznik.
    Tomekk95 - ile tematów na tę usterkę, masz założonych na forum?

    Garri , jakich potomnych , dla współczesnych.
  • REKLAMA
  • #12 13629657
    tomekk95
    Poziom 9  
    2 temachy bo przez przypadek. pisze chyba że przewód który idzie na tylną lampe jak bym odcią przy bezpiecznikach to tak jak by niebyło tego obwodu myśl co piszesz. Przewód wyciołem dokładnie na wysokiści skrzyni więc usterka znajduje się od tego moment do tyłu samochodu. Teraz bezpiecznika nie pali i kokpit się świeci.
    emeryt2 odcinać przy skrzynce bezpieczników na to bym nie wpadł hehe
  • #13 13630070
    emeryt2
    Poziom 42  
    Masz racje , no to nie wpadłeś , boś dobrze "odcioł".
REKLAMA