logo elektroda
logo elektroda
X
logo elektroda
REKLAMA
REKLAMA
Adblock/uBlockOrigin/AdGuard mogą powodować znikanie niektórych postów z powodu nowej reguły.

Alpine CDA-9853r - możliwość podłączenia innego urządzenia niż ipone.

Kefrzycki 24 Lis 2015 06:57 4230 11
REKLAMA
  • #1 15179705
    Kefrzycki
    Poziom 12  
    Witam.
    Posiadam alpine cda 9853r który ma wejście z tyłu na ipoda. Tutaj moje pytanie czy tylko i wyłącznie to urządzenie mogę podłączyć ? A może jest jakiś fajny kabalek którym podłączę swoją Lumie :-) ?? Lub pamięć USB.
  • REKLAMA
  • #2 15179774
    powalla
    Moderator CarAudio
    Kupujesz kabelek Aux i podlaczysz co chcesz.
  • REKLAMA
  • #3 15180664
    Kefrzycki
    Poziom 12  
    Mowa o takim kablu ALPINE KCE-236B KABEL AUX-IN ??
  • REKLAMA
  • #4 15180707
    powalla
    Moderator CarAudio
    Potrzebujesz KCA-235B Ai-NET .
  • #5 15180733
    Kefrzycki
    Poziom 12  
    Alpine CDA-9853r - możliwość podłączenia innego urządzenia niż ipone.
    Czyli mowa o tym wejściu po lewej stronie na dole. A do czego jest gniazdo na tym kablu z lewej strony ? Nie właśnie do ipoda ??
  • REKLAMA
  • #6 15180771
    kowara
    Poziom 17  
    Proponuję zajrzeć do instrukcji
    Alpine CDA-9853r - możliwość podłączenia innego urządzenia niż ipone. Alpine CDA-9853r - możliwość podłączenia innego urządzenia niż ipone.
  • #7 15183824
    Kefrzycki
    Poziom 12  
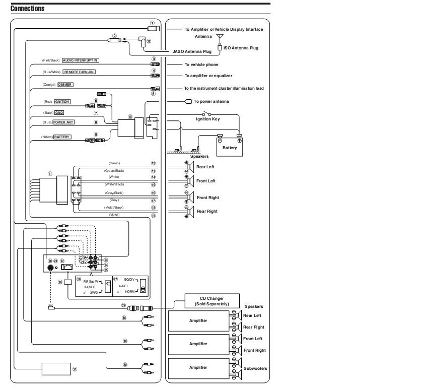
    Więc jeśli chodzi o schemat to gniazdo nr. 29 jest do zmieniarki CD. I tutaj nie wiem czy jest to gniazdo 20 lub też 1 albo 31 ??
  • #8 15184238
    kowara
    Poziom 17  
    Lewy górny róg to 1; 20 to gniazdo Ai-net, natomiast 29 to adapter do zmieniarki który podłączasz do gniazda 20, 31 tylko w modelu cda9855 Alpine CDA-9853r - możliwość podłączenia innego urządzenia niż ipone.
  • #9 15184267
    Kefrzycki
    Poziom 12  
    Ok wyjaśnione :-) pytanie końcowe czy da się podłączyć np: Mój telefon wyjściem słuchawkowym przez kabel do tego radia ? Jeśli tak to do którego i jakim konkretnie kablem. Bo zakręciłem się już ;-)
  • #10 15184325
    kowara
    Poziom 17  
    Wydaje się że tak za pomocą adaptera "Alpine CDA-9853 CDA9853 AI-Net to 3.5mm Headphone Jack Cable" podłączonego do gniazda Ai-net. Niestety nie sprawdzałem tego osobiście więc nie dam gwarancji działania. Może to być oczywiście wymieniony wcześniej KCA -235B Ai-net
  • #11 15184419
    powalla
    Moderator CarAudio
    powalla napisał:
    Potrzebujesz KCA-235B Ai-NET .


    Ja ten kabelek z tym radiem sprawdzalem ...ba nawet gdzies sie po garazu taki wala ;)
  • #12 15184642
    Kefrzycki
    Poziom 12  
    Aha czyli na tym kablu powinno zadziałać :-)
REKLAMA