[youtube]https://www.youtube.com/watch?v=M6fJI3LZN3g
[/youtube]
[/youtube]
[youtube]https://www.youtube.com/watch?v=__kscCxjRZo
[/youtube]
[/youtube]
Materiały
Do wykonania tej frezarki użyto:
- 1x sklejka liściasta o grubości 18mm, wymiary: 2.4m x 0,61m (€32)
- 2x rura stalowa, średnica: 18x1.5mm, długość: 900mm (€5.50)
- 2x rura stalowa, średnica: 18x1.5mm, długość: 528mm (€3.75)
- 2x pręt stalowy, średnica: 12mm, długość: 188mm (€1.35)
- 4x łożysko liniowe 12mm (€1.50)
- 8x łożysko liniowe 18mm (€3.50)
- 2x gwintowany pręt M8, długość: 1m (€4.70)
- 2x 5mm nakrętka M8 (€2)
- 1x 5mm nakrętka M5 (€2)
- 2x silnik krokowy NEMA17 (Wantai 42BYGHW811), 1.8 stopnia / krok (€30)
- 1x silnik krokowy NEMA17 (Wantai 42BYGHW208) 1.8 stopnia / krok (€12)
- 3x sterownik silnika krokowego TB6560 (€16.50)
- 1x zasilacz 120W (12V,10A) (€10)
- 3x kabel 4 żyłowy, długość: 1m (€6)
- 1x klon Arduino Uno (€2.50)
- kilka łożysk kulowych 608 (€4)
- kilka nakrętek M8 i M9 oraz kilka śrub
Całość: około 140€
Uwaga: Należy zauważyć, że nie doliczono kwoty poniesionej za zakup frezarki Dremel 8200.
Projekt
Podczas projektowania tej konstrukcji, oparto się na projekcie podobnej frezarki znalezionej w internecie. Jednakże z powodu braku dokładnych wymiarów, zdecydowano się na całkowicie własny design wykonany w programie Autodesk Fusion 360. Podczas projektowania założono, iż frezarka powinna poruszać się w następującej przestrzeni: ±70cm w osi Y, ±40cm w osi X, oraz ±10cm w osi Z.
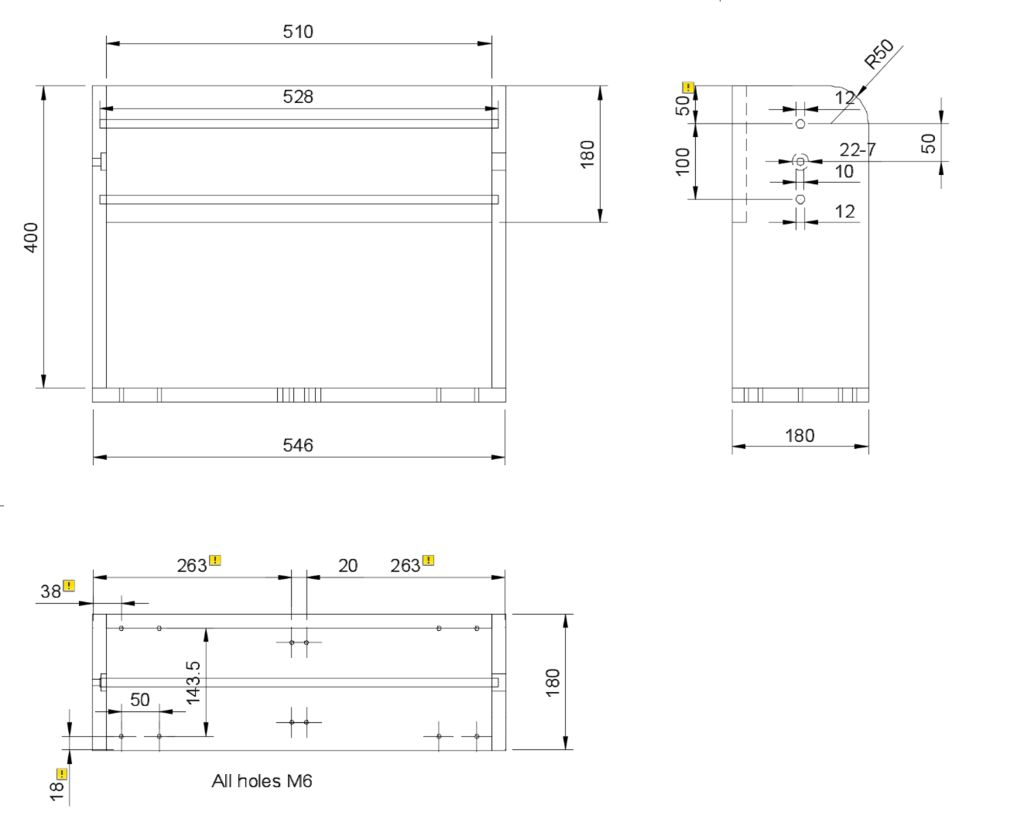
Budowa osi Y
Wykonanie mechanizmu dla osi Y należy do najprostszych czynności podczas budowy frezarki. Poniżej przedstawiono dokładny rysunek techniczny wraz z uwagami dotyczącymi szczegółów konstrukcji.
Wszystkie wymiary podane na rysunku technicznym są w milimetrach
Uwaga:
- Oznaczenie 22-7 mówi o tym, że należy wywiercić otwór o średnicy 22mm na głębokość 7mm.
- Panele A-A oraz C-C są identyczne.
- Panele B-B oraz D-D są prawie identyczne: w panelu B-B należy wywiercić 1 otwór o średnicy 22mm (w celu umieszczenia nakrętki pomiędzy silnikiem krokowym a gwintowanym prętem), w panelu D-D otwór nie jest potrzebny.
- Otwory 18mm w panelach B-B oraz D-D są wykonane na głębokość 9mm.
Uwaga 2:
Przed skręceniem elementów o wymiarach 80mm i 70mm, należy zamontować silnik krokowy (NEMA17 42BYGHW811) do panelu B-B. Potem trzeba przymocować gwintowany pręt (przycięty na 750mm), wraz z nakrętką na silnik krokowy. Następnie należy skręcić części o wymiarach 80mm i 70mm, jednakże bez przymocowania ich do głównej płyty.
Budowa osi X
Oś X wymaga części, które zostały wydrukowane za pomocą drukarki 3D. Są one dostępne tym linkiem. Jak już wcześniej wspomniano, elementy te da się wykonać z drewna, jednak taka czynność wymaga dużej precyzji. Przystępując do wykonania mechanizmu, należy przyciąć sklejkę zgodnie z poniższym rysunkiem. Nie należy skręcić wszystkich elementów ze sobą przed wykonaniem mechanizmu dla osi Z.
Uwaga: W panelu po lewej stronie, otwór o średnicy 22mm jest głęboki tylko na 7mm (łożysko), a otwór o średnicy 10mm przechodzi na wylot. W panelu po prawej stronie, otwór 22mm przechodzi na wylot.
Budowa osi Z
Jest to najtrudniejszy element do wykonania. Otwory powinny być bardzo precyzyjnie wywiercone. W przeciwnym wypadku pręty gwintowane nie będą idealnie pasować do otworów w osi X, co przełoży się na znaczny wzrost tarcia. Autor radzi użyć precyzyjnej piły do drewna, oraz stojaka wiertniczego. Widoczne na poniższych zdjęciach części w kolorze czarnym zostały wykonane za pomocą drukarki 3D. Są one dostępne pod linkiem podanym wcześniej. Elementy w kolorze białym to łożyska.
Składanie frezarki
Budowa powinna się zacząć od montażu elementów osi Z na ramie od osi X. Następnie należy połączyć całość z dolną częścią osi X, a później połączyć także oś Y. Trzeba również pamiętać o wszystkich pozostałych nakrętkach.
Po złożeniu konstrukcji zaleca się sprawdzenie poprawności wykonania poprzez pokręcenie prętami każdej osi. W przypadku, gdy pręty nie chcą się poruszać z łatwością, należy ponownie złożyć wszystkie elementy.
Sterowniki silnika + okablowanie
Sposób podłączenia silników krokowych do sterownika został podany na zdjęciu poniżej. Należy zwrócić uwagę, iż masa po lewej stronie sterownika należy do Arduino (nie do zasilacza 12V). Stan przełączników widocznych na zdjęciu sprawia, że wielkość kroku wynosi 1/8 normalnego kroku, takie ustawienie sprawia, że kroki są bardziej płynne i precyzyjne.
Faza A i B silnika może być łatwo znaleziona przy pomocy zwykłego multimetru. Rezystancja pomiędzy A+ i A- powinna być bardzo mała, to samo tyczy się fazy B. Polaryzacja faz nie ma znaczenia, gdyż kierunek obrotu może być skorygowany w programie.
Okablowanie arduino wygląda tak jak na rysunku podanym poniżej.
Programowanie Arduino
Do sterowania frezarki posłużono się gotowym programem pobranym z internetu. Poniższe czynności opisują sposób wgrania odpowiedniego programu na platformę arduino:
1. Pobrać i wypakować paczkę z serwisu github dostępną pod tym linkiem.
2. Włączyć Arduino IDE, a następnie dodać bibliotekę o nazwie ‘grbl’.
3. Zrestartować klienta Arduino i przy pomyślnym dodaniu biblioteki, odszukać program o nazwie ‘grblUpload’ (dostępny w dziale przykładowych kodów Arduino)
4. Otworzyć program o nazwie ‘grblUpload’ i wgrać go do urządzenia.
5. Włączyć monitor portu szeregowego (Serial Monitor) i ustawić prędkość transmisji na 115200. Po tych czynnościach powinna pojawić się wiadomość: 'Grbl 0.9j ['$' for help]')
6. W monitorze portu wprowadzić znak $, a następnie nacisnąć przycisk „wróć”.
7. Wprowadzić znak $$ do monitora portu i ponownie wcisnąć „wróć”.
Po dwukrotnym umieszczeniu znaku dolara w monitorze portu, powinna pojawić się informacja o bieżących ustawieniach programu. W nim możliwa jest korekta kierunku obrotu silników, jeśli ich polaryzacja została zmieniona.
Pierwszy program
Po pomyślnym wykonaniu wszystkich czynności, przyszedł czas na pierwsze uruchomienie frezarki, aby tego dokonać, należy:
1. Pobrać program do wysyłania G-Code o nazwie: G-Code Sender. Dostępny jest pod tym linkiem (wymagana java).
2. Podłączyć Arduino i ustawić prędkość transmisji na 115200.
3. Zasilić frezarkę i w programie G-Code Sender przejść do zakładki „Machine Control” (na tym etapie sterowanie silnikami powinno być możliwe z poziomu programu).
4. Zamontować pisak na mechanizm osi Z, (tak jak na załączonym obrazku) i zapisać poniższy tekst w notatniku z nazwą „circle.gcode”.
G17 G20 G90 G94 G54
G0 Z0.25X-0.5 Y0.
Z0.1
G01 Z0. F5.
G02 X0. Y0.5 I0.5 J0. F2.5
X0.5 Y0. I0. J-0.5
X0. Y-0.5 I-0.5 J0.
X-0.5 Y0. I0. J0.5
G01 Z0.1 F5.
G00 X0. Y0. Z0.255. Przejść do zakładki o nazwie „File Mode” i otworzyć plik „circle.gcode”.
6. Zatwierdzić przyciskiem „Send”.
Po wykonaniu powyższych czynności maszyna powinna malować koła o średnicy dokładnie 2 cali (5.08cm).
Kilka faktów wynikających z użytkowania
Po kilku tygodniach użytkowania tej konstrukcji autor stwierdza, że:
1. Jest bardzo zadowolony z wykonanej frezarki.
2. Frezarka potrafi obrabiać sklejkę z prędkością 400mm/min z 6mm frezem na głębokości 2mm.
3. Ta sama prędkość, jednak o głębokości zwiększonej na 4mm, powoduje palenie się sklejki z powodu zbyt dużego tarcia. Dokładność w takim ustawieniu jest akceptowalna, jednak autor nie zaleca takiego ustawienia.
4. Z powodu użycia gwintowanych prętów zamiast śrub trapezowych, istnieją luzy na osi y. To powoduje wykonywanie lekko spłaszczonych okręgów. W przyszłości planuje się zastosowanie śrub trapezowych.
źródło: http://www.instructables.com/id/Homebuilt-DIY-CNC-Router-Arduino-Based-GRBL/?ALLSTEPS
Fajne? Ranking DIY
