Witajcie,
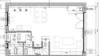
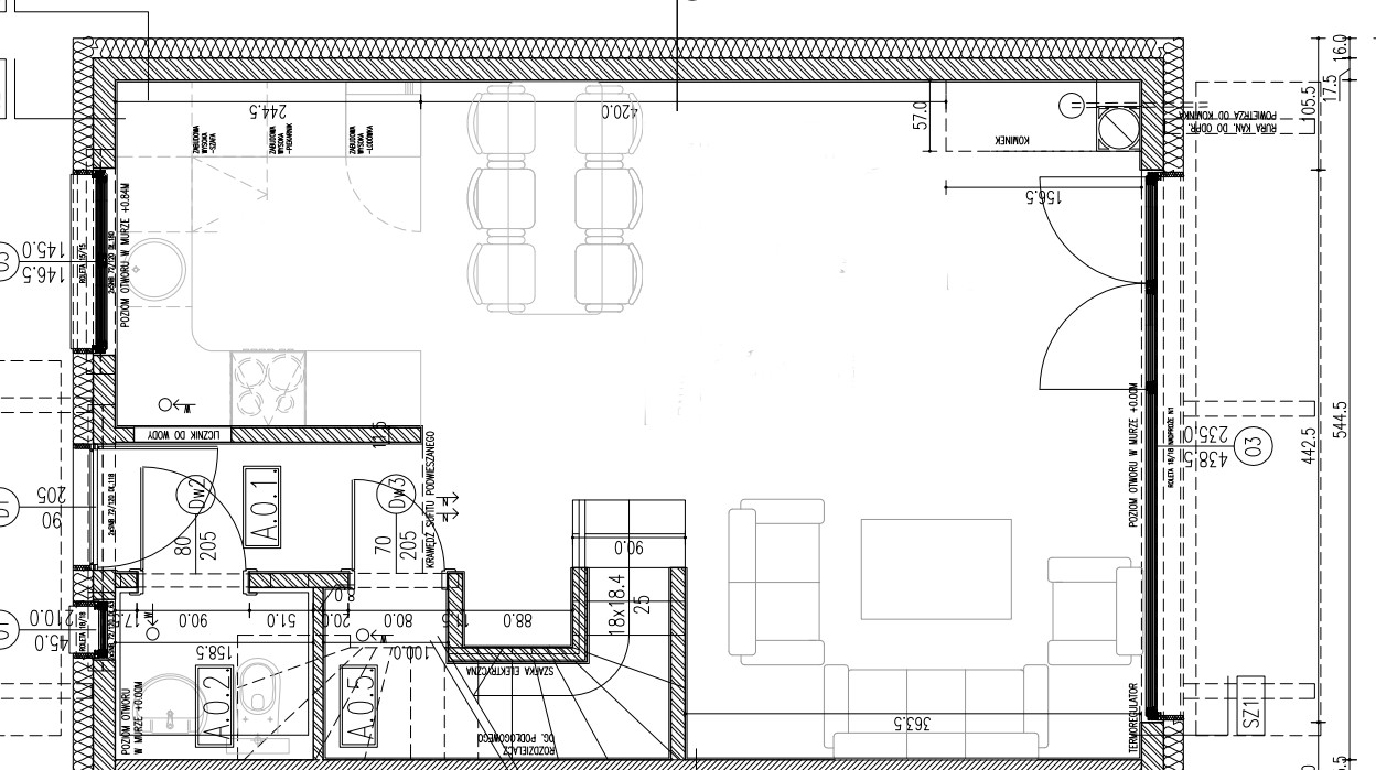
Przymierzam się do wykończenia salonu z aneksem kuchennym. Chciałbym jeszcze przed tynkowaniem wyciągnąć gniazda do zestawu głośnikowego. Na razie nie wiem, jaki to będzie projektor i jakie kino (zakup pewnie dopiero pod koniec roku, albo później), ale chciałbym mieć już gotową instalacje. Ekran do projektora musi być obok kominka w tej chwili będzie tam wisiał telewizor 50 cali, ekran chciałbym rozwijać z sufitu przed nim. Czy możecie mi pomóc z lokalizacją gniazd głośnikowych (gdzie i na jakiej wysokości), oraz w jakiej odległości zrobić gniazda w suficie do projektora (zasilanie, hdmi i ethernet)? Kominek będzie się kończył na wysokości ok 2m, wysokość pomieszczenia 2,8m, więc nad nim też mogę powiesić głośnik. Zamiast kanapy i fotela prawdopodobnie będzie tam stał narożnik C kształtny
Dzięki za wszystkie porady
Przymierzam się do wykończenia salonu z aneksem kuchennym. Chciałbym jeszcze przed tynkowaniem wyciągnąć gniazda do zestawu głośnikowego. Na razie nie wiem, jaki to będzie projektor i jakie kino (zakup pewnie dopiero pod koniec roku, albo później), ale chciałbym mieć już gotową instalacje. Ekran do projektora musi być obok kominka w tej chwili będzie tam wisiał telewizor 50 cali, ekran chciałbym rozwijać z sufitu przed nim. Czy możecie mi pomóc z lokalizacją gniazd głośnikowych (gdzie i na jakiej wysokości), oraz w jakiej odległości zrobić gniazda w suficie do projektora (zasilanie, hdmi i ethernet)? Kominek będzie się kończył na wysokości ok 2m, wysokość pomieszczenia 2,8m, więc nad nim też mogę powiesić głośnik. Zamiast kanapy i fotela prawdopodobnie będzie tam stał narożnik C kształtny
Dzięki za wszystkie porady