logo elektroda
logo elektroda
X
logo elektroda
REKLAMA
REKLAMA
Adblock/uBlockOrigin/AdGuard mogą powodować znikanie niektórych postów z powodu nowej reguły.

Program do sterownika EASY 719-DC-RC do zraszania ogrodu - szukam pomocy

Black12345 11 Gru 2017 18:51 570 2
REKLAMA
  • #1 16884152
    Black12345
    Poziom 2  
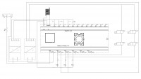
    Witam, czy jest ktos kto mógłby wykonać dla mnie program do sterownika EASY 719-DC-RC do sterowania zraszaniem ogrodu ? jest to projekt, wykonałem model 3d, oraz schemat elektryczny, ale nie umiem zrobić programu. Ktoś pomoże ?
  • REKLAMA
  • #3 16884334
    Black12345
    Poziom 2  
    Wytyczne wysłałem na PW :)
REKLAMA