logo elektroda
logo elektroda
X
logo elektroda
REKLAMA
REKLAMA
Adblock/uBlockOrigin/AdGuard mogą powodować znikanie niektórych postów z powodu nowej reguły.

VW T2(T3) 1986 - Szukam oryginalnego schematu elektrycznego, silnik DJ

mechaty24 15 Lut 2018 11:16 5757 10
REKLAMA
  • #1 17038787
    mechaty24
    Poziom 13  
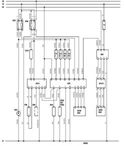
    Witam. Potrzebuję oryginalny schemat elektryczny do VW T2 (T3) 1986 silnik DJ. Jest to digifant. Z góry dziękuję.
  • REKLAMA
  • #3 17038897
    mechaty24
    Poziom 13  
    Dzięki za szybki odzew, ale potrzebuję informacji z których miejsc w skrzynce bezpieczników wychodzą napiecia 15 i 30. Nie mam ich na przekaŹnikach i sterowniku. :|
  • REKLAMA
  • Pomocny post
    #4 17039025
    DriverMSG
    Admin grupy komputery
    mechaty24 napisał:
    napiecia 15 i 30.
    To można miernikiem (kontrolką z żaróweczką) sprawdzić - 30 stały plus, 15 plus po stacyjce. Chyba, że ogólnie jest problem z elektryką i nawet w bezpiecznikach nie masz napięć?
  • REKLAMA
  • #5 17039065
    mechaty24
    Poziom 13  
    Do skrzynki dochodzi napięcie, tylko gdzie powinno wyjść ? Bezpieczniki dobre.
  • #6 17039088
    DriverMSG
    Admin grupy komputery
    Nie bardzo rozumiem z jakim problemem mam do czynienia.
    Wedle schematu nie ma w tym układzie bezpieczników.
    Plus 30 idzie bezpośrednio na przekaźnik K46 (bezpośrednio z akumulatora).
    Plus 15 po stacyjce na przekaźnik K20 i cewkę zapłonową (bezpośrednio ze stacyjki).

    Sprawdzę jeszcze na innych schematach, a Ty opisz dokładniej z jakiego powodu nie możesz sobie poradzić z powyższym.
  • #7 17039094
    abart64
    Poziom 33  
    W komorze silnika nie ma takiej skrzyneczki z przekaźnikami i chyba bezpiecznikiem jednym albo dwoma ?
  • #8 17039104
    andrzej20001
    Poziom 43  
    Jest puszka w komorze silnika tak od strony kabiny po lewej stronie jak wyjmiesz klapę. I po wyjęciu lewej tylnej lampy też coś będzie widać.
  • REKLAMA
  • #9 17039265
    mechaty24
    Poziom 13  
    Po lewej stronie w komorze silnika jest puszka z dwoma przekaznikami. Dochodzi do nich 30 a nie ma 15. Ze stacyjki wychodzi 15 - deska świeci.
    nie ma 15 na cewce ,sterowniku ,module, rozdzielaczu(hal)
  • #11 17039287
    mechaty24
    Poziom 13  
    Dziekuję bardzo wszyskim za pomoc i pozdrawiam. :D :D :D
REKLAMA