Witam wszystkich,
Postanowiłem trochę usprawnić centralny zamek w hondzie. Wiem co chce zrobić ale nie do końca jestem pewny czy dobrze.
Ponieważ nie ma fabrycznego autoryglowania, rygiel jest pod lewym łokciem a pasażer nie może otworzyć ani zamknąć centralnie zamka, to postanowiłem dorobić uniwersalny włącznik.
Chciałbym zamontować coś takiego uniwersalnego jak na zdjęciu.
Lub ewentualnie jakiś inny przełącznik z innego samochodu, ostatnio znalazłem 5 pinowy od Audi, bardzo ładnie by pasował.
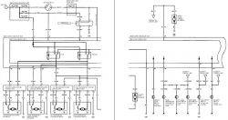
Przejrzałem schematy i chciałbym podłączyć ten przełącznik w drzwi kierowcy, automatycznie centralny zamknie resztę drzwi.
Czy byłby ktoś tak miły i podpowiedział mi jak mam się wpiąć?
Po za tym nie mam pewności co do napięcia? Ja to rozumiem tak że siłownik unoszony jest 12V ale sygnał wyzwalający jest chyba mniejszy. (Np 5V)
Nie wiem jak to sprawdzić bez rozkręcania drzwi. Mam jeszcze inne schematy, mogę podesłać.
Zwracam uwagę że przełącznik jest z podświetleniem i to chyba na 12V więc rozumiem że trzeba będzie doprowadzić różne napięcia.
Dziękuję i pozdrawiam
__________________________________________________________________________________
Witam ponownie, rozkręciłem drzwi, pomierzyłem napięcia, postudiowałem schematy i jestem trochę mądrzejszy.
Postanowiłem się z Wami tym podzielić, może komuś się to przyda.
Okazuje się że centralny zamek wyzwalany jest napięciem 12V, nie ma żadnego dodatkowego napięcia. Do zamka dochodzą dwa przewody, żółto/czarny i żółto/zielony i w zależności od tego czy chcemy zamknąć czy otworzyć drzwi, odpowiednio zmienia się polaryzacja:
PLUS żółto/czarny - ZAMKNIĘCIE
PLUS żółto/zielony - OTWARCIE
Zaprezentowany przełącznik realizuje taką zamianę, poprzez naciśnięcie odpowiednich strzałek, na zaciskach pojawia się napięcie +/- lub -/+
Teraz już tylko wystarczy ładnie go oprawić w drzwiach i podłączyć. Plus bez względu na stacyjkę dochodzi do przełącznika otwierania tylnej szyby lub do wiązki podnoszenia szyb.
Spokojnie można się wpiąć w wiązkę. Byle by dobrze zaizolować. Jeśli nie ma możliwości lutowania to polecam żelowe szybkozłączki.
Podłączenie się do tych przewodów powinno wyzwalać wszystkie 4 zamki. Ja na przykład montuje po stronie kierowcy i pasażera (tak żeby moja kochana żona też mogła sobie poklikać), w obudowie klamki. Zastosowany przełącznik trochę się różni od tego zaprezentowanego powyżej, to ze względu na estetykę. Mimo tego że jest znaczek podnoszenia szyb to jest mniejszy, bardziej gustowny i świeci się na czerwono tak jak reszta podświetlenia. Ale podłączenie jest takie same.
Można poszaleć i zamontować w każdych drzwiach. Dzięki temu każdy pasażer może sterować centralnym zamkiem. W Hondzie przy fabrycznym zamku tylko kierowca może decydować o zamknięciu lub otwarciu wszystkich zamków na raz. Inni pasażerowie odpowiadają tylko za swoje drzwi.
Pozdrawiam
skbart
Postanowiłem trochę usprawnić centralny zamek w hondzie. Wiem co chce zrobić ale nie do końca jestem pewny czy dobrze.
Ponieważ nie ma fabrycznego autoryglowania, rygiel jest pod lewym łokciem a pasażer nie może otworzyć ani zamknąć centralnie zamka, to postanowiłem dorobić uniwersalny włącznik.
Chciałbym zamontować coś takiego uniwersalnego jak na zdjęciu.
Lub ewentualnie jakiś inny przełącznik z innego samochodu, ostatnio znalazłem 5 pinowy od Audi, bardzo ładnie by pasował.
Przejrzałem schematy i chciałbym podłączyć ten przełącznik w drzwi kierowcy, automatycznie centralny zamknie resztę drzwi.
Czy byłby ktoś tak miły i podpowiedział mi jak mam się wpiąć?
Po za tym nie mam pewności co do napięcia? Ja to rozumiem tak że siłownik unoszony jest 12V ale sygnał wyzwalający jest chyba mniejszy. (Np 5V)
Nie wiem jak to sprawdzić bez rozkręcania drzwi. Mam jeszcze inne schematy, mogę podesłać.
Zwracam uwagę że przełącznik jest z podświetleniem i to chyba na 12V więc rozumiem że trzeba będzie doprowadzić różne napięcia.
Dziękuję i pozdrawiam
__________________________________________________________________________________
Witam ponownie, rozkręciłem drzwi, pomierzyłem napięcia, postudiowałem schematy i jestem trochę mądrzejszy.
Postanowiłem się z Wami tym podzielić, może komuś się to przyda.
Okazuje się że centralny zamek wyzwalany jest napięciem 12V, nie ma żadnego dodatkowego napięcia. Do zamka dochodzą dwa przewody, żółto/czarny i żółto/zielony i w zależności od tego czy chcemy zamknąć czy otworzyć drzwi, odpowiednio zmienia się polaryzacja:
PLUS żółto/czarny - ZAMKNIĘCIE
PLUS żółto/zielony - OTWARCIE
Zaprezentowany przełącznik realizuje taką zamianę, poprzez naciśnięcie odpowiednich strzałek, na zaciskach pojawia się napięcie +/- lub -/+
Teraz już tylko wystarczy ładnie go oprawić w drzwiach i podłączyć. Plus bez względu na stacyjkę dochodzi do przełącznika otwierania tylnej szyby lub do wiązki podnoszenia szyb.
Spokojnie można się wpiąć w wiązkę. Byle by dobrze zaizolować. Jeśli nie ma możliwości lutowania to polecam żelowe szybkozłączki.
Podłączenie się do tych przewodów powinno wyzwalać wszystkie 4 zamki. Ja na przykład montuje po stronie kierowcy i pasażera (tak żeby moja kochana żona też mogła sobie poklikać), w obudowie klamki. Zastosowany przełącznik trochę się różni od tego zaprezentowanego powyżej, to ze względu na estetykę. Mimo tego że jest znaczek podnoszenia szyb to jest mniejszy, bardziej gustowny i świeci się na czerwono tak jak reszta podświetlenia. Ale podłączenie jest takie same.
Można poszaleć i zamontować w każdych drzwiach. Dzięki temu każdy pasażer może sterować centralnym zamkiem. W Hondzie przy fabrycznym zamku tylko kierowca może decydować o zamknięciu lub otwarciu wszystkich zamków na raz. Inni pasażerowie odpowiadają tylko za swoje drzwi.
Pozdrawiam
skbart