Witam szanownych forumowiczów, od dłuższego czasu próbuję zdiagnozować problem sterownika ABS w samochodzie. Problem jest natury elektrycznej lub elektronicznej. Kontroler wymieniałem już dwukrotnie, ostatnio na sprawdzony, działający, bez skutku. Problem pozostaje ten sam. Komputer zgłasza błąd przekaźnika (solenoid valve relay).
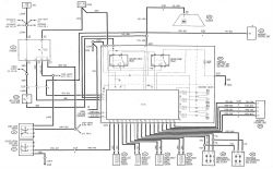
W załączeniu diagram układu oraz pomiary, które wykonałem. Pomóżcie proszę z diagnozą co może powodować objawy, które obserwuję.
- Mierzę masę w miejscu oznaczonym jako "PUMP" na schemacie, tam jest połączenie dodatnie do silnika pompy ABS, myślę że nie powinno być tam masy, dlatego wyniki podzieliłem na dwa warianty, z silnikiem podpiętym (masa) i odpiętym
- Po 10 czy 15 sekundach lewy przekaźnik się rozłącza, zapewne przez sterownik, robiłem również pomiary w tym stanie
- Na pomarańczowo w pomiarach zaznaczone jest co wg mnie jest niewłaściwym wynikiem
- Napięcie na wejściu układu wynosi ok. 11.2V (oznaczone jako "AKU") myślę że spadek do 10.8 wynika z zastosowania diod w układzie
- Nie rozumiem dlaczego napięcie na pinach 87, 30 lewego przekaźnika i 86 prawego przekaźnika (są połaczone) spada do 0,7V kiedy lewy przekaźnik jest załączony (kluczyk włączony, napięcie podawane przez wejście oznaczone jako "KEY")
- Nie rozumiem dlaczego pin 30 prawego przekaźnika dostaje 10,6V po 10-15 sekundach kiedy lewy przekaźnik się rozłącza, powinien mieć napięcie jedynie przy załączeniu obu przekaźników (?)
- Nawet po odłączeniu pompy (i potencjalnie zwarcia do masy), nie rozumiem dlaczego napięcie na pinach 87, 30 lewego przekaźnika i 86 prawego spada do 0,7V, skoro powinno być pobierane bezpośrednio z akumulatora poprzez pin 87
Będę bardzo wdzięczny za Wasze wsparcie.

W załączeniu diagram układu oraz pomiary, które wykonałem. Pomóżcie proszę z diagnozą co może powodować objawy, które obserwuję.
- Mierzę masę w miejscu oznaczonym jako "PUMP" na schemacie, tam jest połączenie dodatnie do silnika pompy ABS, myślę że nie powinno być tam masy, dlatego wyniki podzieliłem na dwa warianty, z silnikiem podpiętym (masa) i odpiętym
- Po 10 czy 15 sekundach lewy przekaźnik się rozłącza, zapewne przez sterownik, robiłem również pomiary w tym stanie
- Na pomarańczowo w pomiarach zaznaczone jest co wg mnie jest niewłaściwym wynikiem
- Napięcie na wejściu układu wynosi ok. 11.2V (oznaczone jako "AKU") myślę że spadek do 10.8 wynika z zastosowania diod w układzie
- Nie rozumiem dlaczego napięcie na pinach 87, 30 lewego przekaźnika i 86 prawego przekaźnika (są połaczone) spada do 0,7V kiedy lewy przekaźnik jest załączony (kluczyk włączony, napięcie podawane przez wejście oznaczone jako "KEY")
- Nie rozumiem dlaczego pin 30 prawego przekaźnika dostaje 10,6V po 10-15 sekundach kiedy lewy przekaźnik się rozłącza, powinien mieć napięcie jedynie przy załączeniu obu przekaźników (?)
- Nawet po odłączeniu pompy (i potencjalnie zwarcia do masy), nie rozumiem dlaczego napięcie na pinach 87, 30 lewego przekaźnika i 86 prawego spada do 0,7V, skoro powinno być pobierane bezpośrednio z akumulatora poprzez pin 87
Będę bardzo wdzięczny za Wasze wsparcie.