#1 18139001 28 Sie 2019 10:07 Qwerty8757281 Qwerty8757281 Poziom 1 #1 18139001 28 Sie 2019 10:07 Witam potrzebuje schemat instalacji elektrycznej silnika 1.9 tdi asv
#2 18139084 28 Sie 2019 11:14 DriverMSG DriverMSG Admin grupy komputery Pozytywne oceny Pomocny post? (+10) #2 18139084 28 Sie 2019 11:14 Promuję tematy: 19.10.2020 Honda K20A4 - Autogas Italia PowerJet+ - utrata mocy i check engine 03.01.2020 Tuleje Poliuretanowe - Jak eksploatować, jak serwisować, czym smarować
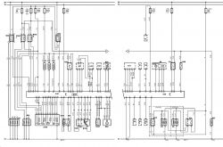
#3 19668277 22 Paź 2021 10:33 Pawelek35a Pawelek35a Poziom 1 Pomocny post? (0) #3 19668277 22 Paź 2021 10:33 Witam, potrzebuje schemat instalacji elektrycznej silnika 1,9 TDI AFN
#4 19668464 22 Paź 2021 12:52 carrot carrot Moderator Samochody Pomocny post? (0) #4 19668464 22 Paź 2021 12:52 Proszę bardzo Załączniki: afn_may_98.pdf Download (209.85 KB)