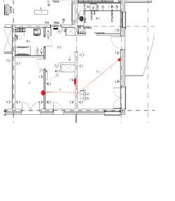
Witam. Zostałem poproszony o przeniesienie punktu RJ45/RTV z istniejącego miejsca do jeszcze trzech innych miejsc. Oto zdjęcie
Cała rozdzielnia jest nad drzwiami mieszkania i stamtąd idzie kabel do gniazdka RJ45/RTV. Ja muszę dołożyć jeszcze trzy takie gniazdka i moje pytanie jest takie, czy w tej istniejącej puszce mogę dać jakiś rozgałęźnik sygnału z czterema wyjściami i z każdego wyjścia zasilić inne gniazdo? Nowe gniazda są oznaczone na czerwono. Do nowego gniazda w salonie chciałbym puścić kabel w podłodze, a do dwóch innych przejść kablem przez ścianę i też w podłodze. Czy to dobry pomysł? I jeśli mój pomysł z tym rozgałężnikiem jest dobry to napiszcie jakie rozgałęźniki polecacie.
Cała rozdzielnia jest nad drzwiami mieszkania i stamtąd idzie kabel do gniazdka RJ45/RTV. Ja muszę dołożyć jeszcze trzy takie gniazdka i moje pytanie jest takie, czy w tej istniejącej puszce mogę dać jakiś rozgałęźnik sygnału z czterema wyjściami i z każdego wyjścia zasilić inne gniazdo? Nowe gniazda są oznaczone na czerwono. Do nowego gniazda w salonie chciałbym puścić kabel w podłodze, a do dwóch innych przejść kablem przez ścianę i też w podłodze. Czy to dobry pomysł? I jeśli mój pomysł z tym rozgałężnikiem jest dobry to napiszcie jakie rozgałęźniki polecacie.
