logo elektroda
logo elektroda
X
logo elektroda
REKLAMA
REKLAMA
Adblock/uBlockOrigin/AdGuard mogą powodować znikanie niektórych postów z powodu nowej reguły.

Hyundai Sonata Nf 3.3 V6 2006 - nie działa prędkościomierz i drogomierz

damian719836 28 Lut 2020 15:23 1290 6
REKLAMA
  • #1 18499370
    damian719836
    Poziom 6  
    Witam. Dzisiaj podczas jazdy po przejechaniu przez torowisko przestał działać prędkościomierz i licznik kilometrów. Poza tym wszystko działa. Podłączyłem moduł odb2 i prędkość jest wskazywana co wskazuje że to nie czujnik prędkości. Wskazówka licznika po włączeniu zapłonu delikatnie się porusza i układa na 0 tak jak powinno być tylko nie wskazuje prędkości.
    Zauważyłem też że wskaźnik poziomu paliwa jest mało stabilny.
  • REKLAMA
  • #2 18499916
    kamyczek
    Poziom 38  
    Można spodziewać się usterki elektrycznej . Nic nie swieci się na zegarach . Zacznij od diagnostyki bo przyczyna może być niesprawny /ABS lub któryś z czujników albo impulsator w skrzyni jeśli taki auto posida . Sygnał prędkości pochodzi albo z ABS albo z impulsatora w skrzyni .
  • REKLAMA
  • #3 18500601
    damian719836
    Poziom 6  
    No właśnie nie mogę znaleźć informacji skąd jest sygnał prędkości. Gdyby był z abs to czy nie pojawiłby się błąd abs? I jak wytłumaczyć że sygnał prędkości jest przekazywany do komputera?
  • REKLAMA
  • #4 18500730
    g107r
    Poziom 41  
    Może dlatego, że sygnał z czujnika rozdziela się na różne urządzenia?

    Hyundai Sonata Nf 3.3 V6 2006 - nie działa prędkościomierz i drogomierz

    Hyundai Sonata Nf 3.3 V6 2006 - nie działa prędkościomierz i drogomierz

    Chociaż nie wiem, czy to Twój model.
  • #5 18507736
    damian719836
    Poziom 6  
    Problem nie tkwi w samym liczniku. Jakieś pomysły?
  • REKLAMA
  • #6 18508420
    g107r
    Poziom 41  
    Sugerowałem sprawdzić ciągłość przewodu z czujnika do licznika, później sobie wymieniaj licznik :|
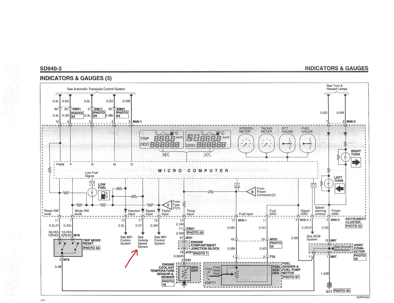
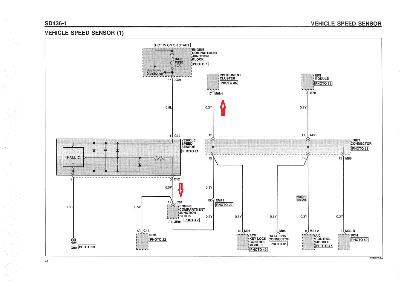
    Widzisz strzałkę w dół na pierwszym schemacie?
    To wyjście z czujnika.
    Widzisz strzałkę do góry?
    To wejście do licznika.
    Wyjście z wejściem się "widzą", mają połączenie? Według schematu, pomiędzy nimi masz dwa złącza, kostki.
  • #7 18540754
    damian719836
    Poziom 6  
    Przyczyną okazał się niesprawny czujnik jak na zdjęciu. W skrzyni są jescze dwa inne czujniki prędkości ale one odpowiadają za pracę skrzyni automatycznej. Nowy czujnik zamówiłem u chińskich przyjaciół. O dziwo.okazało się że czujnik to nie wszystko bo jescze nie dochodzilo.zasilanie do niego. Sprawdziłem wszystkie bezpieczniki i są ok wobec czego podpiąłem się pod zasilanie przepływomierza 12V i działa. Ma ktoś schemat jak wędrują przewody zasilania tego czujnika?
REKLAMA