logo elektroda
logo elektroda
X
logo elektroda
Adblock/uBlockOrigin/AdGuard mogą powodować znikanie niektórych postów z powodu nowej reguły.

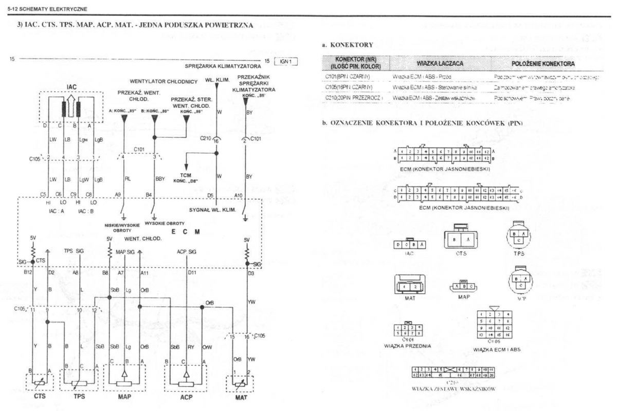
Lanos - znaczenie oznaczeń 'bat - I ign2' na schemacie elektrycznym klimatyzacji

wojtek 531 15 Lis 2020 00:45 2391 24
  • #1 19044439
    wojtek 531
    Poziom 8  
    Lanos - znaczenie oznaczeń 'bat - I ign2' na schemacie elektrycznym klimatyzacji

    Witam potrzebuje pomocy . Co oznacza na schemacie bat - I ign2?
  • #3 19044533
    Ireneo
    Poziom 42  
    Bat to bateria czyli stały plus a ign to napięcie po przekręceniu kluczyka.
  • #4 19044664
    wojtek 531
    Poziom 8  
    Koło bat I ign2 jest 15A I 30 co to znaczy?

    Dodano po 4 [minuty]:

    A ten kabel co jest najbardziej wysuniętym po prawej stronie idzie do baterii Ale przed tym kabel ma takie Widelki dwóch stron I są koło nich cyferki w środku tych widełek I z boku co to oznacza
  • #5 19045269
    milejow
    Poziom 43  
    wojtek 531 napisał:
    I są koło nich cyferki w środku tych widełek I z boku co to oznacza

    Bezpiecznik
  • #6 19045640
    wojtek 531
    Poziom 8  
    Ok . Będę robił tą wiązke elektryczną bo dołożyłem do lanosa klimę. Jakie kable mam do tego kupić żeby nie były za grube I nie za cienkie ?

    Dodano po 6 [godziny] 7 [minuty]:

    Czujnik ACP który ma być podłączony do ECM skąd mam wiedzieć do którego pinu podpiąć ?
  • #7 19047025
    tzok
    Moderator Samochody
    wojtek 531 napisał:
    Koło bat I ign2 jest 15A I 30 co to znaczy?
    Zwyczajowe oznaczenia obwodów w samochodzie: 15 - zasilanie po stacyjce, 30 - zasilanie stałe, 31 - masa. Masz też podane numery bezpieczników, w skrzynce bezpieczników, pod które powinieneś się podpiąć.

    wojtek 531 napisał:
    Czujnik ACP który ma być podłączony do ECM skąd mam wiedzieć do którego pinu podpiąć ?
    Przecież masz to napisane na schemacie, nawet z rozrysowanymi dwoma wersjami złącz ECM.

    wojtek 531 napisał:
    Będę robił tą wiązke elektryczną
    Czarno to widzę, patrząc na pytania, jakie zadajesz...
  • #9 19089096
    wojtek 531
    Poziom 8  
    Ok mam Jeszce jedno pytanie . Na schemacie kable z czujnika ACP mają trafić do ECM . I dajmy na to że przewód A mam podłączyć do D15 A pod spodem jest A 11 więc w końcu do którego pinu mam podpiac ?
  • #10 19089156
    tzok
    Moderator Samochody
    Zależnie od tego, jaką wersję ECU masz, z boku masz rozpisane, a pewnie gdzieś w tekście (którego tu nie wklejono) było to dokładniej wyjaśnione (możesz mieć w ECU złącza 24+32 pin, lub 32+32 pin).
  • #11 19089199
    wojtek 531
    Poziom 8  
    Na schemacie nic nie ma . Mam lanosa 1.5 16v
  • #12 19089879
    g107r
    Poziom 41  
    Czerwona wtyczka C15, jasnoniebieska D11.
    tzok napisał:
    a pewnie gdzieś w tekście (którego tu nie wklejono)
    Na górze jest, a tekstu, to tam nie ma.
  • #13 19089944
    wojtek 531
    Poziom 8  
    Ale chodzi do których pinow mam podpiąć te 3 kable od ACP ? Na przykład przewód A ma iść do pinu D10 Czy A 11? I Jeszce jedno pytanie bo chce kupić parę tych pinow jak one się nazywają fachowo ?
  • #14 19089988
    g107r
    Poziom 41  
    Odpowiedz na pytanie pitersika, bo to zależy od modelu sterownika silnika.
    Ja się nie znam, także pytam o wtyczki :)
    Skąd masz schemat? W jednym temacie proponował to o co pytasz, nie olewaj go.

    Dodano po 19 [minuty]:

    Wy 8-) przypadkiem, nie macie do siebie 3 rzuty beretem :?:
  • #15 19106275
    wojtek 531
    Poziom 8  
    Lanos - znaczenie oznaczeń 'bat - I ign2' na schemacie elektrycznym klimatyzacji take mam kostki do kompa jedna ma więcej pin A druga mniej
  • #16 19106396
    g107r
    Poziom 41  
    http://daewooforum.pl/temat73509-15.html[quote:669b18245c="g107r"> target="_blank" rel="nofollow noopener ugc" class="postlink inline" title="" >http://daewooforum.pl/temat73509-15.html[quote:669b18245c="g107r napisał:
    jasnoniebieska D11
    Przy wychodzących przewodach z wtyczki winien być numerek.
    Wiązkę jak masz na stole, należałoby przelutować, jeśli i tam są blaszki.
    S303 być może usunąć, łącząc właściwe przewody razem, zależy to od stanu złącza, żeby nie było tak jak pod fotelem obok http://daewooforum.pl/temat7719.html bo czasem podobnie wygląda.
  • #17 19106406
    wojtek 531
    Poziom 8  
    Na jednej kostce pisze PED A an drugiej PED B
  • #18 19106412
    g107r
    Poziom 41  
    Nie, malutkie cyfry zaraz obok wychodzącego przewodu z wtyczki, przynajmniej je miałem w koreańskiej nubirze.
    Polski wypust to szczerze pisząc, nie wiem.
  • #19 19106437
    wojtek 531
    Poziom 8  
    No wiem że Są te cyferki Ale co nie mi dają jak na schemacie Są zaznaczone 2 piny

    Dodano po 52 [sekundy]:

    Nwm które pin wybrać czy ten w nawiasie czy bez na schemacie
  • #20 19106445
    g107r
    Poziom 41  
    Lanos - znaczenie oznaczeń 'bat - I ign2' na schemacie elektrycznym klimatyzacji

    Dodano po 4 [minuty]:

    Dział "Kompendium wiedzy", przestudiuj DOKŁADNIE posty Mawerix'a, bo widzę, że masz problem z poruszaniem się na forum PFD.
  • #21 19106665
    wojtek 531
    Poziom 8  
    Ok gdzie jest kostka 106 bo się nie doczytam
  • #22 19106776
    g107r
    Poziom 41  
    wojtek 531 napisał:
    Ok gdzie jest kostka 106 bo się nie doczytam
    :?:
    Masz rację, nie doczytasz, bo nie masz, i chyba nie było nikogo kto je miał, więc nie było sensu o niej pisać.
    Chyba, że masz automatyczną skrzynię biegów.

    http://daewooforum.pl/search.html wpisujesz "C105" i klikasz szukaj, bo jego zapewne szukasz.
    Albo
    g107r napisał:
    Dział "Kompendium wiedzy", przestudiuj DOKŁADNIE posty Mawerix'a, bo widzę, że masz problem z poruszaniem się na forum PFD.

    lub książka "Sam naprawiam Daewoo Lanos".

    Dodano po 7 [minuty]:

    Radzę ściągnąć sobie plik dany przez Mawerix'a, bo moje coraz bardziej tracą na jakości. Mawerix jest na zielono, łatwo znaleźć. Razem z Zielonym zresztą... obaj są zieloni :D
  • #23 19116410
    wojtek 531
    Poziom 8  
    Ok mam pytanie na schemacie jest Dioda D9 jaka to jest Diodą? Możecie mi powiedzieć jaka mam kupić?
  • #24 19117144
    g107r
    Poziom 41  
    Zapewne taką samą, jak ta w skrzynce w kabinie, czyli pewnie jakąś prostowniczą z pół ampera na 50V. 1A?
  • #25 19264086
    wojtek 531
    Poziom 8  
    Klimatyzacja już prawie gotowa chce się tylko upewnić czy dobrze podłączyłem czujnik ACP. Do komputera podłączyłem kable już. Na schemacie jest narysowane czujnik acp jak to podlaczyc . Moje pytanie brzmi mam te kable podłączyć tak jak bym patrzył na kostke czy tak jak bym patrzył na czujnik?

Podsumowanie tematu

W dyskusji poruszono znaczenie oznaczeń 'bat' i 'ign2' na schemacie elektrycznym klimatyzacji w samochodzie Daewoo Lanos. Użytkownicy wyjaśnili, że 'bat' odnosi się do stałego zasilania z baterii, a 'ign' do zasilania po przekręceniu kluczyka. Pojawiły się pytania dotyczące bezpieczników (15A i 30A) oraz podłączenia czujnika ACP do ECM. Uczestnicy dyskusji wskazali na konieczność przelutowania wiązki oraz podania odpowiednich pinów do podłączenia. Wskazano również na różnice w wersjach ECU oraz potrzebę dokładnego przestudiowania schematów. Użytkownicy wymieniali się linkami do schematów oraz informacjami o diodach i wtyczkach.
Podsumowanie wygenerowane przez model językowy.
REKLAMA