logo elektroda
logo elektroda
X
logo elektroda
REKLAMA
REKLAMA
Adblock/uBlockOrigin/AdGuard mogą powodować znikanie niektórych postów z powodu nowej reguły.

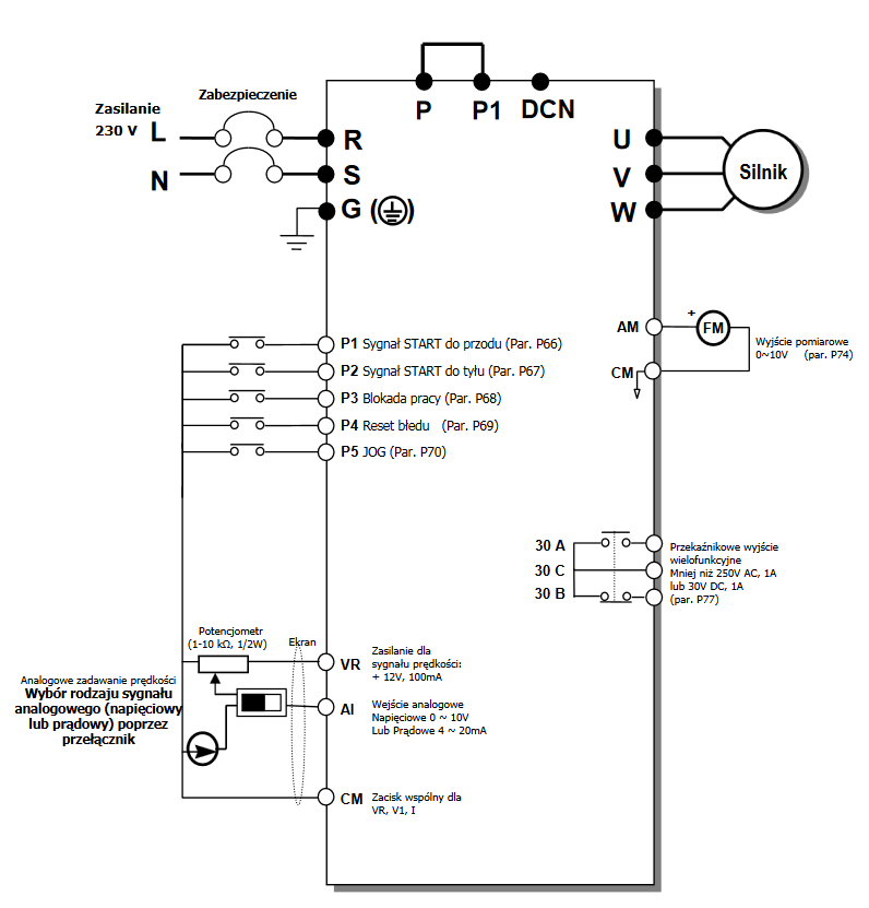
Podłączenie falowników LG ig5a z potencjometrem do maszyny zwijającej wstęgę

invector 18 Mar 2021 19:55 1089 8
REKLAMA
  • #1 19326982
    invector
    Poziom 18  
    Urządzenie do transportu i zwijania wstęgi. Trzy niezależne wałki napędzane motoreduktorami
    Wszystkie zasilane falownikami LG ig5a.
    Założenie jest takie...
    Prędkość zadawana jednym potencjometrem cyfrowym ma zwiększać/zmiejszać
    całość maszyny. Ostatni falownik ma mieć możliwość niewielkiej korekty
    potencjometrem analogowym, powyżej i poniżej głównej prędkości.
    Jak to poprawnie podłączyć?
    Później jeszcze dojdzie synchronizacja poszczególnych falowników, ponieważ
    Średnice poszczególnych wałów są różne, ale to potem. Teraz
    proszę o sugestie z które z góry dziękuję.
  • REKLAMA
  • #2 19327268
    Wyrzucony
    Poziom 8  
    Podłączenie falowników LG ig5a z potencjometrem do maszyny zwijającej wstęgę

    Pierwszy potencjometr reguluje całość pozostałe indywidualnie każdy falownik . W ten sposób możesz zgrać obroty wałów a pierwszym sterować całością. W razie gdy braknie ci regulacji (zakresu) na potencjometrach doregulowywujących, to zmień częstotliwość wyjściową w danym falowniku a potencjometrem tylko doreguluj.
    To taka prosta regulacja , na plc było by dokładniej i profesjonalniej. :)

    Pierwszy potencjometr narysowałem jako analogowy ale może być i cyfrowy nie ma znaczenia
  • REKLAMA
  • #3 19327295
    romulus73
    Poziom 28  
    Kolego falowniki LG mogą pracować w trybie Master-Slawe zadajesz na jednym i po modbusie synchronizujesz drugi a trzeci możesz doregulować do prądu, momentu nie częstotliwości. Lub do sprzężenia zwrotnego wedle tego co masz dostępne.
    Jak ci się nudzi to wystawił bym prąd na wyjście analogowe drugiego i dał go na trzeci do wejścia analogowego na regulację PID jako pętla zamknięta.
  • #4 19327614
    invector
    Poziom 18  
    Dzisiaj dokładnie sprawdziłem falowniki i niestety okazuje się że tylko jeden jest ig5a. Pozostałe dwa to seria ic5. W tym przypadku modbus odpada. Przepraszam za wprowadzenie w błąd.
    I tak...
    Napęd pierwszy - falownik ig5a 3 fazowy
    Napęd Drugi i trzeci - falownik ic5 1 fazowy
  • REKLAMA
  • #5 19328239
    romulus73
    Poziom 28  
    Pozostaje zadawać na 1 i przez wyjście wejście przekazywać odczyt prądu analogowo, a falowniki w pętli zamkniętej tryb wektorowy. Wtedy nic nie regulujesz po wbiciu setpointu na drugim i trzecim działa to automatycznie.
  • REKLAMA
  • #6 19328308
    invector
    Poziom 18  
    Wyjście analogowe czyli w tym wypadku wyjście pomiarowe?
    Podłączenie falowników LG ig5a z potencjometrem do maszyny zwijającej wstęgę
  • #7 19328787
    jotko
    Poziom 23  
    Można w trybie Master-Slawe lub również z wykorzystaniem konwertera rezystancja -> analog.
    Taki konwertor R to 4-20mA gdzie wartość z potencjometru jest przekładana na sygnał analogowy i może zostać wpięta w pętlę dla trzech falowników.
    Przykład konwertera EM-M20 POTENTIOMETER CONVERTER FOR 4...20 mA. Takich konwerterów jest całkiem sporo.
  • #8 19330301
    romulus73
    Poziom 28  
    No ale jaki sens ma zewnętrzne urządzenie skoro każdy falownik to robi?
    Następna sprawa korekta nastaw. Czytaj wyżej "odczyt prądu analogowo, a falowniki w pętli zamkniętej"
    Napiszę bardziej obszernie, w falowniku na wyjściu analogowym w parametrze I50 ustawiasz 1 dzięki temu częstotliwość z falownika jest przekładana na napięcie na wyjściu AO np. X1=0Hz X2=50Hz Y1=0V Y2=10V
    Następnie w falowniku w parametrze H50 1 uruchamiasz PID, w parametrze H54 ustawiasz set pointa ITD. Jeden potencjometr steruje 3 falownikami za pomocą obciążenia.
  • #9 19332281
    invector
    Poziom 18  
    Muszę się przyznać że programowanie falowników nie jest moją mocną stroną. Potrafię poprawnie podłączyć i ustawić parametry w prostych aplikacjach, ale tu nie ukrywam zaczynam się gubić. Najłatwiej dla mnie było by podłączenie według schematu kolegi "wyrzucony" Jednak wolałbym aby to było bardziej profesjonalnie.
    Jeśli możesz opisać to jak dla laika będę bardzo wdzięczny.
    Pamiętając o tym że falownik nr 1 będzie głównym do którego będzie podpięty potencjometr cyfrowy. Falownik nr 2 ma odwzorowywać obroty pierwszego, natomiast falownik nr 3 ma mieć możliwość korekty potencjometrem analogowym powyżej i poniżej obrotów całości.
REKLAMA