Witam
Potrzebuję merytorycznego wytłumaczenia jaki cudem ma to działać schemat z piły Felder K700S
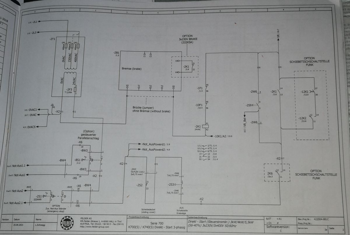
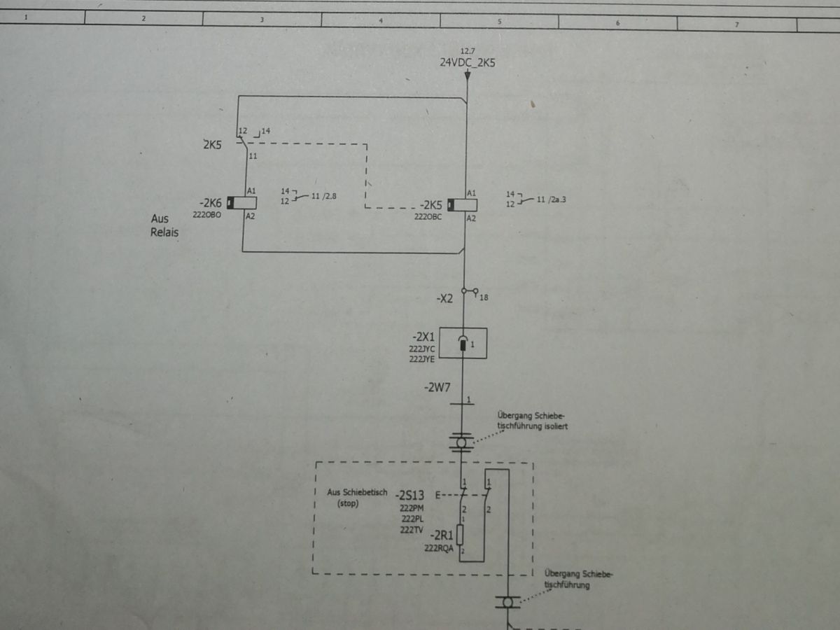
Po sprawdzeniu przekaźnik 2K6 ceweka na 5 V DC, 2K5 jedna nóżka od cewki wygięta, styk NC zgięty, domniemam pomyłkę w instalacji. Pytanie zasadnicze czy takie maszyny są sprawdzane przed podróżą do klienta?
Drugi problem gorszy nie ma funkcjonalności stopu z boku stołu. Start poprzez radiówkę działa. Natomiast stop 2S13 jest w układzie przekaźników 2K6 i 2K5. Miejsca łączenia przed stopem na prowadnicy i stole formatowym mają przejście mimo tego że stop jest rozwarty. Co w tym układzie robi rezystor mocy pomiędzy stykami NC stopu.
Równocześnie zaskakuje mnie podejście firmy która plombuje płytę rewizyjną elektryki i sterowania. Traci się dzięki temu gwarancję
Edit:Poprawiona jakość zdjęć
Potrzebuję merytorycznego wytłumaczenia jaki cudem ma to działać schemat z piły Felder K700S
Po sprawdzeniu przekaźnik 2K6 ceweka na 5 V DC, 2K5 jedna nóżka od cewki wygięta, styk NC zgięty, domniemam pomyłkę w instalacji. Pytanie zasadnicze czy takie maszyny są sprawdzane przed podróżą do klienta?
Drugi problem gorszy nie ma funkcjonalności stopu z boku stołu. Start poprzez radiówkę działa. Natomiast stop 2S13 jest w układzie przekaźników 2K6 i 2K5. Miejsca łączenia przed stopem na prowadnicy i stole formatowym mają przejście mimo tego że stop jest rozwarty. Co w tym układzie robi rezystor mocy pomiędzy stykami NC stopu.
Równocześnie zaskakuje mnie podejście firmy która plombuje płytę rewizyjną elektryki i sterowania. Traci się dzięki temu gwarancję
Edit:Poprawiona jakość zdjęć
