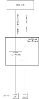
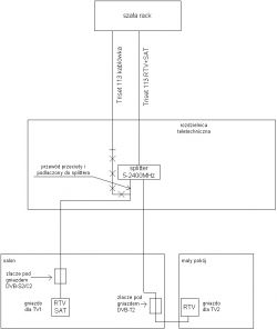
Witam prosił bym o jakąś poradę czy da się mając dwa gniazda abonenckie powiedzmy DVB-T2 i DVB-S2 lub ( DVB-C/C2 ) Nie wiem dokładnie jaki sygnał jest w tym drugim gniazdku. Ale do rzeczy w pomieszczeniu będzie jeden TV a w drugim pokoju drugi TV. Chciał bym aby te dwa sygnały ( i tu nie wiem czy się tak da) połączyć w jedno czyli aby te dwa sygnały puścić jednym kablem antenowym 75 Ohm i rozdzielić na dwa TV.
Są jakieś sposoby na puszczenie tych dwóch sygnałów jednym kablem ?
Liczę się z tym że ewentualny osprzęt do tego nie zmieści się w puszcze i że będę zmuszony go umieścić na zewnątrz.
Są jakieś sposoby na puszczenie tych dwóch sygnałów jednym kablem ?
Liczę się z tym że ewentualny osprzęt do tego nie zmieści się w puszcze i że będę zmuszony go umieścić na zewnątrz.
