Cześć, jakieś pomysły jak ustawić nagłośnienie do takiego rozkładu pomieszczeń?
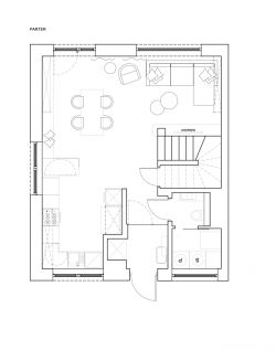
Chciałbym, żeby w całym pomieszczeniu dźwięk rozchodził się w miarę równomiernie, a że jestem na etapie prac z architektem to już teraz mogę zaplanować układ paneli akustycznych czy przygotować koryta pod tynkiem na kable. Problem jest taki, że nie zawsze słuchamy muzyki w tym samym miejscu, więc ustawienie przy TV nie ma sensu, a dodatkowo byłoby na przeciwko okna, co będzie nieprzyjemnie odbijać.
Czy systemy jednogłośnikowe w ogóle mają sens? Wiedząc, że słuchamy muzyki w kilku miejscach stereo też nie gra tak dużej roli.
W jaki sposób montować głośniki, pod sufitem, na półkach/ścianach?
TV będzie miał osobne nagłośnienie czy nawet soundbar od biedy, do oglądania telewizji specjalnie mi nie zależy.
Osobne nagłośnienie z panelami planuję w gabinecie.
Jak chodzi o sam budżet to na same kolumny chciałbym wydać <5k (do tej pory miałem B&W + Marantz + Raspberry z kartą BossAllo - sprzedałem wszystko poza maliną).
Chciałbym, żeby w całym pomieszczeniu dźwięk rozchodził się w miarę równomiernie, a że jestem na etapie prac z architektem to już teraz mogę zaplanować układ paneli akustycznych czy przygotować koryta pod tynkiem na kable. Problem jest taki, że nie zawsze słuchamy muzyki w tym samym miejscu, więc ustawienie przy TV nie ma sensu, a dodatkowo byłoby na przeciwko okna, co będzie nieprzyjemnie odbijać.
Czy systemy jednogłośnikowe w ogóle mają sens? Wiedząc, że słuchamy muzyki w kilku miejscach stereo też nie gra tak dużej roli.
W jaki sposób montować głośniki, pod sufitem, na półkach/ścianach?
TV będzie miał osobne nagłośnienie czy nawet soundbar od biedy, do oglądania telewizji specjalnie mi nie zależy.
Osobne nagłośnienie z panelami planuję w gabinecie.
Jak chodzi o sam budżet to na same kolumny chciałbym wydać <5k (do tej pory miałem B&W + Marantz + Raspberry z kartą BossAllo - sprzedałem wszystko poza maliną).