logo elektroda
logo elektroda
X
logo elektroda
REKLAMA
REKLAMA
Adblock/uBlockOrigin/AdGuard mogą powodować znikanie niektórych postów z powodu nowej reguły.

[Rozwiązano] VW T4 1.9TD 98r: Problem z nagrzewaniem świec żarowych, przekaźniki 137 i 102, szukam schematu

bolekf2 14 Mar 2023 09:11 4266 7
REKLAMA
  • #1 20487133
    bolekf2
    Poziom 15  
    Witam, mam problem z nagrzewaniem świec żarowych w T4.
    Jest tam prosty silnik 1.9TD 68KM.
    Nie działa sterowanie świec żarowych.
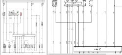
    Znalazłem taki schemat:
    VW T4 1.9TD 98r: Problem z nagrzewaniem świec żarowych, przekaźniki 137 i 102, szukam schematu
    Jednak w aucie są jakby dwa "sterowniki" świec, poniżej zdjęcie skrzynki przekaźników:
    VW T4 1.9TD 98r: Problem z nagrzewaniem świec żarowych, przekaźniki 137 i 102, szukam schematu
    Jest tam przekaźnik 137 i przekaźnik 102. Na schemacie przekaźnik wykonawczy to zwykły przekaźnik, natomiast w aucie jest rozbudowany, przekaźnik 102 wygląda następująco:
    VW T4 1.9TD 98r: Problem z nagrzewaniem świec żarowych, przekaźniki 137 i 102, szukam schematu
    Więc schemat nie do końca jest właściwy. Czy w ogóle w układzie jak w skrzynce, w tym aucie, 137 odpowiada za grzanie świec, czy tylko 102?
    Czy ktoś posiada odpowiedni schemat lub podpowiedziałby od czego są poszczególne nóżki i jak są sterowane, w przekaźniku 102. Wyprowadzenia w "102" to L, T, 50, 85, 86...., 87 i 30 to zapewne już zasilanie i wyjście na świece
    Do którego przekaźnika podłączony jest czujnik temperatury?
  • REKLAMA
  • Pomocny post
    #2 20487663
    decybel91
    Poziom 42  
    137 to właściwie sterownik silnika, może bardziej pompy wtryskowej. To on uruchamia 102 podając masę na 85 lub 86. W 102 sygnał t to temperatura płynu chłodzącego. Dla testu zagnij nóżkę t i przekaźnik świec żarowych powinien awaryjnie uruchamiać świece przez 30 sekund po każdym zapłonie.
  • REKLAMA
  • #3 20488108
    bolekf2
    Poziom 15  
    Spróbuję i dam znać...
  • #4 20488114
    majster129
    Poziom 23  
    bolekf2 napisał:
    Zagiąłem nóżkę T i faktycznie przekaźnik zaczął działać ok. 30s. po każdym zapłonie, dodatkowo ok. 2-3min po odpaleniu silnika, trochę bardziej będzie obciążony ten przekaźnik, ale w sumie mogło by tak pozostać, z tym, że dlaczego z podłączoną nóżką T przekaźnik 102 nie uruchamia się wcale?

    Wymień czujnik temperatury

    Dodano po 1 [godziny] 5 [minuty]:

    bolekf2 napisał:

    VW T4 1.9TD 98r: Problem z nagrzewaniem świec żarowych, przekaźniki 137 i 102, szukam schematu

    Ten przekaźnik sam sobie jest sterownikiem świeć i nie potrzebuje nic więcej
  • REKLAMA
  • Pomocny post
    #5 20488553
    ociz
    VIP Zasłużony dla elektroda
    102 nie powinien tam siedzieć, tylko zwykły przekaźnik w jego miejscu.
  • REKLAMA
  • Pomocny post
    #6 20488628
    BANANvanDYK
    Poziom 42  
    Nie do końca zwykły przekaźnik, bo do świec żarowych stosowany jest przekaźnik o specyficznym pinoucie — dwa szerokie konektory prądowe, jeden zwykły i jeden wąski (dodatkowy).
    Internet podpowiada że to przekaźnik z oznaczeniem 103.
  • Pomocny post
    #7 20488969
    majster129
    Poziom 23  
    BANANvanDYK napisał:
    Nie do końca zwykły przekaźnik, bo do świec żarowych stosowany jest przekaźnik o specyficznym pinoucie — dwa szerokie konektory prądowe, jeden zwykły i jeden wąski (dodatkowy).
    Internet podpowiada że to przekaźnik z oznaczeniem 103.

    Dokładnie taki
    VW T4 1.9TD 98r: Problem z nagrzewaniem świec żarowych, przekaźniki 137 i 102, szukam schematu
  • #8 20493764
    bolekf2
    Poziom 15  
    Zmieniłem przekaźnik i świece działają, dzięki i pozdrawiam.
REKLAMA