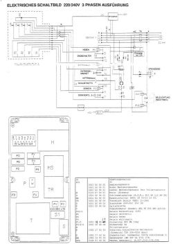
Witam, kupiłem podnośnik dwukolumnowy Stertil Koni KS-2025. Jest to podnośnik elektrohydrauliczny, z automatycznymi blokadami. Minus jest taki, że brakuje mi całej skrzynki sterującej nim. Ma ktoś pomysł jak zbudować najprostsze sterowanie takim podnośnikiem? Wrzucam poglądowe zdjęcie skrzynki sterującej i schemat jaki udało mi się znaleźć w internecie i fotkę tabliczki z silnika. Domyślam się, że w oryginale siedziała tam jakaś płytka z elektroniką, jednak mi zależy na tym, żeby to tylko działało możliwie jak najprościej. Czyli unoszenie, i opuszczanie ze zwolnieniem blokad, ewentualnie włącznik oświetlenia i gniazdka + oczywiście wyłącznik awaryjny i główny wyłącznik zasilania.
Znalazłem schematy innych podobnych podnośników, co myślicie żeby zbudować sterowanie na ich podstawie?

Znalazłem schematy innych podobnych podnośników, co myślicie żeby zbudować sterowanie na ich podstawie?