Witam,
Podjąłem się małej modernizacji w swoim zakładzie. Chciałbym, aby ktoś bardziej doświadczony wypowiedział się na temat moich przemyśleń oraz działań związanych z tym projektem. Chcę zaznaczyć, że jest to mój pierwszy taki projekt. Zdecydowałem się na to wyzwanie, ponieważ uznałem, że będzie to dla mnie rozwojowe doświadczenie. Proszę o wyrozumiałość.
Dziękuję!
Modernizacja będzie dotyczyła układu sterowania windą od paletyzatora. Obecnie winda działa na układzie Dahlandera, który wykorzystuje styczniki do zmiany kierunku obrotów (góra, dół) oraz prędkości (szybki i wolny bieg). Silniki dwubiegowe, z których jeden ma moc 2,4 kW (2700 rpm), a drugi 1,8 kW (2680 rpm), są wyposażone w hamulce elektromagnetyczne. Podane wartości dotyczą pracy na szybkim biegu.
Obecny układ charakteryzuje się "rwaną" pracą, szczególnie podczas przełączania z biegu szybkiego na wolny, co powoduje znaczne szarpnięcia i przyspieszone zużycie elementów układu. Podobne szarpnięcia występują przy zadziałaniu hamulców, co prowadzi do drgań całej konstrukcji.
Aby osiągnąć płynniejszą pracę układu, planujemy modernizację systemu sterowania poprzez zastąpienie obecnego rozwiązania falownikiem. Liczymy, że dzięki temu winda będzie pracowała płynniej.
To był taki wstęp do tego czemu i co będzie modernizowane, teraz spróbuję opisać jak chcę ugryźć temat i jakie mam obawy co do zmian, spróbuję jakoś w punktach opisywać wszystko, aby łatwiej było się odnieść. Proszę o uwagi do moich działań i poprawienie gdy zauważycie jakieś błędy co do modernizacji, myślę, że to dość ciekawa modernizacja, więc może więcej osób będzie chciało się swoimi doświadczeniami podzielić, dobrze jest się uczyć od bardziej doświadczonych osób
Punkt 1: Dobór komponentów pod modernizację
- Na początku plan był taki, żeby dobrać falownik z firmy NORD, decyzja była podyktowana tym, że po modernizacji w 2019r zostały zamontowane falowniki właśnie z tej firmy. Modernizację robiła firma zewnętrzna, była to dość duża modernizacja, przejście ze starego sterownika S5 na układ bardziej cywilizowany czyli w tym przypadku na CPU 1512SP F-1 PN. W układzie falowniki wszystkie są skomunikowane PROFINET--->CAN (będę wstawiał zdjęcia dla lepszego obrazu całości).
Plan był taki żeby dodać falownik SK 550P-551-340-A 5,5kW. Zrobiłem komunikację w programie pod nowy falownik, ale nagle plany się zmieniły.... dostałem z góry informację, że jednak robimy to na falowniku Danfoss, bo takie mamy zamontowane praktycznie na całym zakładzie (oprócz tego paletyzatora), więc magazynowo z częściami zamiennymi będzie nam łatwiej. Plany się zmieniły więc wziąłem się za szukanie odpowiedniego falownika i rezystora hamowania, tym razem zdecydowałem się na troszkę większy falownik bo na 7,5kW, stwierdziłem, że lepiej mieć troszkę zapasu z mocą. Konkretnie padło na FC-302P7K5T5E20H1BGCXXXSXXXXAXBXCXXXXDX 131B0062 7,5kW + Rezystor hamowania MCE101A56R0P680RE54CAW (56 Ohm, 680W).
Punkt 2: Wstępne zaplanowanie podłączenia sterowania.
W oczekiwaniu na komponenty (falownik, rezystor, kabel) zacząłem już planować jak podłączyć układ sterowania. Układ w chwili obecnej wygląda tak:
Tutaj rozrysowałem sobie w Eplanie jak chcę podłączyć układ: (nie ma na nim rezystora hamowania, ale będzie podłączony, muszę dodać)
Czy dobrze przeniosłem układ sterowania pod falownik?
Zastanawiam się nad troszkę innym rozwiązaniem, może dodać moduł PROFINET-owy do falownika i lepiej skomunikować go z resztą? tutaj nie wiem czy sobie poradzę z komunikacją pod zupełnie inny falownik, co o tym sądzicie?
Punkt 3: Programowe sterowanie windą,
Analizowałem program w PLC jak winda jest sterowana, tutaj mam najwięcej uwag co do sensu takiej modernizacji w obecnym stanie. Winda nie ma zamontowanego żadnego enkodera, pozycja jest określana tylko z czujników. Czy w ogóle da się ustawić odpowiednie rampy na czujnikach tak aby praca nie była rwana, bo w głowie nie mogę jakoś sobie tego poukładać, nawet przy ustawieniu rampy i tak sygnał będzie brany z czujnika, więc działanie będzie tak w skrócie 0/1, pozycja ---> zatrzymaj, tak oczywiście uproszczając wszystko, czyli za długa rampa na stop (ryzyko przejechania pozycji), tutaj już w głowie mam obraz ile czasu może zająć dobranie odpowiedniej rampy tak aby zatrzymywał się w odpowiedniej pozycji... enkoder dawałby sygnał wcześniej przed pozycją o zatrzymaniu, więc tutaj rozwiązanie miałoby sens, dodanie enkodera do takiego układu pewnie jest już ponad moje możliwości, więc nie myślę póki co o takim rozwiązaniu. Zamontować falownik i tak zamontuje, stary układ zostawię, aby ewentualnie wrócić do niego jak będą problemy ze sterowaniem na falowniku. Programowo chyba nie ma sensu pokazywać jak to jest zrealizowane, bo ciężko byłoby wam opisać jak nie macie wglądu do programu. Tutaj chciałbym usłyszeć wasze opinie co do sensu montowania falownika, gdy układ działa na samych czujnikach pozycyjnych, czy praca będzie chociaż trochę płynniejsza i czy jest szansa na zniwelowanie tych szarpnięć podczas hamowania? bo jedyna korzyść jaka mi przychodzi do głowy to jest stała prędkość pracy windy, no tutaj rozwiązało by na pewno problem z przejściami między biegami silników.
Punkt 4: Parametryzacja falownika.
Nie mam doświadczenia w parametryzacji falownika pod dwa silniki, zazwyczaj to wymiana polegała na podmianie falownika 1:1 z backup-em, albo ewentualnie zamontowanie innego modelu i ustawianie samych podstawowych ustawień w prostych układach sterowania. Tutaj chciałbym uzyskać jakichś podpowiedzi na co zwrócić szczególną uwagę podczas ustawiania pod oba silniki. Tutaj na pewno jeszcze będę dużo czytał i szukał podpowiedzi w dokumentacji, ale warto zapytać na forum, może ktoś kiedyś już robił coś podobnego i ma doświadczenie w tej materii.
Myślę, że chyba starczy i tak długi wpis, może ktoś przeczyta
jak nie to i tak pewnie będę działał na własną rękę, może jak znajdę chwilę to opiszę jak zakończyła się modernizacja i co zostało zrobione. Jak jednak ktoś się zaangażuje w odpowiedź na moje pytania, to proszę śmiało pytać jeśli potrzeba więcej informacji, zdjęć, opisów bardziej szczegółowych itd. to co mogę postaram się pokazać. Pozdrawiam wszystkich
Podjąłem się małej modernizacji w swoim zakładzie. Chciałbym, aby ktoś bardziej doświadczony wypowiedział się na temat moich przemyśleń oraz działań związanych z tym projektem. Chcę zaznaczyć, że jest to mój pierwszy taki projekt. Zdecydowałem się na to wyzwanie, ponieważ uznałem, że będzie to dla mnie rozwojowe doświadczenie. Proszę o wyrozumiałość.
Dziękuję!
Modernizacja będzie dotyczyła układu sterowania windą od paletyzatora. Obecnie winda działa na układzie Dahlandera, który wykorzystuje styczniki do zmiany kierunku obrotów (góra, dół) oraz prędkości (szybki i wolny bieg). Silniki dwubiegowe, z których jeden ma moc 2,4 kW (2700 rpm), a drugi 1,8 kW (2680 rpm), są wyposażone w hamulce elektromagnetyczne. Podane wartości dotyczą pracy na szybkim biegu.
Obecny układ charakteryzuje się "rwaną" pracą, szczególnie podczas przełączania z biegu szybkiego na wolny, co powoduje znaczne szarpnięcia i przyspieszone zużycie elementów układu. Podobne szarpnięcia występują przy zadziałaniu hamulców, co prowadzi do drgań całej konstrukcji.
Aby osiągnąć płynniejszą pracę układu, planujemy modernizację systemu sterowania poprzez zastąpienie obecnego rozwiązania falownikiem. Liczymy, że dzięki temu winda będzie pracowała płynniej.
To był taki wstęp do tego czemu i co będzie modernizowane, teraz spróbuję opisać jak chcę ugryźć temat i jakie mam obawy co do zmian, spróbuję jakoś w punktach opisywać wszystko, aby łatwiej było się odnieść. Proszę o uwagi do moich działań i poprawienie gdy zauważycie jakieś błędy co do modernizacji, myślę, że to dość ciekawa modernizacja, więc może więcej osób będzie chciało się swoimi doświadczeniami podzielić, dobrze jest się uczyć od bardziej doświadczonych osób
Punkt 1: Dobór komponentów pod modernizację
- Na początku plan był taki, żeby dobrać falownik z firmy NORD, decyzja była podyktowana tym, że po modernizacji w 2019r zostały zamontowane falowniki właśnie z tej firmy. Modernizację robiła firma zewnętrzna, była to dość duża modernizacja, przejście ze starego sterownika S5 na układ bardziej cywilizowany czyli w tym przypadku na CPU 1512SP F-1 PN. W układzie falowniki wszystkie są skomunikowane PROFINET--->CAN (będę wstawiał zdjęcia dla lepszego obrazu całości).
Plan był taki żeby dodać falownik SK 550P-551-340-A 5,5kW. Zrobiłem komunikację w programie pod nowy falownik, ale nagle plany się zmieniły.... dostałem z góry informację, że jednak robimy to na falowniku Danfoss, bo takie mamy zamontowane praktycznie na całym zakładzie (oprócz tego paletyzatora), więc magazynowo z częściami zamiennymi będzie nam łatwiej. Plany się zmieniły więc wziąłem się za szukanie odpowiedniego falownika i rezystora hamowania, tym razem zdecydowałem się na troszkę większy falownik bo na 7,5kW, stwierdziłem, że lepiej mieć troszkę zapasu z mocą. Konkretnie padło na FC-302P7K5T5E20H1BGCXXXSXXXXAXBXCXXXXDX 131B0062 7,5kW + Rezystor hamowania MCE101A56R0P680RE54CAW (56 Ohm, 680W).
Punkt 2: Wstępne zaplanowanie podłączenia sterowania.
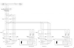
W oczekiwaniu na komponenty (falownik, rezystor, kabel) zacząłem już planować jak podłączyć układ sterowania. Układ w chwili obecnej wygląda tak:
Tutaj rozrysowałem sobie w Eplanie jak chcę podłączyć układ: (nie ma na nim rezystora hamowania, ale będzie podłączony, muszę dodać)
Czy dobrze przeniosłem układ sterowania pod falownik?
Zastanawiam się nad troszkę innym rozwiązaniem, może dodać moduł PROFINET-owy do falownika i lepiej skomunikować go z resztą? tutaj nie wiem czy sobie poradzę z komunikacją pod zupełnie inny falownik, co o tym sądzicie?
Punkt 3: Programowe sterowanie windą,
Analizowałem program w PLC jak winda jest sterowana, tutaj mam najwięcej uwag co do sensu takiej modernizacji w obecnym stanie. Winda nie ma zamontowanego żadnego enkodera, pozycja jest określana tylko z czujników. Czy w ogóle da się ustawić odpowiednie rampy na czujnikach tak aby praca nie była rwana, bo w głowie nie mogę jakoś sobie tego poukładać, nawet przy ustawieniu rampy i tak sygnał będzie brany z czujnika, więc działanie będzie tak w skrócie 0/1, pozycja ---> zatrzymaj, tak oczywiście uproszczając wszystko, czyli za długa rampa na stop (ryzyko przejechania pozycji), tutaj już w głowie mam obraz ile czasu może zająć dobranie odpowiedniej rampy tak aby zatrzymywał się w odpowiedniej pozycji... enkoder dawałby sygnał wcześniej przed pozycją o zatrzymaniu, więc tutaj rozwiązanie miałoby sens, dodanie enkodera do takiego układu pewnie jest już ponad moje możliwości, więc nie myślę póki co o takim rozwiązaniu. Zamontować falownik i tak zamontuje, stary układ zostawię, aby ewentualnie wrócić do niego jak będą problemy ze sterowaniem na falowniku. Programowo chyba nie ma sensu pokazywać jak to jest zrealizowane, bo ciężko byłoby wam opisać jak nie macie wglądu do programu. Tutaj chciałbym usłyszeć wasze opinie co do sensu montowania falownika, gdy układ działa na samych czujnikach pozycyjnych, czy praca będzie chociaż trochę płynniejsza i czy jest szansa na zniwelowanie tych szarpnięć podczas hamowania? bo jedyna korzyść jaka mi przychodzi do głowy to jest stała prędkość pracy windy, no tutaj rozwiązało by na pewno problem z przejściami między biegami silników.
Punkt 4: Parametryzacja falownika.
Nie mam doświadczenia w parametryzacji falownika pod dwa silniki, zazwyczaj to wymiana polegała na podmianie falownika 1:1 z backup-em, albo ewentualnie zamontowanie innego modelu i ustawianie samych podstawowych ustawień w prostych układach sterowania. Tutaj chciałbym uzyskać jakichś podpowiedzi na co zwrócić szczególną uwagę podczas ustawiania pod oba silniki. Tutaj na pewno jeszcze będę dużo czytał i szukał podpowiedzi w dokumentacji, ale warto zapytać na forum, może ktoś kiedyś już robił coś podobnego i ma doświadczenie w tej materii.
Myślę, że chyba starczy i tak długi wpis, może ktoś przeczyta
