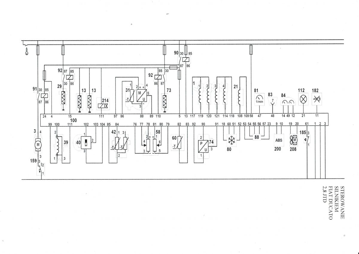
Poszukuję schematu instalacji dla tego sterownika, głównie chodzi mi o piny odpowiedzialne za czujnik ciśnienia klimatyzacji. Potrzebuję znaleźć piny od czujnika ciśnienia klimatyzacji, ponieważ w tym samochodzie nie mam nigdzie wtyczki do tego czujnika. Oryginalnie jest klimatyzacja, wszystkie elementy pod deską rozdzielczą są, natomiast nie było przewodów od ściany grodziowej, ktoś to przede mną zdemontował i nie ma też śladu po wtyczce do czujnika ciśnienia. Została tylko sprężarka, jedna rurka i przewód do sprzęgiełka sprężarki. Mam wszystkie brakujące elementy do założenia, ale zatrzymałem się na tych przewodach od czujnika ciśnienia.
Citroen Jumper 2.8 HDI grudzień 2001 rok nr VIN: VF7233LL216209841
Znalazłem taki schemat, tylko nie wiem, czy wszystkie te piny [18 60 51 52] to są piny od czujnika ciśnienia?

Citroen Jumper 2.8 HDI grudzień 2001 rok nr VIN: VF7233LL216209841
Znalazłem taki schemat, tylko nie wiem, czy wszystkie te piny [18 60 51 52] to są piny od czujnika ciśnienia?