Witam jestem tutaj nowy. Czytałem wiele porad na temat akustyki pomieszczenia i postanowiłem by poprosić was o pomoc . Kolumny które posiadam mają wystarczająco jak na moje słuchanie bas ale gdy mi jest go wystarczająco to przy drzwiach i w reszcie mieszkania jest go dwa razy tyle nie wspomnę już co się dzieje poza mieszkaniem. Daje dokładny opis pokoju i co się w nim znajduje.
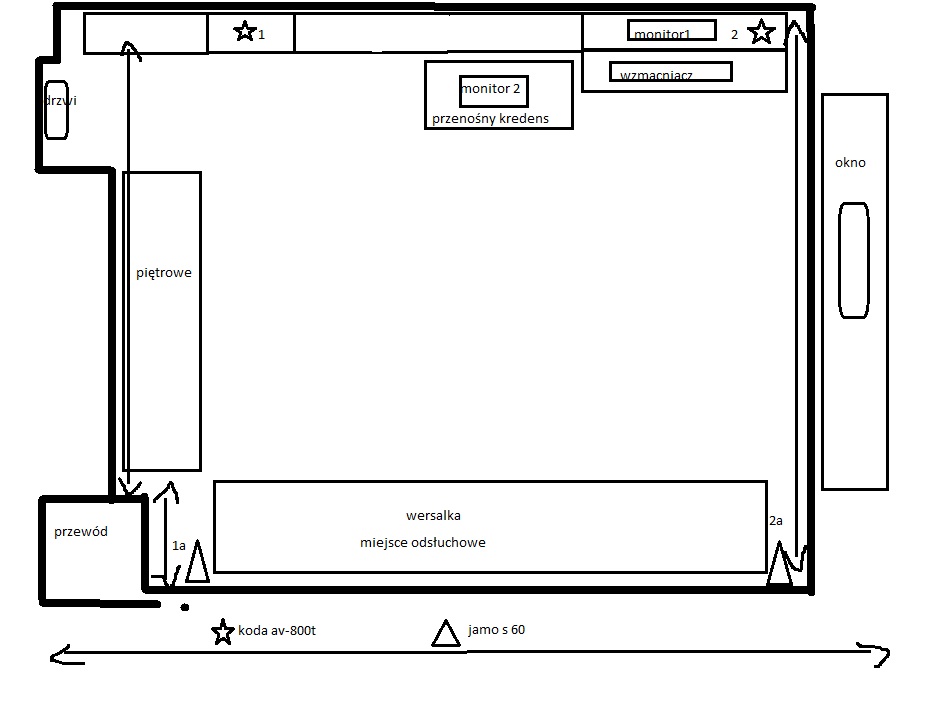
Mój pokój to kwadrat z wybrzuszeniami 3,20x3,20 (gdzie wybrzuszenie zmniejsza przestrzeń o jakieś 20 cm w głąb pokoju ). jest to mieszkanie w bloku na parterze. Podłoga to gąbka i panele, sufit kasetony, meble z płyty wiórowej. Jest łóżko piętrowe i wersalka. Znajduje się tam również stary przewód kominowy który jest pusty w środku.
Wzmacniacz to koda av-1300
Moc
2x23W (8 ohm)
Funkcje
2 wejścia mikrofonowe, Karaoke, z regulacją poziomu i pogłosu
Zniekształcenia harmoniczne
=<1% (80Hz - 12.5kHz)
Pasmo przenoszenia
80Hz - 12.5kHz (+/- 2dB)
Odstęp sygnał / szum
>=77dB (A ważone)
Wejścia audio analogowe
4 x stereo RCA
Kolumny pzednie
Konstrukcja
Kolumna podstawkowa, 2-drożna, przedni bassreflex
Głośnik wysokotonowy
25,4 mm; cewka 25,4 mm
Głośnik średnio-niskotonowy
165 mm; cewka 25,5 mm
Średnia impedancja
8 Ohm
Pasmo przenoszenia
48 Hz - 20 kHz
Efektywność
86 dB
Zalecana moc wzmacniacza
60 - 120 W
Waga
16,5 kg / para
Rozmiar w mm (WxSxG)
470 × 210 × 300
Lewa kolumna stoi na wysokości 13cm na półce zabudowanej z tyłu jest dość ściśnięta, prawa kolumna stoi na wysokości 45cm po prawej stronie jest ściana 14 cm od kolumny z tyłu od ściany odległość wynosi 30 cm
Kolumny z tyłu to
Kolumny tył to jamo s60 sur
Konstrukcja 2- drożna, tylny bass-reflex
Głośnik nisko-średniotonowy 102 mm
Gł. wysokotonowy kopułka tekstylna 25 mm.
Moc maksymalna 130 W
Moc znamionowa , ciągła 80 W
Efektywność 87 dB
Pasmo przenoszenia 80 - 20. 000 Hz
Impedancja 6 Om
Waga ok. 6 kg (para)
Wymiary : wys 240 , szer 133 , głęb 210
Zawieszone są hakach na wysokości 120cm i są skierowane ku miejscu odsłuchowemu , z tyłu od ściany bass refleks ma 7 cm miejsca.
Czy da się coś zrobić by chodz część basu przenieść do pokoju by nie przeszkadzał innym domownikom ? ? Czy może coś go pochłania ? ewentualnie jakieś inne rozmieszczenie kolumn ? co o tym myślicie ?

Mój pokój to kwadrat z wybrzuszeniami 3,20x3,20 (gdzie wybrzuszenie zmniejsza przestrzeń o jakieś 20 cm w głąb pokoju ). jest to mieszkanie w bloku na parterze. Podłoga to gąbka i panele, sufit kasetony, meble z płyty wiórowej. Jest łóżko piętrowe i wersalka. Znajduje się tam również stary przewód kominowy który jest pusty w środku.
Wzmacniacz to koda av-1300
Moc
2x23W (8 ohm)
Funkcje
2 wejścia mikrofonowe, Karaoke, z regulacją poziomu i pogłosu
Zniekształcenia harmoniczne
=<1% (80Hz - 12.5kHz)
Pasmo przenoszenia
80Hz - 12.5kHz (+/- 2dB)
Odstęp sygnał / szum
>=77dB (A ważone)
Wejścia audio analogowe
4 x stereo RCA
Kolumny pzednie
Konstrukcja
Kolumna podstawkowa, 2-drożna, przedni bassreflex
Głośnik wysokotonowy
25,4 mm; cewka 25,4 mm
Głośnik średnio-niskotonowy
165 mm; cewka 25,5 mm
Średnia impedancja
8 Ohm
Pasmo przenoszenia
48 Hz - 20 kHz
Efektywność
86 dB
Zalecana moc wzmacniacza
60 - 120 W
Waga
16,5 kg / para
Rozmiar w mm (WxSxG)
470 × 210 × 300
Lewa kolumna stoi na wysokości 13cm na półce zabudowanej z tyłu jest dość ściśnięta, prawa kolumna stoi na wysokości 45cm po prawej stronie jest ściana 14 cm od kolumny z tyłu od ściany odległość wynosi 30 cm
Kolumny z tyłu to
Kolumny tył to jamo s60 sur
Konstrukcja 2- drożna, tylny bass-reflex
Głośnik nisko-średniotonowy 102 mm
Gł. wysokotonowy kopułka tekstylna 25 mm.
Moc maksymalna 130 W
Moc znamionowa , ciągła 80 W
Efektywność 87 dB
Pasmo przenoszenia 80 - 20. 000 Hz
Impedancja 6 Om
Waga ok. 6 kg (para)
Wymiary : wys 240 , szer 133 , głęb 210
Zawieszone są hakach na wysokości 120cm i są skierowane ku miejscu odsłuchowemu , z tyłu od ściany bass refleks ma 7 cm miejsca.
Czy da się coś zrobić by chodz część basu przenieść do pokoju by nie przeszkadzał innym domownikom ? ? Czy może coś go pochłania ? ewentualnie jakieś inne rozmieszczenie kolumn ? co o tym myślicie ?
