Witam.
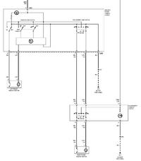
Elektryczne szyby tylko z przodu. Szyba kierowcy jest zamknięta i nie mogę jej otworzyć, natomiast od pasażera działa. Bezpieczniki obu szyb ok. Tak pomyślałem sobie jakbym zamienił miejscami kable we wiązce(podpiąłbym tylko od szyby kierowcy), to wiedziałbym już czy guzik jest uszkodzony lub coś innego. Chyba nie powinno dojść do uszkodzenia instalacji elektrycznej? Załączam zdjęcia i schemat.

Elektryczne szyby tylko z przodu. Szyba kierowcy jest zamknięta i nie mogę jej otworzyć, natomiast od pasażera działa. Bezpieczniki obu szyb ok. Tak pomyślałem sobie jakbym zamienił miejscami kable we wiązce(podpiąłbym tylko od szyby kierowcy), to wiedziałbym już czy guzik jest uszkodzony lub coś innego. Chyba nie powinno dojść do uszkodzenia instalacji elektrycznej? Załączam zdjęcia i schemat.