logo elektroda
logo elektroda
X
logo elektroda
REKLAMA
REKLAMA
Adblock/uBlockOrigin/AdGuard mogą powodować znikanie niektórych postów z powodu nowej reguły.

Jak podłączyć rolety zewnętrzne z przewodem 4-żyłowym i łącznikiem jednobiegunowym?

rafal.kk 13 Lip 2012 13:50 12505 7
REKLAMA
  • #1 11101423
    rafal.kk
    Poziom 9  
    Witam.
    Szukam schematu do podłączenia rolet zewnętrznych napedzanych elektrycznie. Ze skrzynki wychodzi przewód 4 żyłowy a zasilanie przychodzi 3 żyłowe. Mam łącznik żaluzjowy wielo klawiszowy 1-biegunowy ale nie bardzo oriętuję się jak to podłączyć żeby działało. Proszę o jakąś pomoc.
  • REKLAMA
  • #2 11101468
    kizek
    Poziom 35  
    W komplecie powinien być schemat.
    Jeżeli brak schematu to pozostaje tylko producent.
  • REKLAMA
  • #3 11101513
    rafal.kk
    Poziom 9  
    A nie można tego wytłumaczyć na zasadzie łopatologii??
  • #4 11101531
    kizek
    Poziom 35  
    Zapewne jeden z tych przewodów od żaluzji jest żółto-zielony.
    Podaj pozostałe kolory przewodów oraz producenta.
  • #5 11101561
    rafal.kk
    Poziom 9  
    Jest:
    zółto zielony
    niebieski
    brązowy
    czarny
    Rolety są z F. Portos, a włacznik mam Z F. Berker
  • REKLAMA
  • REKLAMA
  • #7 11101837
    rafal.kk
    Poziom 9  
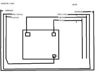
    Dzięki za pomoc, ale juz tak w ramach upewnienia się, proszę kolego rzuć okiem na rysunek który na szybko skleciłem czy to aby tak było na pewno. Jak podłączyć rolety zewnętrzne z przewodem 4-żyłowym i łącznikiem jednobiegunowym?
  • Pomocny post
    #8 11103434
    kizek
    Poziom 35  
    Na schemacie nie dostrzegam błędu.
    Powodzenia.
REKLAMA