logo elektroda
logo elektroda
X
logo elektroda
REKLAMA
REKLAMA
Adblock/uBlockOrigin/AdGuard mogą powodować znikanie niektórych postów z powodu nowej reguły.

Alan 42 Multi - Przygasa wyświetlacz przy nadawaniu po naprawie zasilania

flgmnft 06 Lis 2014 08:06 4494 32
REKLAMA
  • #1 14106389
    flgmnft
    Poziom 12  
    Witam.
    Panowie mam problem, kolega przyniósł mi radio j/w. Nie działało bo podłączył na odwrót zasilanie, tzn dorabiał gniazdo zapalniczki i nieprawidłowo podpiął je. Radio nawet nie wstawało. Nie było 5V na elektronikę, wymieniłem regulator napięcia i wstało. Oddałem jako sprawne bo działało. Teraz znów do mnie trafiło tym razem podczas naciśnięcia przycisku nadawania przygasa ekran. Nie wiem gdzie szukać usterki, mam manual serwisowy ale tam nie ma napięć abym mógł cokolwiek zdiagnozować.
  • REKLAMA
  • #2 14106492
    maylo
    Poziom 26  
    Witaj,

    Przygasa ekran i również ginie z niego treść? Jaki pobór prądu przy wciśnięciu nadawania ? Jakakolwiek moc wychodzi ? Z czego zasilasz radio ?
  • #3 14107214
    flgmnft
    Poziom 12  
    W domu do testow zawsze akumulatora zelowego 12v. Wymienilem w miedzyczasie kta1658 na bd912. Ekran juz calkiem nie znika tylko przygasa. Wyswietla sie Tx podczas nadawania. Zamowilem juz 2sc2078 przyjda pewnie w przyszlum tygodniu. Bo mam jeszcze uwalonego tti-550 wiec sie przyda tak czy siak. Ale nie o tym mowa. Co jeszcze moge sprawdzic?

    Przy odbiorze ok 90mA. Przy nadawaniu ok 350mA, czyba troche duzo. Odbieranie dziala dobrze czysto slysze, tylko nadawania nie ma bo ktos by odpowiedzial. Dysponuje tylko miernikiem uniwersalnym z takich urzadzen pomiarowych.
    Koncowka mocy pewnie jest sprawna, 2sc2078, teraz podmienilem ze sprawnego radia i dalej to samo. Czyli pewnie niepotrzebnie zamowilem.
  • #4 14107351
    maylo
    Poziom 26  
    Mam nadzieje że BD dałeś przez przekładkę izolującą. Skąd zamówiłeś nowe 2078 ? aktualnie może 10% firm ma jeszcze w zapasach org. tranzystory, 90% zalana przez malowanki. Jakie masz napięcie na środkowej nodze BD przy wciśniętym TX i mocy ustawionej na HI
  • #5 14107586
    flgmnft
    Poziom 12  
    Tak odizolowałem go od radiatora. A 2078 zamówiłem z allegro, 9 pln sztuka. Ale podmieniłem go ze sprawnego radia i nie działa dalej. Wracając do BD912 na środkowej nodze mam 10.06V. Zasilanie 11.3V z akumulatora jak wspomniałem wcześniej(trochę wyładowany jest ale to bez znaczenia chyba. Napięcie na BD maleje gdy puszczę nadawanie, ale maleje w taki tempie jak rozładowuje się średniej pojemności kondensator, diodą led. Czy nie szybko i nie powoli.

    Wracając do 2078 jak przyjdą, wlutuje do sprawnego radia i zobacze czy działają.
  • #6 14107698
    maylo
    Poziom 26  
    Napięcie na BD prawidłowe. Sprawdź czy na środkowych nogach 2sc1006 i 2078 jest mniejwiecej takie samo jak to na BD. Powoli kończą się możliwości do samodzielnego sprawdzenia dysponując tylko multimetrem.
  • REKLAMA
  • #7 14107765
    kriss51
    VIP Zasłużony dla elektroda
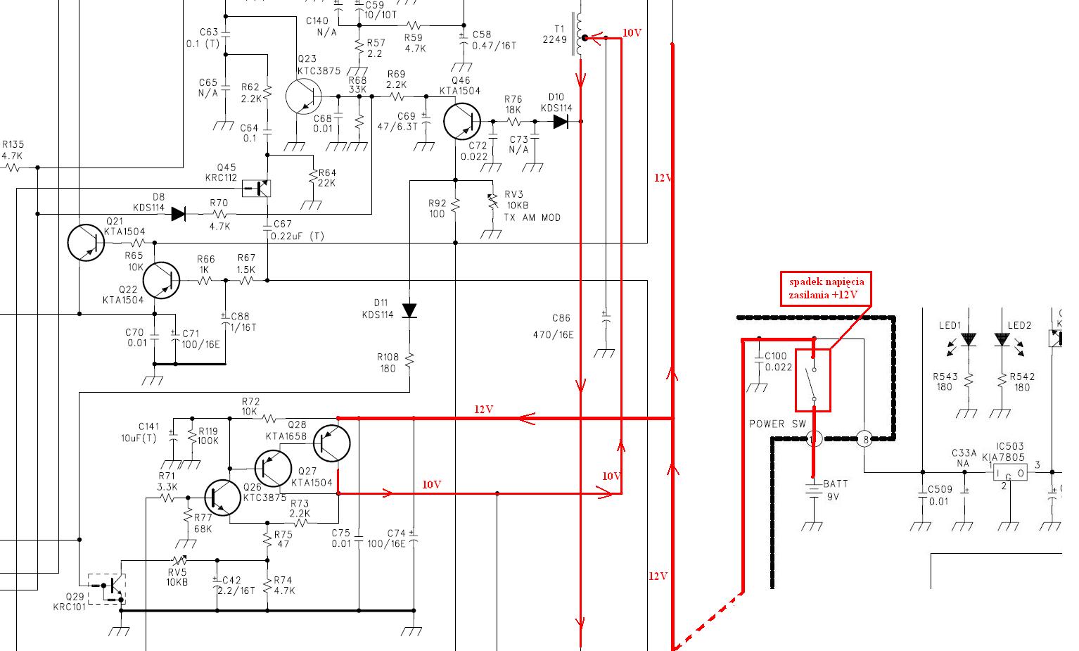
    Wyciągnij driver i końcówkę potem sprawdź czy nadal przygasa wyświetlacz i jaki prąd pobiera radio podczas nadawania. Napisałeś że 350mA podczas TX to trochę za dużo. Nic bardziej mylnego. To stanowczo za mało przy 4W. W tym wypadku sam multimetr może nie wystarczyć, bo mocy nadajnika nie mierzysz. Może być tak że akumulator nie naładowany, albo już "lichy" i radio przygasa podczas nadawania. Sprawdź o ile spada napięcie na aku. podczas TX z driverem i końcówką.

    Ps.

    Doczytałem się też że akumulator masz nie naładowany i stwierdziłeś że to nic. Mylisz się. Najlepiej podłącz jakiś zasilacz może być nawet na czas naprawy zasilacz komputerowy. Nie kombinuj z akumulatorem, bo nic nie masz zapięte na ostatni guzik i szukasz usterki w radiu. Podstawa to zasilacz 12-13,8V o wydajności minimum 3A, sztuczne obciążenie i miernik mocy lub można sobie zrobić prostą sondę na diodzie którą moc też zmierzysz. Bez tego nie masz się już tu co produkować. Pozdrawiam
  • #8 14107854
    flgmnft
    Poziom 12  
    Ok zasilacz komp podpiety. Na srodkowej nodze BD912 10,85v. Pobor pradu przy odbiorze ok 130mA. Przy nadawaniu ok 650mA. Przy nadawaniu na srodkowej nodze 2sc2078 i 2sc1006 takie same, napiecie skacze od 10,30v do 10,60v. Po odlutowaniu 2sc2078, prad podczas nadawania ok 250mA i ekran nie przygasa. Jutro sprubuje dorwac 2sc1006 podmienie, a jesli nie to wezme ze sprawnego radia powinien byc takowy. Znalazlem prosty schemat jak zrobic miernik mocy, cos postaram sie jutro wykonac.
  • #9 14108038
    SP5ANJ
    Spoczywaj w Pokoju
    Witam.

    flgmnft napisał:
    Wymienilem w miedzyczasie kta1658 na bd912. Ekran juz calkiem nie znika tylko przygasa.

    Zastanawia mnie - dlaczego wymieniłeś Q208 jeżeli on nie uczestniczy bezpośrednio w wyświetlaniu LCD. :?:

    Cytat:
    Zamowilem juz 2sc2078 przyjda pewnie w przyszlum tygodniu.

    Jedyny związek ze zwartym 2SC2078 i Q208 to duży prąd płynący poprzez ON/OFF po, którym może być gwałtowny spadek napięcia zasilania.

    Alan 42 Multi - Przygasa wyświetlacz przy nadawaniu po naprawie zasilania

    Cytat:
    Przy odbiorze ok 90mA. Przy nadawaniu ok 350mA

    Dużo dla odbiornika a mało dla nadajnika.
    Odbiornik około 10 do 30mA
    Nadajnik około 650mA (TX 4W przy sprawności 60% to około 6,4W + inne 1W = razem około 8W)

    Cytat:
    ... tylko nadawania nie ma bo ktos by odpowiedzial. Dysponuje tylko miernikiem uniwersalnym z takich urzadzen pomiarowych.

    To koniecznie musisz zmierzyć układ TDA2003 (IC6), gdzie na nóżce nr 5 powinno być prawie pełne napięcie zasilania poprzez klucz tranzystorowy Q7 (przy nadawaniu) a na n.4 jego połowa.

    Cytat:
    Czyli pewnie niepotrzebnie zamowilem.

    Niepotrzebnie.

    Reasumując to wszystkie dolegliwości w "cyfrówce" urządzenia jak PLL, EPROM czy procesor - to głównie IC503, który w wersji 78L05 bardzo często się psuje. :cry:

    Alan 42 Multi - Przygasa wyświetlacz przy nadawaniu po naprawie zasilania


    Pozdrawiam.

    PS. Przypominam o regulaminie pkt 3.1.13 tego Forum.
  • #10 14108331
    flgmnft
    Poziom 12  
    Podczas nadawania tda2003 na 5 nodze ma prawie napiecie zasialania ale na 4 jest ok 8V. Stabilizator t5V wymienialem wczesniej, jest tam upchany regulator w wersji to-92 bojdajrze. Wiem ze nie fachowo ale dziala. Nie pamietam czy po wymianie 7805 radio nadawalo. Oddalem je i kolega mial sprawdzic. Wrocilo do mnie po prawie pol roku, czyli wczoraj. Sprawdze to jutro czy aby na pewno jest 5V.

    Wymienie ten 7805 na właściwy przynajmniej właściwej mocy. Bo w obudowie TO-92 ma 100mA, nie wiem o czym myślałem pakując go tam.
  • #11 14109135
    flgmnft
    Poziom 12  
    Wstawilem nowy 7805 w obudowie TO-220. Dziwne jest to ze podczas nadawania mam na pinie 3 zlacza goldpin. Mam 10V a nie 5 jak wynika ze schematu.
  • #12 14109170
    maylo
    Poziom 26  
    Jesli masz faktycznie 650mA podczas nadawania to nadajnik powinien pracować, tym bardzie że napięcia masz prawidłowe. Po co wymieniałeś ten stabilizator - org. jest tam również niskoprądowy 7805 i nie ma potrzeby ładować tam stabilizatora 1A. Nawiasem mówiąc nie wiem jak Ci się udało tam upchnąć TO220 :) Wydaje mi się że ANJ poszedł w dobrym kierunku podejrzewając uszkodzenie modulatora (lub jego zasilania) TDA2003 . Nic na razie nie wymieniaj więcej - zdobądź/zrób/pożycz miernik mocy sprawdź czy cokolwiek wychodzi, zdobądź najlepiej drugie radio CB aby się w nim odsłuchać, zresztą od tego powinieneś zacząć.
  • REKLAMA
  • #14 14109292
    maylo
    Poziom 26  
    LM386 jest jako audio dla RX / TDA2003 jako mod. dla TX
  • REKLAMA
  • #16 14109617
    flgmnft
    Poziom 12  
    Po złożeniu prowizorycznego obciążenia i dorwaniu diody akurat BAT85. Moc wychodzi ok 2.6W.
    Obciążenie to rezystory 39ohm i 4,7ohm, łączone szeregowo. Napięcie 10.70V podczas nadawania.
  • #18 14109640
    flgmnft
    Poziom 12  
    Poprawiłem post, bo dorwałem ceramiczne właśnie o wartościach wyżej. Jak zapytałem gościa w nowym elektroniku (sklep w mojej miejscowości) o bezindukcyjne to zrobił wielkie oczy. Wydłubałem kiedyś takie ceramiki właśnie, wreszcie się przydały. Pewności nie mam że są bezindukcyjne, ale innych nie mam. To radio ma 2 złącza do podpięcia anteny. jedno na dole, wsuwane razem z zasilaniem i drugie u góry na mniejszą antenę. Czy pomiaru mogę dokonać wpinając normalnie dolną antenę a diodę na górze i mierzyć moc?
  • #19 14109665
    Olek II
    Moderator
    Jeśli masz rezystory drutowe, to będzie błąd pomiaru. Nie kombinuj z pomiarem na dwóch gniazdach. Do jednego podłącz sztuczne obciążenie i sondą w.cz możesz zmierzyć napięcie, ale nie moc promieniowaną. Pomiar mocy dokonujemy odpowiednim miernikiem i sztucznym obciążeniu. Jeśli masz jakiś wskaźnik SWR, to w przybliżeniu możesz się dowiedzieć czy moc wychodząca z radia jest w okolicy 4W. I nie z anteną, lecz sztucznym obciążeniem.
  • #20 14109738
    flgmnft
    Poziom 12  
    A nie wyliczę mocy ze wzoru P=U(do kwartatu)/R?
  • #21 14109749
    Olek II
    Moderator
    Niestety nie wyliczysz. Sonda w.cz musi być pewna, tzn. skąd będziesz wiedział, czy wskazane 1V na mierniku, w rzeczywistości ma ten 1V. Są sondy z podwajaczem napiecia i co? Też będzie dobra? Jedynie możesz na zasadzie porównania wielkości napięcia z radiem, gdzie jesteś pewny, że ma 4W.
  • #22 14109807
    maylo
    Poziom 26  
    Jeśli korzystasz z adaptora samochodowego - wtedy antenę/szt. obciążenie podłączasz to gniazda UC1 wychodzącego z adaptora. Jeśli korzystasz z zasilania bateryjnego lub wpinasz się żabkami w blaszki zasilające radia pomijając adaptor korzystasz z górnego gniazda BNC. Nigdy z 2 na raz lub z samego górnego mając wpięty adaptor samochodowe... podjedź do nowego Elektronika dasz im 10 zł za sprawdzenie i sprawdzą Ci moc wyjściową - będziesz miał pewność.
  • #23 14109840
    flgmnft
    Poziom 12  
    Tak zrobie, w zasadzie nie pomyślałem że oni mogą mi to zrobić. Jak będę miał wyniki dam znać.
    Druga sprawa, jak wspomniałem wyżej dziwi mnie poziom napięcia na lini 5V jest 6V a gdy nadaje to 10V. Napięcie mierzone na wyjściu regulatora napięcia. Przypomnę że to radio uwaliło się po odwrotnym podłączeniu napięcia. Myślałem że wymiana regulatora 5V załatwia sprawę, może trzeba szukać przyczyny w samym zasilaniu bądź elementów w obrębie 5V.

    Dodano po 45 [minuty]:

    Mam sprawnego TTI-550. Zmierzyłem moją "sondą", Na wyjściu przy opornikach 2x 110ohm, jest 20V, natomiast przy 39ohm + 4,7ohm mam 31V.
  • #24 14111141
    kriss51
    VIP Zasłużony dla elektroda
    flgmnft napisał:
    A nie wyliczę mocy ze wzoru P=U(do kwartatu)/R?


    Ten wzór jest prawidłowy oczywiście dla prostownika na jednej diodzie, dioda BAT też ok. Na 100% zmierzysz tym bardzo dokładnie moc. Tylko jeden warunek. Oporniki bez indukcyjne i oczywiście 50Ω. Najlepiej też na obu przewodach do miernika podłączyć dławiki, by ni było przekłamań. Czasem cyfrowy miernik pokazuje bzdury reagując na resztki sygnału wcz. Pozdrawiam
  • #26 14124334
    flgmnft
    Poziom 12  
    Moc zmierzona, ok 0.4W, dużo za mało, podjechałem do "nowego elektronika" zmierzyli to wyglądającym profesjonalnie miernikiem.
    Radio nadaje, sprawdziłem z sąsiadem, odjechał samochodem ok 500m. Normalnie udało się porozmawiać na różnych kanałach.
  • #27 14126544
    Katezuray
    Poziom 9  
    Zmierz ile pobiera sterownik rozpięty od reszty.
  • #28 14302061
    flgmnft
    Poziom 12  
    Panowie przepraszam po długiej przerwie, miałem kupę innych spraw. Dziś wracam do pracy. Mianowicie zmierzyłem pobór prądu na samym sterowniku. Wynosi ok 20mA. A wyświetlacz nie przygasa przy naciskaniu PTT
  • #29 14308704
    damik
    Poziom 16  
    flgmnft napisał:
    Panowie przepraszam po długiej przerwie, miałem kupę innych spraw. Dziś wracam do pracy. Mianowicie zmierzyłem pobór prądu na samym sterowniku. Wynosi ok 20mA. A wyświetlacz nie przygasa przy naciskaniu PTT


    Ile pobiera teraz całe radio na TX i RX ?
    Mogę podać Ci wartości jakie mam na swoim Alanie 42 multi. Moje radio jest w pełni sprawne tylko ma jakiś problem z odbiornikiem na wysokich bandach (SW) po odblokowaniu.
    To powinno dać przez prosty pomiar prądu jakiś optymalny obraz czy jest w miarę ok i nic dodatkowo nie obciąża, jeśli nie jesteś 100% pewien pomiarów W.CZ.
    Oczywiście nie zastąpi to pełnych i dokładnych pomiarów ale W Twoim przypadku zawsze warto to sprawdzić...

    Pomiary wykonane przy napięciu jakie występuje przez adapter samochodowy (około 13,5- 14,5V) standardowo dołączany do radia przy zakupie.
    U mnie, przy 14 V na RX przy ściszonym głośniku powinno około 40-70 mA zależnie od tego czy wyświetlacz ma podświetlenie.

    Przy TX powinno być około 1,2 - 1,5A przy 14V tak to u mnie wygląda....
    Jeśli masz takie wartości lub nieznacznie mniejsze to prawdopodobnie powinno być OK.

    Przy zasilaniu z pojemników na baterie czy akumulatorki AA (9V) pobierane prądy będą odpowiednio mniejsze, u mnie to około 800-900 mA podczas nadawania.
  • #30 14311031
    flgmnft
    Poziom 12  
    Dzięki za pomoc.
    Pisałem w 8 poście że przy nadawaniu 600mA a przy odbiorze ok 150mA. Moc mam zmierzoną, radio nadaje z mniej niż 0,5W.
REKLAMA