logo elektroda
logo elektroda
X
logo elektroda
REKLAMA
REKLAMA
Adblock/uBlockOrigin/AdGuard mogą powodować znikanie niektórych postów z powodu nowej reguły.

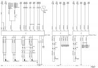
poratuje ktoś schematem ABS+TC Opel Meriva 2004 1.7CDti

cardiag 18 Maj 2007 22:25 6212 1
REKLAMA
  • #1 3898851
    cardiag
    Poziom 30  
    prosze, może ktoś ma schemacik do tego autka, mam problem z ABS (blad redukcji momentu obrotowego silnika, problemy z komunikacja CAN sterownik silnika-abs, i po nacisnieciu stopu widzi prędkość samochodu 30-60 km/h)
  • REKLAMA
REKLAMA