logo elektroda
logo elektroda
X
logo elektroda
REKLAMA
REKLAMA
Adblock/uBlockOrigin/AdGuard mogą powodować znikanie niektórych postów z powodu nowej reguły.

E36 coupe jak zrobic skrzynie STX

Przemski1 05 Kwi 2007 11:12 7576 21
REKLAMA
  • #1 3754647
    Przemski1
    Poziom 15  
    Witam!
    Mam dwa glosniki STX GDN-30-300-4-AP

    Fs 30,9940 Hz
    Fs Added Mass 25,7729 Hz
    Fs Known Vol 0,0000 Hz
    Added Mass 41,0000 g
    Known Vol 0,0000 L
    Diameter 248,0000 mm
    ZMax 18,8359 Ω
    ZMax Added Mass 18,3178 Ω
    ZMax Known Vol 0,0000 Ω
    Z F1F2 6,6407 Ω
    Re 2,3000 Ω
    Rms 7,2961 ΩM
    Qms 2,4526
    Qes 0,3411
    Qts 0,2995
    Cms 0,2870 mm/N
    Mms 91,8871 g
    BL 10,9840 T.m
    VAS 93,5008 L
    dBSPL 91,1400
    L 1kHz 0,7930 mH
    L 10kHz 0,2575 mH
    CAS 6,696014E-7 m5/N
    RAS 3126,8310 Ω A
    MAS 39,3793 kg/m4
    RAT 25607,3200 Ω A
    SD 0,0483 m2
    LCES 34,6218 H
    CMES 761,6132 µF
    RES 16,5359 Ω
    MMD 85,8780 g
    RMT 59,7517 ΩM
    eta 0,7834 %
    ZMin 2,8518 Ω
    ZAVG 8,6410 Ω
    Pe 300 W
    Ze 4 Ω
    Le 0,6045 mH
    Voice coil diam. 50 mm
    Voice coil layers 2
    Voice coil length 16,2 mm
    Xmaxlin(+/-) 3,1 mm
    Diam. of magnet 156 mm
    Weight of magnet 2780 g
    Total weight 7240 g

    Chce je zamontowa w skrzyni o pojemnosci ok 70L. Napedzane beda wzmacniaczem CARPOWER HPB- 1502 750W.
    Prosilbym o podanie najlepszych wymiarow skrzyni i co najwazniejsze jaki ma byc bass-reflex jeden czy dwa i jakie wymiary???
    Lubie gleboki bass i czysty.
  • REKLAMA
  • #2 3756318
    Przemski1
    Poziom 15  
    Przepraszam wzmacniacz to CARPOWER HPB - 604 750W
  • #3 3763063
    ploterek
    Poziom 13  
    Zrób zdjęcie bagażnika :) To jakąś zabudowę się zrobi. Poza tym zależy jak dużo przestrzeni chcesz zająć (czy chcesz zwykłego klocka czy konkretną zabudowę z neonami). Pozdrawiam Ploter
  • REKLAMA
  • #4 3764146
    Przemski1
    Poziom 15  
    Zdjecie wkleje jutro dzisiaj juz nie bede pedzil do auta... Raczej chce "zwyklego klocka" nie bede jezdzil na wystawy i nikt nie bedzie zagladal do bagaznika. Jak bedzie najlepiej jak glosiki bedzie widac czy jak beda w srodku zamkniete???
  • #5 3764256
    lukasz3004
    Poziom 15  
    mysle ze dobrze bedzie jak zrobisz skrzynkę band pass to cos z tych stx moze wyciagniesz
  • Pomocny post
    #6 3764344
    crazy_88
    Poziom 42  
    Jakiej słuchasz muzyki? band pass do szybkiego bitu odpada jest zbyt męczący.
  • Pomocny post
    #7 3764507
    bbartasswlkp
    Poziom 31  
    dokładnie jakiej muzy słuchasz i ile masz miejsca w swoin coupe??
  • #8 3765488
    Przemski1
    Poziom 15  
    Muzyka jakiej słucham to techno tylko i wyłącznie szybkie utwory bardzo rytmiczne.
    Activ- Surrender (radio mix) jest to moim zdaniem niezbyt szybki utwór ale lubię w tym moment od 1min 20sek do 1min 40sek zależy mi żeby w tym momencie bass dawał się nawet wyczućJ Bagażnik mam praktycznie cały do zagospodarowania nie jest to samochód rodzinny i bagażnik jest cały czas pusty
    E36 coupe jak zrobic skrzynie STX

    Dodano po 48 [sekundy]:

    E36 coupe jak zrobic skrzynie STX
  • Pomocny post
    #9 3765805
    crazy_88
    Poziom 42  
    Bmka ma bardzo szczelny bagażnik polecam zastosować skrzynie br z wyzszym strojeniem i odpowiednim napędem to rozwiąże problem:)
  • Pomocny post
    #10 3765827
    bbartasswlkp
    Poziom 31  
    skrzynia 40-45L @40Hz dla jednej szt. powinno być ok :D
  • REKLAMA
  • #11 3766083
    Przemski1
    Poziom 15  
    Wlasnie bagaznik jest naprawde bardzo szczelny wsadzilem kiedys tube magnata do niej i w srodku nie bylo nic slychac ani na zewnatrze w bagazniku tylko byla impreza. To jedna sztuka sobie poradzi???
  • Pomocny post
    #12 3767469
    crazy_88
    Poziom 42  
    Powiem szczerze stx ap do techno nie był najlepszym wyborem.
  • REKLAMA
  • #13 3767488
    mlody1921
    Poziom 29  
    ale przy dobrym wzmaku i z techno sobie poradzi :]
  • #14 3768276
    Przemski1
    Poziom 15  
    To co proponujecie??? Jaka skrzynia jakie wymiary???
  • Pomocny post
    #15 3768336
    bbartasswlkp
    Poziom 31  
    bbartasswlkp napisał:
    skrzynia 40-45L @40Hz dla jednej szt. powinno być ok :D

    czyli robisz dwie takie skrzynie

    już przecież napisałem
  • #16 3768713
    Przemski1
    Poziom 15  
    Przepraszam ze tak truje ale chce wszystko dokladnie wiedziec. Dobrze robie takie dwie skrzynie a co z bass-reflex ma byc i jaki??? a czy skrzynia 70L a w niej dwa te glosniki gorzej by grala od dwoch 40-45L ???
  • Pomocny post
    #17 3768801
    crazy_88
    Poziom 42  
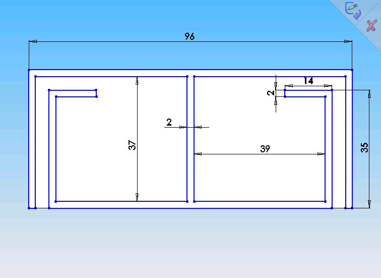
    witam w związku z nudą świąteczną zaprojektowałem skrzynie br z prostokątnymi br skrzynia ma wymiary 96 cm szerokości , 41 cm wysokości , 43 głębokości domyślne ścianki to 20 mm mdf przód podwójny więc 40 mm grubości skrzynka jest przedzielona przegrodą w środku więc jedna komora ma 45 litrów i strojenie 40,22 hz port ma wymiary 37 cm wysokości 4 cm szerokości i 49 cm długości oczywiście jest zawinięty przedstawiają to obrazki które robiłem sam.
  • Pomocny post
    #18 3770109
    bbartasswlkp
    Poziom 31  
    crazy wszystko elegancko tylko zapomniałeś o małym szczególe......

    E36 coupe jak zrobic skrzynie STX



    E36 coupe jak zrobic skrzynie STX

    reszta jak najbardziej poprwana litaż i strojenie :D tak jak pisałem

    POZDRAWIAM
  • Pomocny post
    #19 3770115
    crazy_88
    Poziom 42  
    Robiłem to na szybkiego więc wiesz.
  • #20 3770135
    Przemski1
    Poziom 15  
    ChciaBem bardzo podziekowac CRAZY_88 zrobil to profesjonalnie za co dziekuje jeszcze raz. teraz przechodze do praktyki trzeba to zrobic:)
    Pozdrawiam
  • #21 4172249
    Hansol2_pl
    Poziom 20  
    :arrow: Przemski1 i jak zrobiles skrzynie? Jestem ciekaw jak sie sprawuje to w tym autku.
  • #22 4339367
    Przemski1
    Poziom 15  
    Skrzynia zrobiona ale wymiary musialy byc inne. 41cm wysokosci jest to za duzo do E36 coupe teraz stoi skrzynia w pod ukosem w bagazniku bo inaczej nie wejdzie jest duza a bagaznik maly na nic wiecej nie ma miejsca. Ale co do dzwieku swoje robi, auto wygluszone ale do srodka dzwiek przechodzi wystarczajaco. Na zawnatrz auta dyskoteki nie ma wiadomo auto jest wygluszone. W srodku jest naprawde wystarczajaco.
REKLAMA