Ostatnio wszedłem w posiadanie radioodbiornika Amator 2 Stereo. Po wpięciu do gniazdka zaświeciły się żarówki, w lewym kanale było słychać brum, a w prawym membrana głośnika latała góra-dół, od razu wziąłem się za naprawę. Postanowiłem sprawdzić połączenia wątpliwie cienkich przewodów przy korektorze. Większość z nich byłą pourywana, przylutowałem i prawy kanał zaczął normalnie działać. Po podłączeniu do wzmacniacza dźwięku, z głośnika prawego wydobywał się czysty, nie zniekształcony dźwięk, natomiast z lewego charczenie w rytm muzyki. Zamieniłem układy hybrydowe GML026 między kanałami i problem się przeniósł. Otwarłem wadliwy układ
, uszkodzony był tranzystor BD135, miał zwarcie B-E. Wymieniłem go i kanały już równo, czysto grały. Na koniec zabaw z częścią wzmacniacza wymieniłem gniazda głośnikowe, gdyż starym zdarzało się nie stykać
.
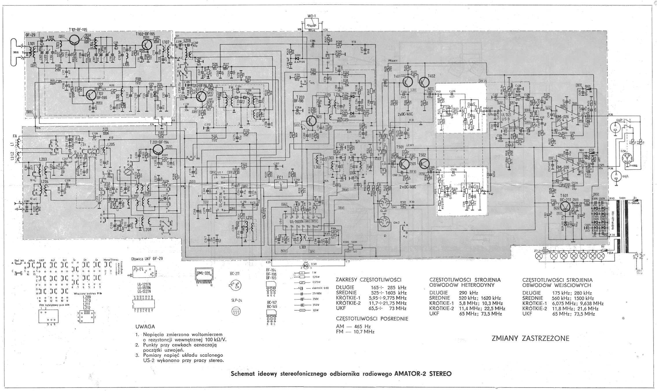
Zerwana była linka skali. Udało mi się odebrać PR1. Zabrałem się za przestrojenie UKF. Wyciąłem: -C104, -C110, -C124, a zamieniłem C125 z 10pF na 3,3pF.
Tor FM już poprawnie odbierał. Rozpocząłem etap nad, którym straciłem najwięcej czasu i nerwów... nawijanie skali. Zrobiłem to na podstawie tej instrukcji z internetu
z tym, że jak widać na dwóch kołach nawinąłem 1 zw i 3 zw (uwzględniłem to na rysunku). Zrobiłem to z żyłki wędkarskiej
Przypatrzyłem się wskaźnikowi dostrojenia i okazało się, że jest on uszkodzony, miał poprzerywane druty w środku. Zamówiłem nowy, wlutowałem i oczywiście zadziałał.
.
Stereodekoder, który wcześniej uważałem za niesprawny okazał się dobry, z tym że PRL-owska dioda led bardzo słabo świeciła, więc zamieniłem ją aktualną.
Na sam koniec postanowiłem usunąć filtr kontur, przez który musiałem słuchać odbiornika przy wyciętych basach. Zrobiłem to przez usunięcie C515 i C414, odlutowałem także odczep potencjometru.
Odbiornik prezentuje się tak
.
Gra bardzo ładnie. Naprawę uznaje za udaną. Film z naprwy https://youtu.be/n4hzwaY1pZM
Jeszcze kilka zdjęć radia.

Zerwana była linka skali. Udało mi się odebrać PR1. Zabrałem się za przestrojenie UKF. Wyciąłem: -C104, -C110, -C124, a zamieniłem C125 z 10pF na 3,3pF.
Przypatrzyłem się wskaźnikowi dostrojenia i okazało się, że jest on uszkodzony, miał poprzerywane druty w środku. Zamówiłem nowy, wlutowałem i oczywiście zadziałał.
Stereodekoder, który wcześniej uważałem za niesprawny okazał się dobry, z tym że PRL-owska dioda led bardzo słabo świeciła, więc zamieniłem ją aktualną.
Na sam koniec postanowiłem usunąć filtr kontur, przez który musiałem słuchać odbiornika przy wyciętych basach. Zrobiłem to przez usunięcie C515 i C414, odlutowałem także odczep potencjometru.
Odbiornik prezentuje się tak
Gra bardzo ładnie. Naprawę uznaje za udaną. Film z naprwy https://youtu.be/n4hzwaY1pZM
Jeszcze kilka zdjęć radia.
Fajne? Ranking DIY